提醒你
本網站隱私權政策已於2018年7月20日更新,請至閱覽並同意新版隱私權政策,若您未勾選同意而繼續使用本網站,則視為您已同意新版隱私權政策。
屋主碰上設計師
屋主買下這間大坪數豪宅,為的就是能讓一家大小都能有舒適的居住空間。而考量到機能與格局仍須要有妥善的規劃,且在風格上也偏愛新古典的大方典雅,因此找上了繽紛設計的江欣宜設計師負責新居的設計工作。
屋主需求大聲說
由於屋主一家在公共空間的需求和一般的小家庭不同,設計師主要的課題是創造三代宅在單層下的無壓力空間。藉由空間的分割,既能讓屋主夫妻享有甜蜜的兩人世界,也能在公共區域擁有凝聚一大家族情感的活動空間,讓空間的規畫可多元而有靈活的呈現。
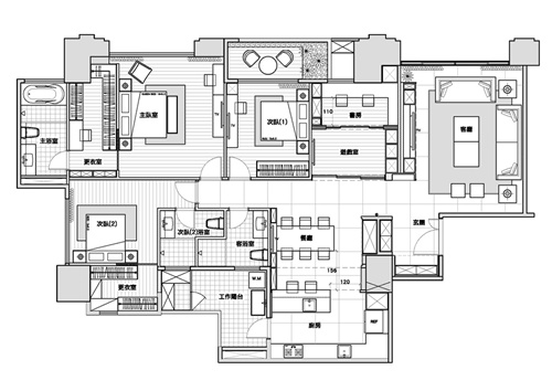
平面圖


看設計師變魔術
首先,長輩房以及屋主的主臥室都必須有完整的空間規劃。因此設計師在長輩和夫婦在臥房裡都配置了獨立的更衣室衛浴以及視聽設計。透過機能性的設定,讓個別的居家成員能在獨處時擁有個人的恬靜,同時也享有完備的私人空間。尤其在主臥室的設計上,由於原有空間並沒有隔間,考量到屋主需要有足夠的衣物收納空間,設計師特別將更衣室規劃為一個區塊,並連結到浴室,滿足屋主所需。
而由於小孩房緊鄰陽台,在採光與位置都有得天獨厚的條件下,設計師決定佈置陽台並造景,透過借景的手法讓空間感放大,並將原有的空間優勢大大地發揮,提升居住的質感,創造更為舒適的休憩空間。

客廳空間大器而寬敞,讓屋主可有充足的空間招待親友,也為家人創造舒適的聚會場所。

電視牆透過ㄇ字型的明鏡界定出框景,讓牆面有如大型壁畫。

臥房將更衣室隱藏在床頭後方,營造出舒適而私密的休憩空間。
公共空間的設計上著重於風格與機能的表現。玄關入口以線板裝飾將空間的主題點明。大面積的收納櫃以及作為端景的櫃體,不但滿足機能性,也創造出優雅而大方的視覺效果。電視牆透過ㄇ字型的明鏡界定出框景,讓牆面有如大型壁畫,對稱式的櫃體設計也預留了視聽設備與影音光碟的收納空間,在滿足收納需求之餘也融合視覺美感的設計。而帶有奢華風格的設計如使用大理石與進口壁紙,讓主人在宴客或家庭聚會時,也能展現出新古典時髦又大器的氣質。
餐廳與廚房在此處被規劃為一個區塊,有助於凝聚全家人的感情,而特選的餐桌椅和燈具,在無形中也呼應了整體空間的設計語彙,襯托家的高貴質感。江欣宜設計師強調,書房和遊戲室的規劃,主要是考量孩子下課後,無論在廚房吃點心、寫功課或遊戲,都能和長輩們的活動連結,也讓長輩能放心看顧孩子。此種顧及全家需求的設計,這就是空間所能創造的幸福。

玄關入口以線板裝飾將空間的主題點明,不落地的櫃體可帶來輕盈的視覺效果。

書房和遊戲室的規劃採玻璃隔間,除了讓空間有更多連結,也方便看顧孩子的活動。

廚房與餐廳採開放式設計,讓家人在用餐時也能充分交流。
Home data
建築形式:電梯大樓
房屋狀況:新成屋
座落地點:台北市
居住成員:5人
空間坪數:56坪
空間格局:4房2廳
主要建材: 大理石、進口壁紙、明鏡、特殊玻璃、木地板、線板、木皮、南方松
Designer Data
繽紛空間設計
設計師 江欣宜
電話 02-8787-5398
Email idanchiang528@gmail.com
地址 台北市忠孝東路5段345巷1號3樓