提醒你
本網站隱私權政策已於2018年7月20日更新,請至閱覽並同意新版隱私權政策,若您未勾選同意而繼續使用本網站,則視為您已同意新版隱私權政策。

保留10樓所擁有的絕佳視野,讓客廳維持一片寬敞的落地窗,成為夫妻倆一個賞景、RELAX的好地方。
屋主碰上設計師:
裝修的過程,設計師與屋主的溝通默契,是案子成敗的首要條件,這間屋子的主人與設計師是多年的好友,透過這層關係讓設計師更能了解屋主的需求與想法。房子的男女主人皆為醫師,每天面對的多是醫院的病患,下班回到家後希望能有個寧靜舒適的空間,加上男女主人對空間的品味也相當要求,於是房子在設計的過程中也花了相當多的心血和設計師一起討論選材,最後才能呈現出令人驚艷的成果。
屋主需求大聲說:
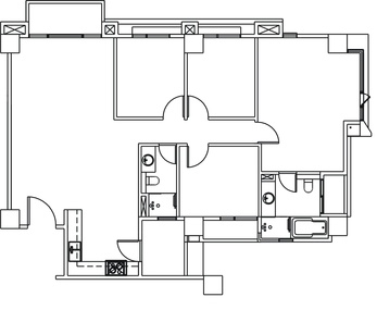
原始房子的格局為四房兩廳兩衛浴,和屋主討論過後決定把靠客廳的一個房間隔間牆打除作為書房,以增加公共空間視覺的穿透感。剩下的三間房,扣除主臥,年輕的兩夫妻請設計師預留了一間小孩房以及長親房,為雙親探視做最體貼的設想。除此之外屋主希望餐廳與廚房間能透過吧台的連結,讓整個空間能多點趣味性。另外屋主希望能在客廳裝設家庭劇院等視聽設備,因此在裝修之前線路的預留及隱藏也花了相當多的心思。
Before:

After:

看設計師變魔術:
體恤醫生的高壓工作環境,蔡馥韓設計師以「放鬆」為主題打造兩個醫生的家。回家是放鬆的開始,穿過一個造型玄關迴廊,作為上下班心境的轉換,迎面而來的是如床般的沙發組搭配北歐長毛地毯和極淨潔白的電視主牆。設計師在色彩的選用上用了黑白灰三個主色,作為整個空間的背景,搭配上鮮艷的飾品或家具,很容易的就將空間的豐富感表現出來,整個空間又不致於太過複雜及凌亂。
餐廳選用了設計師的吊燈搭配時尚餐桌組,在餐邊櫃的襯托下顯得簡潔大方不落俗氣。主臥室以橡木洗灰木皮作為床頭主牆,搭配不對稱式的床頭造型燈具及白色直紋床組,刻意在深淺對比中保留一絲溫馨感,讓人回到家中能徹底的休息及放鬆。
1.


穿透視野是放大空間的最大利器,位於走道前端的書房,運用木作結合玻璃的隔間,縮短走道的長度,也讓動線貫穿客、餐廳及書房。
2.


以傳統的屏風手法做為玄關,以木作鏤空的設計製造穿透的效果,有如一道界定玄關與餐廳的門。
3.


客廳和餐廳之間的橫樑,蔡馥韓設計師利用弧形天花緩和橫樑的壓迫,並利用空間隱藏空調設備,讓天花充滿立體感。
4.


木作的門板避開使用五金門把,利用比例將把手融入櫃體設計,追求空間的一致性,讓書房的書櫃成為空間的設計景象。


主臥裡的衛浴拉門使用與衣櫃同一元素的門片,同時門片可以互相切換,創造不同的幾何變化,巧妙隱藏衛浴的存在。
聽設計師說設計:
蔡馥韓設計師認為,光線在這個案子中扮演相當重要的角色,大面積的開窗皆朝西,又位於10層樓高,客廳落地窗面向大肚山,擁有的絕佳景觀是不容浪費的!開闊是「放鬆」居家的關鍵,於是將原本一間臥房隔間拿掉改為開放式的書房,讓整個開放空間由客廳,餐廳延伸到書房,光影無限制地在屋中自由流動、在屋內的格柵隔間產生陰影變化,成了空間中最佳的配角與舒壓夥伴。
Home data
座落地點:台中市
建築形式:大樓
房屋狀況:新成屋
居住成員:2人
坪 數:43坪
空間格局:客廳、餐廳、廚房、書房、衛浴、主臥、長親房、次臥
主要建材:南方松、橡木洗灰、茶鏡、雕刻白大理石、新米黃大理石、烤漆、白膜玻璃、茶色玻璃
天境空間設計
電話:04-2382-1758
網站:www.ta-interior.com/
信箱:[email protected]
地址:台中市惠中路3段339號