提醒你
本網站隱私權政策已於2018年7月20日更新,請至閱覽並同意新版隱私權政策,若您未勾選同意而繼續使用本網站,則視為您已同意新版隱私權政策。
Home data
座落地點:台北市
建築形式:電梯大樓
房屋狀況:老屋
居住成員:2人
坪 數:27坪
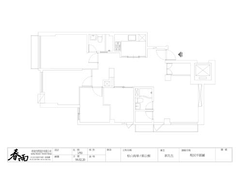
空間格局:玄關、客廳、儲藏室、廚房、書房、餐廳、客房、客廁、主臥房、更衣室、主衛浴
主要建材:茶鏡、木作、壁紙、木地板、乳膠漆

貫穿客廳與書房的大片對外窗引入戶外光源,以穿透玻璃門板呈現 開放式書房加大公共空間坪數,暖色的日光自然流曳於兩個內室空間,搭配上屋主原有的休閒風格家具,南洋悠閒風不需外求。
屋主碰上設計師:
兩夫妻嚮往擁有一個溫馨兼具美感的和風居家,正好屋主媽媽的朋友曾經是春雨設計的客戶,媽媽對朋友房子的整體風格印象很深,屋主也非常中意春雨以小家庭為訴求的設計,也因為有周建志設計師的陪同探勘,不但清楚老屋狀況,對周建志設計師精準抓出的老屋問題及提出的改良配置更是感到認同與信任,便放心地交給春雨改造這間缺點很多的老屋。
屋主需求大聲說:
都在工作的兩夫妻,常常需要將工作帶回家,因此對於書房有強烈的需求,想要擁有一個舒服且寬敞的工作環境。在溝通之初,男主人提出他有藏酒的喜好,希望他所蒐藏的洋酒與紅酒,可以有個展示與收納的地方。另外為因應屋主對音樂的熱情,周建志除了為一整套高級音響安排理想位置,更利用客廳大樑下的空間木作出造型書櫃與CD收納櫃。
不同於先進行空間裝修再添置家具,屋主早已選定了一系列的柚木家具,所以在重新規劃的時候,配合家具設定在休閒與溫暖風格,也要把原有家具的尺寸考慮進去。
這間位在台北市中心的老屋,室內幽暗、天花板低、格局改的很複雜、樑大又厚、柱子多、畸零空間也多,這些都是屋主極度不滿意的地方,希望透過周建志的專業設計與重整,替這間條件不理想的老屋進行大變身!
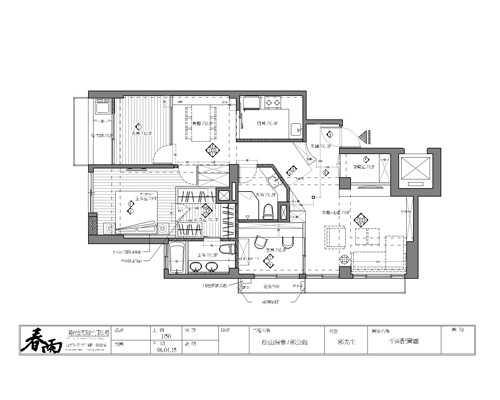
Before

After

看設計師變魔術:
原本的屋高只有260公分,前屋主有大改過格局,使得客廳旁邊就是廁所、洗衣間,採光都被遮住了,室內非常昏暗。而原本的柱子也很多,周建志利用動線跟天花板的重整,以及將樑柱隱藏、美化、甚至利用它去創造機能。,達到屋主想要的溫馨舒適的風格。
玄關牆面使用洗石子讓空間有休閒感、地磚則使用度假氛圍的銅鏽磚。而玄關右側一整片的折疊式茶鏡,打開之後就是偌大的儲藏室,所有的大型家電用品及工具都收納在這個空間之中。
原本的洗衣間位於現在的書房,移除後改成透明玻璃拉門的開放式書房,不但讓客廳的深度拉長,採光也增加了一半,讓右側的走道不會太過於陰暗。原有的柱子多、樑也很低,在電視主牆處,利用亂紋板及烤漆去修飾,使它成為主牆造型的一部份。再利用樑下的空間,在下方木作出造型書架,不但讓大量的書籍有藏身之處,櫃體的造型也成為客廳的裝飾。
1.


原本只能放小鞋櫃的玄關,沒有任何遮蔽與收納的功能,周建志在玄關正前方作鞋櫃,同時又當屏風,由於玄關有一處小型畸零空間,為了善用坪效,並做出弧形的鞋櫃,讓收納量增加了一半以上,玄關也因此變得寬敞、舒適。
2.


由於樓層高度僅260公分,用傾斜的天花板去包覆,讓更多採光進來、拉高視覺感,大幅降低壓迫感。
3.


電視主牆兩側的大柱子,用亂紋板修飾之後,反而成為電視主牆的對稱裝飾。而客廳大樑下的空間木作出造型書櫃,不但多了藏書空間、又可使客廳更加活潑。
4.


老房子原本的樑又大又低、柱子又多,周建志透過設計將樑柱隱藏、美化、甚至利用它去創造機能。以斜型走道隱藏柱子,並利用空間創造收納機能。
5.


位於廚房與客房之間的餐廳,為了採光,與客房之間的隔間採用透光但不會透視線的夾紗玻璃。利用灰黑白壁紙的低調華麗去營造整體的餐廳氣氛。
聽設計師說設計:
這間位 於台北市中心的老屋,室內幽暗、天花板低、格局改的很複雜、樑大又厚、柱子多、畸零空間也多,不但不符合生活動線,也造成空間零碎。對春雨設計而言,是一 項挑戰,跟屋主溝通討論的過程,前前後後更換了很多配置方式,斜走道的設計就是為了克服直走道所造成的動線不順。而周建志也不斷突破重圍,將畸零空間轉化 為收納空間、將柱子作為主牆對稱的效果、利用斜天花板讓更多採光進來、拉高視覺感…成功為老屋進行大變身的過程,讓春雨設計對空間規劃更有把握。
