提醒你

本網站隱私權政策已於2018年7月20日更新,請至閱覽並同意新版隱私權政策,若您未勾選同意而繼續使用本網站,則視為您已同意新版隱私權政策。

登入 / 註冊

會員登入

網友 / 設計師註冊

首頁 > 找文章 > 設計師撇步-設計深度報導 > 《舊屋整型》哥爸妻夫來度假!!

《舊屋整型》哥爸妻夫來度假!!

文字_李寶怡 圖片提供_寬引設計
 
設計家,searchome,
 
當設計師遇到舊屋……
因為顧及兄弟妹姐在北部的聚會有個落腳處,因此居住在南投的屋主特意在台北市區買了一間有電梯的中古屋,並透過關係介紹,認識了寬引設計的陽蹲少及陳宣甫兩位設計師負責操刀設計及施作監工。
 
第一次進到這個屋子裡時,陽蹲少覺得空間格局算是不錯,而且每間都有採光,不過19年的老舊電梯華廈,多少都有一些基礎上的問題,包括有局部壁癌、鐵窗老舊、管線怕無法負荷等,因此在與屋主溝通時,除了要協助解決以上問題外,還要顧及屋主期望這個聚會小屋,能充份發揮招待及休憩的功能,所以針對屋主的需求,設計師將空間重新規劃,也為這間老屋重新打造一個全新的生命及使命。
 
設計家,searchome,
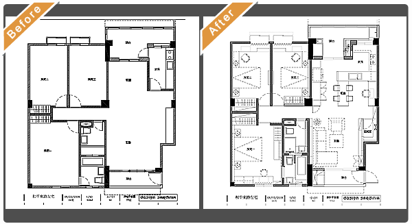
平面圖
 
舊屋的問題V.S.及設計師的解決方法
Q1:原本老舊格局,一進門的客廳小且收納不足?
A:由於空間格局的關係,所以一進門的客廳電視牆這個面走到一半就凹進去了,讓整個客廳看起來並不完整,因此陽蹲少將整個電視牆從入口的牆面拉平延伸至餐廳,凹進去的地方則做一儲藏室,滿足屋主的收納問題。而儲藏室的入口正好是走道的一端景,端景櫃的旁邊至廚房的零星空間,則依屋主需求規劃一個開放式的書房,同時完整的電視牆面也讓整個客廳看起來十分大器。
 
設計家,searchome,
 
Q2:密閉式廚房小又陰暗,且行徑至後陽台不方便?
A:這個部分設計師花了點時間與屋主溝通,因非長久居住,所以開伙的機會並不多,建議最好做成開放式廚房的規劃,並搭配中島式吧台及餐桌,讓整個空間看起來更為寬闊。而避免傳統對一入門看到灶的風水問題,所以利用屏風遮避。這裡設計師還嘗試先讓屋主挑選廚具,再從廚具的門板顏色延伸至全室的色彩搭配,像是客廳背牆的暗紫、卡布奇諾色的餐櫥櫃,再延伸至每個房間的主色搭配。
 
 alt=
 
Q3:傳統鐵窗的設置不當,引發漏水及壁癌問題?
A:房子沿用傳統鐵窗,因年久失修,導致雨水很容易從窗框滲進來,所以設計師將所有的鐵窗拿掉,更換成氣密窗,同時也在有漏水及壁癌壁面打入藥劑,以加強防水功能。另外在前陽台的部分更做鐵件遮雨棚及窗檯,搭配石材及木料拼貼的玄關鞋櫃,打造出休閒氛圍。同時原本的四片推拉落地窗,改為兩片落地玻璃推拉門,讓外部視野得以延展至室內。
 
設計家,searchome,
 
Q4:通往各房間的走道過長且陰暗?
A:這是老舊房子常遇到的問題,就是走道長又暗。因此設計師刻意修正一下主臥的門,並將其牆面往後推了10公分左右,並搭配一個投影時鐘,使這裡的空間看起來不會太過侷促。門板改為推拉式處理,也較不會佔到主臥的空間及動線。並為讓視覺有延伸的效果,特意將門片的條紋橫放並與木地板相呼應。
 
設計家,searchome,
 
Q5:原本的窗台容易滲水進來,再加上防音效果差?
A:所以設計師利用其老舊房子原有的二層鐵窗,裡面規劃氣密窗,外層隔音。但為了讓屋內的人方便開關窗戶,所以在訂製書桌的同時,將其旁邊的刻意做成台階式的展示書架,讓人方便上下。而且設計師在電視櫃面用灰鏡反射,以放大空間的視覺效果。
 
設計家,searchome,
 
Q6:施工過程中的最令人印象深刻的事情?
由於這個案子的溝通算是完善,因此在施工過程中並沒有太大的問題發生,全部按照進度進行。不過,比較有趣的是在拆除工程時,雖然我們己做了跟管委會及鄰居們的告知動作,但是當機器一運作時,還是惹來隔壁鄰居的抗議,要求我們在下午1:00~3:00不淮施工,因為工時不合理,所以請屋主出面解決。「我記得屋主只跟鄰居說願付旅館費,請她先搬至旅館居住到施工完成。據我所知,雖然這個談判並沒有達成,但這位鄰居從此就沒再上門抗議了!」陽蹲少提供一個跟鄰居溝通的妙招!
 
設計家,searchome,
 
私房得意技BOX:懸吊的床頭天花板設計
設計家,searchome,
 
在臥天花板上,設計師刻意用三根木樑組成「ㄇ」字形,並以6根鋼懸吊在床上方,讓視覺輕量化,同時也可以隱藏燈管在裡面做間接照明。
 
整形舊屋Data
設計家,searchome,
建築形式/電梯華廈
房屋狀況/中古屋
屋齡/19年
座落地點/台北市
居住成員/兄弟姐妹3組家庭
成員年齡/50~60歲左右
空間坪數/室內36坪
空間格局/3房2廳2衛
主要建材/布紋磚、玉檀香、秋香木、胡桃集層木、柚木集層木、人造石、灰鏡、墨鏡等
裝修預算/NT.270萬元
參與設計師/陳宣甫
 
執刀設計師Data
設計家,searchome,
寬引設計,陽蹲少
電話:02-2392-0200/0988-246-086
部落格:http://mypaper.pchome.com.tw/simplydesign
信箱:design-sardini@umail.hient.net
地址:台北市杭州南路一段99號2樓
 
Loading