提醒你

本網站隱私權政策已於2018年7月20日更新,請至閱覽並同意新版隱私權政策,若您未勾選同意而繼續使用本網站,則視為您已同意新版隱私權政策。

登入 / 註冊

會員登入

網友 / 設計師註冊

首頁 > 找文章 > 設計師撇步-設計深度報導 > 《舊屋整型》是什麼原因讓校長硬要住這裡?

《舊屋整型》是什麼原因讓校長硬要住這裡?

文字_柯霈婕 圖片提供_黃上科設計
 
設計家,searchome,
 
當設計師遇到舊屋……
問屋主怎麼會想要買下商用建宅做為自用住宅,「沒別的原因,就是因為這裡的環境!」住家對面是一大片的綠地,附近的生活機能佳又鄰近全家人的工作及學區,而且在宜蘭,一般的透天厝大概60坪左右,買下這間兩戶相加有120坪的房子,請設計師裝修改造下來的預算,「算一算都有比較划算啦!」屋主笑瞇瞇的說。
 
已經退休的校長,找上黃上科的原因,除了他在宜蘭具有極佳的口碑之外,在於黃上科總是耐心地聽完他們的意見並不斷地回頭修改,從一開始提出各種設計的可能性,到格局配置的定案,花了一年的時間溝通,甚至都已經開始施工了,對屋主提出的變更還是重新設計動工,「執行舊屋改造本來就是一件大工程,尤其是這樣一棟從商用改為自用的住宅,要處理的細節之多,加上兩戶打通,可以做出的可能性非常多,相對的屋主也會有許多想像,尊重跟達成共識就是我們設計師該做的!」黃上科說。
 
設計家,searchome,
平面圖Before
設計家,searchome,
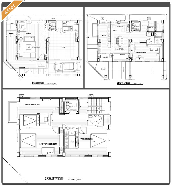
平面圖After
 
舊屋的問題V.S.及設計師的解決方法
Q1:這間兩戶打通的房子做了哪些格局配置的重劃?
A1:黃上科考量整體房子的安全結構,不做整牆的拆除,只打通部份做通道使用,同時因為動線安排的緣故,大門開的左側是主要的活動空間,拆除這邊的樓梯,將客廳及書房設置在此,而將活動路線集中在右側,除了裝設屋主要求的電梯,保留樓梯結構只更新踏板扶手,也為屋主省了一筆預算。打破一般獨棟住宅將公共區域規劃在一樓的習慣,將餐廳廚房、起居室配置在二樓,臥房集中在三樓,使家人不論在那一層樓都有相聚的場所,一樓則空出一半的空間給屋主擺放蒐藏品,完全從一家子的使用習慣著手規劃而成。
 
設計家,searchome,
 
Q2:房子位在馬路邊而有噪音問題,如何解決?
A2:四周有庭院腹地可加以運用,是位在路旁的獨棟房子的優勢,利用庭院可隔開馬路的吵雜,黃上科用實木格柵搭配洗石子牆面,創造前側院空間,並於庭院內綠化景觀,藉由植栽達到吸音效果,創造都市中的寧靜居家氣質。
 
設計家,searchome,
 
Q3:這間屋子是商用宅改成自用住宅,使用需求完全不同,設計師做了哪些變動?
A3:這間房子原本是做為補習班用,在完全無隔間的情況下,黃上科重新分配並施作隔間,衛浴使用磚牆隔間因應防水與龜裂問題,其他空間則在預算及施工時間考量下,使用輕鋼架隔間。為滿足住家使用需求,水電管線也重新配置,並化明管為暗管,讓空間看起來更整潔。另外黃上科維持兩顆電錶,並依電容量做分配,藉此幫屋主節省電費。
 
設計家,searchome,
 
Q4:因本身建築的疏漏而產生的漏水問題如何解決?
A4:這間屋子的其中一面外牆因施工不當產生冷縫而漏水,黃上科從牆的內外去處理,內牆用高壓灌注的方式,填入止漏防水材,外牆再塗上防水塗料,做兩道手續的防水處理。
 
設計家,searchome,
 
Q5:如何把舊家具與新家結合?
A5:屋主老家使用的是台灣檜木這樣的稀有建材,因此屋主特別希望設計師能將老家建材再利用於新居之中。黃上科在玄關及客廳的空間使用老家的木桁樑搭配鐵件做裝飾,並將木作屏風崁入客廳的鐵件拉門中,而極具紀念意義的老檜木桌板則崁入書房的書桌內,完成一張絕無僅有的桌面!其他老家的原木或窗花等造型則做為前院的裝飾,進入書房前的造型屏風,則是黃上科將老家窗框拆卸加工重組後的創意。
 
設計家,searchome,
黃上科X私房得意技:私宅藏景,呼應自然
設計家,searchome,
 
黃上科結合傳統東方風格與現代設計語彙,表現簡約大器的新東方風格,藉由溫潤的木質調性調和簡鍊的東方元素,並選用石材、實木等天然素材堆砌質感,營造大隱於市的住家空間。一樓前院大量使用實木格柵,而客廳的落地窗設計,成功引入室外景觀與光線,破除裡外分隔的侷限。
 
整形舊屋Data
設計家,searchome,
建築形式/獨棟別墅
房屋狀況/新成屋
屋齡/4~5年
座落地點/宜蘭縣
居住成員/3人
成員年齡/60歲左右
空間坪數/120坪
空間格局/5房5廳3衛
主要建材/黑檀木、柚木、栓木、台灣檜木、石材、繃布、塗料、玻璃、木地板、訂製家具。
裝修預算/NT. 500萬以上
 
執刀設計師Data
設計家,searchome,
黃上科空間設計,黃上科
電話:02-8230-0041; 0919-204-434
網站:skh-design.com
信箱:koe@seed.net.tw
地址:台北市木柵路4段147之2號11樓
 
Loading