提醒你
本網站隱私權政策已於2018年7月20日更新,請至閱覽並同意新版隱私權政策,若您未勾選同意而繼續使用本網站,則視為您已同意新版隱私權政策。
每一個空間規劃, 都有它的「主角」。誰才是這個空間的主角?成為影響空間配置的首要因素,隨著時間推移,這位「主角」因而不停地轉換,導致一、二、三代宅的空間規劃產生截然不同的特色,現在,就讓我們一同來瞧瞧這些不同之處在哪裡吧!
ㄧ代住宅:28~35歲
在居住成員較為簡單的一代住宅中,許多屋主多有未來換屋的打算,居家規劃也因此常偏向以「個人」為主,強調給予自己更大的使用空間,增添一間書房或更衣室,甚至將兩個房間打通納入主臥之中,都是常見的規劃設計方式。然而,就未來性空間預留的角度進行思考,一代住宅的規劃,所需思考的未來性其實才是最繁雜的。
「公」VS「. 私」並存的格局動線
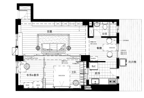
一代住宅的居住成員較為單純,但居家坪數也多較二、三代宅還小。因此,一代宅較其他類型的住宅空間,更為強調空間格局及動線的靈活性與變換性,期待在小坪數居家中,創造最多元的生活機能。

圖片提供_摩登雅舍室內裝修設計
Idea1 雙動線入口讓生活不受干擾
臥房中,同時也納入書房規劃,並於房間兩側各提供一個通往客廳的出入口,配合臥房與書房間的拉門做彈性隔間,切割兩個完整空間,讓夜間晚睡辦公的人,可以不打擾另一半的睡眠。

圖片提供_摩登雅舍室內裝修設計

Idea2 玻璃隔間+捲簾=靈活的空間界定
小坪數的一代宅中,空間區隔相當簡單,將空間上半部作為居家的公共空間,下半部則為屋主的私人空間。通透的玻璃隔間,讓空間看來寬敞不壓迫;訪客來時,則可以拉下預先規劃的垂簾,適時將私人空間遮蔽起來。

圖片提供_摩登雅舍室內裝修設計
Idea3 牆面隱藏門區隔公私空間
希望同時兼顧親友來訪時的宴客空間與個人的隱私空間,設計師因此延續電視背牆的造型,在公、私領域間設計了一道隱藏門,成功劃分了各個區域特性。

圖片提供_相即設計

圖片提供_相即設計
Idea4 打通兩房,為自己增添一間更衣室
成員單純的一代住宅,對於房間數量的需求較低。因此,大部分的屋主多會簡化隔間的數量,為自己增添一間書房或是更衣室。此處設計師也以相同的方式來進行空間規劃,給予屋主一間完整的更衣室;與睡眠區間的過道設計,則讓未來房間需求轉換時,為兩個空間各自加裝門片,即可以輕鬆將一房化為兩房,空間變換可說是極為便利。

圖片提供_相即設計
圖片提供_摩登雅舍室內裝修設計