提醒你
本網站隱私權政策已於2018年7月20日更新,請至閱覽並同意新版隱私權政策,若您未勾選同意而繼續使用本網站,則視為您已同意新版隱私權政策。

屋主的期望:由於平常工作時間長,除了考量交通便利之外,希望居家空間能與小孩有更多互動,讓家能成為一個完全為小孩打造的溫暖城堡。

Before 希望給孩子成長的好環境
建商原本附贈的物件不符合需求,廚房設計也與女主人所需要的不同,因此必須藉由設計的幫助,打造一個好用、也適合孩子成長的環境。
After 好住需求清單
小朋友的書籍相當多,需要有收納的地方
客廳要能有讓小朋友活動與閱讀的空間,並且機能性要足夠
廚房原本的設計不符所需,要讓機能性更為加強
另一個房子要能有豐富的機能性,提昇空間效率
主臥房要能有讓全家人一起休憩的空間
大家都會好奇設計師的家是什麼模樣,對於漫舞空間設計的詹文雄、林育如兩位設計師而言,家不是發揮創意的場所,而是提供兩個孩子最優化的成長環境的地方。
因此,當決定買下這間位於內湖的新居後,所有的設計便圍繞兩個小孩開展,盡可能地為孩子營造出適合閱讀與遊戲的成長環境。林育如設計師說,買下這間新房子一方面是地緣關係,另一方面希望在小孩成長的孩童階段有一個最適合的環境,在多重考慮下,希望家的設計是一個能圍繞著激發孩子創意的生活空間。
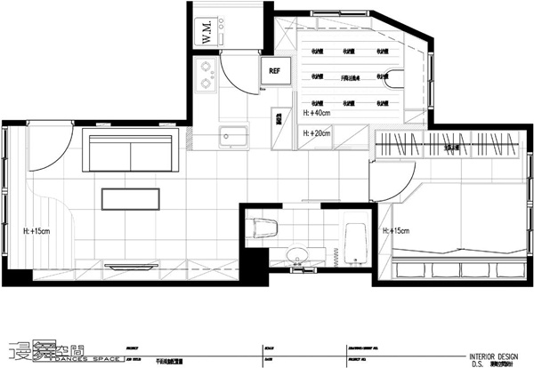
在這個案子裡,設計師退掉了建商附贈的部分物件如廚具。「我們將設計的重點擺在客廳,希望在客廳裡除了給大人坐的沙發外,靠窗的架高地坪是能與小孩一起遊玩、閱讀的地方。」設計師表示,寬敞的空間以及玩具、書籍的收納需求是公共空間的設計主軸,因此客廳在電視牆的規劃上以能收納小朋友的書籍為主,並且也提供了收納日常用品的空間。
廚房的部分則是依照女主人的使用習慣以及避開風水禁忌的概念規劃收納設計以及吧台的高度。至於臥房的設計,由於設計師認為小孩成長的陪伴的時間只有學齡前最親蜜,因此以通舖的概念設計,以雙人床墊搭配兩張單人床墊的方式拼湊起睡眠區域,睡前仍可以說故事的方法,互動陪伴成長的每一刻。
比起華麗的房子,設計師更重視的是如何讓家變得更適合孩子們成長,在此處,設計變得更為實際而有溫度,也讓家變得更具有意義。

電視牆為客廳主要的收納區域,不同形式的收納設計滿足書籍與雜物等收納需求,搭配壁紙更豐富了視覺效果。圖片提供╴漫舞空間設計

沙發背牆有電箱以及對講機,此處藉由展示性的櫃體設計搭配上充滿童趣的壁貼,隱藏了兩個裝置,也讓空間更加活潑。 圖片提供╴漫舞空間設計
After 風格設計提案
提案 1 讓牆面有更多面向的機能
在廁所的外牆設計使用了鏡面,除了可以反射空間解除走道區域的狹窄感覺,牆面上也擺放了小孩的照片,讓牆面不再單調,成為充滿回憶與情感的所在。而靠客廳的薄牆則貼上茶鏡,以展示概念擺放小孩的書籍,藉此讓孩子更有想要選書閱讀的動機。

圖片提供_漫舞空間設計

圖片提供_漫舞空間設計
提案2 為小孩量身訂作的區域
客廳靠窗處的地坪特地架高15公分,讓小孩可以在這裡閱讀與玩耍,客人多的時候也可當作臨時的座位區。電視牆的設計讓線條有變化並可拉長空間感,壁紙可以突出視覺焦點。

圖片提供_漫舞空間設計
提案3 量身訂作的廚房空間
設計師將廚房空間重新規劃,配置在下方的烘碗機具迎合女主人的使用習慣,水槽則配在吧台位置,而吧台則有遮掩爐灶的作用。抽油煙機空間內部配有層板,增加收納空間也提升使用效率。

圖片提供_漫舞空間設計
提案4 多元機能的和室房設計
和室房除了偶爾能讓兩個小朋友睡眠與玩耍使用,強大的收納機能與書桌設計也提供屋主臨時工作的區域。地坪下的空間隱藏升降桌與收納機能,此處同時也可作為臨時客房使用。

圖片提供_漫舞空間設計
提案5 為小孩設計的主臥空間
寬大的床鋪是由雙人床與兩張單人床拼成,全家四人可以一起睡在此處。靠牆處的空間可擺放女主人的睡前讀物,以及常用的藥品與日常用品。刻意選擇的造型吊燈,也是為了滿足小孩的好奇與想像力而擺放的。
圖片提供_漫舞空間設計
資料來源: 135期漂亮家居