提醒你
本網站隱私權政策已於2018年7月20日更新,請至閱覽並同意新版隱私權政策,若您未勾選同意而繼續使用本網站,則視為您已同意新版隱私權政策。
本案原為單層、三間式格局,由於只有屋主夫婦倆居住,再加上空間需求單純,接手規劃的國境設計中心設計師高浩景,決定整合並打通成為一戶,有效整合零碎機能,同時也讓生活空間變得更開闊。同時也替空間注入現代風格,並搭配情境燈光系統,不只可藉由燈光轉換變幻心情,還能變身Lounge Bar,邀三五好友來家開熱鬧一下!
高浩景設計師提及,屋主希望家走純白色系、精品調性,為滿足需求,他以白色烤漆、超白玻璃、鏡面、金屬等材質,替空間注入現代風格,同時,更在天花層次與展示櫃溝縫處,內藏了LED燈條,用情境燈光系統變化家的表情。相互加乘之下,讓這個以白為主軸的空間,不僅各材質得以連貫,也整體物件也變得很有靈魂。
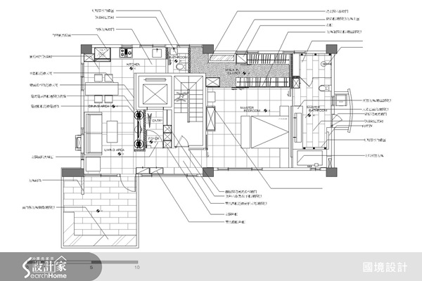
格局部分,從平面配置圖來細看,可發現本案屬狹長屋型,再加上格局中央還有電梯和樓梯矗立,因此在整合過程中,曾讓高浩景頭痛不已。喜歡突破的他,決定從問題點下手,首先將空間一分為二,並以樓梯作為分水嶺,樓梯左邊規劃為公共空間,右邊則為私密空間。
公共區域配置客廳、餐廳、廚房、客衛等空間,由於面臨「縱深長、面寬窄」問題,設計師利用鈦金屬板、鏡面鋼板搭配灰鏡,以及超白烤漆玻璃的反射效果,擴展空間視線,讓使用者身處其中時,不覺侷促反而有無限延伸的感覺。另外,在玄關入口畸零處,一體成形的白色烤漆桌面與鞋櫃,替空間創造新機能之外,更發揮其最大價值。
私密區域則安排了主臥、主衛和更衣間。由於屋主平時熱愛精品,因此在規劃時也朝這個方向來走。高浩景特別設計了有如百貨精品的展示櫃,並以透明玻璃做隔間與灰色地毯呈現柔和的溫室感,再運用不鏽鋼鏡面方管與鐵件,規劃收納層格,讓衣物有秩序地陳列出來。而主衛與主臥之間的隔間也大膽地使用透明玻璃,小空間更有延伸感,整體也更顯輕透、無壓,同時還讓屋主彷彿有置身精品旅店的感受。
設計理念:
每一件案子在規劃前,都會傾聽屋主需求,運用所學專長並經由內化後,將平凡空間整合為理想的室內設計,並成就每一個人對於家的新期盼。
設計師得獎感言:
首次報名參加設計家舉辦的新秀設計師選拔比賽,便能獲得如此佳績,除了開心,更感謝評審的肯定。未來日後,仍會持續不斷充實、突破自己,呈現更不一樣的創作設計之外,也要替委託的屋主完成屬於他們的「夢想家」。

玄關入口處,一體成形的白色烤漆桌面和鞋櫃,有效運用空間,也賦予環境使用機能。

利用鈦金屬板和鏡面鋼板搭配灰鏡,使得超白烤漆玻璃反射的效果,把原有較狹長的空間修整更平衡。

運用材質擴展公共空間視線,讓使用者身處其中時,不覺侷促反而有無限延伸的感覺。

為了讓整體小空間更有延伸感,主臥、衣帽間、主浴室隔間皆以20mm的透明強化玻璃來替空間做區隔。

主臥牆面內嵌不鏽鋼方管,而展示櫃增加溝縫內藏LED燈條,作為自動燈控系統的燈具的變化。

用不鏽鋼鏡面方管與鐵件讓本場空間設計主軸作為相互搭配,創造出有如精品店般的展示效果。

寬敞的主衛浴間,足夠擺放一個大浴缸,讓屋主在家就能享受泡澡樂趣。
