提醒你
本網站隱私權政策已於2018年7月20日更新,請至閱覽並同意新版隱私權政策,若您未勾選同意而繼續使用本網站,則視為您已同意新版隱私權政策。

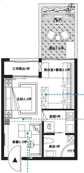
原為 1 房 1 廳的小坪數空間,設計師將原本的隔間牆拆除,改以磨砂玻璃拉門區隔客廳和主臥;書房和臥房的隔間,則用雙面櫃取代,讓空間變成兩房一廳的格局。書房設計了結合雙層書櫃及衣櫃、穿衣鏡的多功能櫃體,等於多了一個更衣間。
玄關入口處貼覆明鏡,讓空間放大,特殊噴深處理的新古典鏡框,可作為穿衣鏡用,虛實交錯的設計,增添設計感。無門框的磨砂玻璃區隔客廳和主臥,不僅讓客廳變大,其透光效果,也讓室內採光變好。
取代臥房、書房隔間的雙面隔間櫃,搭配可旋轉的電視,不僅是臥房的電視牆,也可當書房的電腦螢幕使用,界定空間之餘,讓兩個房間的機能更充足。雙層書櫃內藏衣櫃、穿衣鏡,讓書房還能化身為更衣間,充滿巧思的多功能彈性設計,讓小坪數空間充分被利用。

爭取更多空間的彈性隔間。拆除隔間牆,改為磨砂玻璃拉門區隔客廳、主臥,僅 10 公分的差距,卻讓空間感截然不同。

面使用的隔間櫃牆。以雙面使用的電視櫃兼展示櫃取代制式隔間牆,搭配可旋轉的電視,在主臥使用,就成為電視牆,轉向書房又能當成電腦螢幕用,讓小坪數的空間效益更佳。

磨砂玻璃拉門取代隔間牆,放大空間。原本的隔間牆拆除之後,改為頂天立地的無門框磨砂玻璃拉門,讓臥房、客廳的空間放大,採光也變好。
設計師得意技
美感與實用兼具的設計。玄關入口處利用明鏡反射,放大空間,特殊噴深處理的鏡框,兼具穿衣鏡的效果,虛實交錯的新古典語彙充滿設計感。

機能再加分
多層次櫃讓書房也是更衣室。書桌背後設計了多層次的收納書櫃,隱含衣櫃與穿衣鏡,讓書房也具有更衣室的機能。

總工程費用 NT.135萬元(不含空調、家具、戶外造景)
資料來源:140期漂亮家居