提醒你
本網站隱私權政策已於2018年7月20日更新,請至閱覽並同意新版隱私權政策,若您未勾選同意而繼續使用本網站,則視為您已同意新版隱私權政策。

覺得只有十幾坪的空間不夠住嗎?其實可能是你家格局需要重新設計了!今天小編要為大家介紹的案例只有16坪,卻能滿足5至6人的居住機能,而且還有質感完美的美式鄉村風格設計喔!設計師究竟是怎麼辦到的呢?其實所有的祕密,就藏在決定空間格局的一面牆當中唷!

在進行改造之前,屋案原本的格局配置是以一房一廳為主,屋主希望在原格局的基礎之上,安排能供5至6人起居的生活空間。因此,設計師與屋主討論過後,除了將原本的房間區隔為主臥與次臥,同時更動了原本臥室與客廳之間的牆面方向,讓牆面往客廳方向偏移,成為客廳空間的電視牆面,並以此牆面作為整個家居空間的主要軸心,一邊引導私人臥室的方向,另一邊則延伸至餐廳與輕食料理區,讓空間的層次感更加清晰。
為了讓空間呈現舒適又休閒的美式鄉村風格,設計師採用帶有樸實手工質感的白色文化石來打造客廳電視牆面,讓空間立即展現清爽的鄉村氛圍,搭配具有森林感的木質地板與造型天花板,在色調與材質的呼應之下形構完美的美式鄉村風格居家。
打造美式鄉村居家風格關鍵:
1. 具有自然感的材質能為空間帶來舒適的氛圍,並且營造鄉村風格所特有的田園氣息。例如本案所選用的木材、文化石磚等,讓自然材質的紋理成為空間中最優雅的裝飾吧!
2. 在美式風格居家中常出現以照片裝飾牆面的手法,例如本案客廳與餐廳牆面都懸掛了尺寸不一的照片來增加視覺焦點。假如一時之間沒有時間與預算重新裝修家裡,不妨找一面牆好好改造一下,也能達到美式居家風格的精神喔!

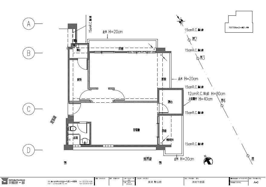
從裝修前的空間平面圖可以看到,整體空間雖然算是方正,但是不符合屋主實際使用需求。

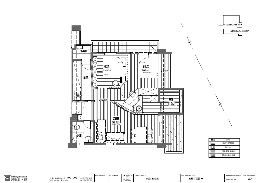
經過改造之後,挪移的牆面成為空間動線的軸心,讓空間坪數得到更有效益的發揮,同時格局層次也變得更加豐富了。

本案的一項優勢是充沛的採光,設計師充分利用了這項條件,利用大面積開窗引入明亮的自然光,讓空間感更加舒適。

客餐廳空間採取開放式設計,讓整體感更加流暢,而天花板與牆面材質則有著界定區域的功能,讓層次感更加清晰。

電視牆延伸連結的另一端是通往主臥、次臥與廚房區域,全部採取木質地板鋪陳,營造舒適的居住環境。

主臥室同樣保留了明亮的採光,並且以木材質包覆修飾大樑與地坪,帶來清晰舒適的氛圍。
小編的最愛
文化石牆延伸所創造出來的小小角落,
經過設計師的巧手經營,
變成輕便實用的輕食料理台,
早餐與下午茶能夠在此輕鬆料理,
讓人優雅地消磨閒適的時光。
而石磚之間刻意留白的細小空隙,
也增添了許多互動的樂趣。
