自從雪隧通車之後,愈來愈多台北人在宜蘭礁溪溫泉區買下可以泡湯的度假屋,短短的車程,就能從都市到郊區,享受徹底放鬆的度假氛圍,讓工作忙碌的都會人隨時都可以充飽電,繼續為生活打拼。經常應屋主要求,替他們量身訂製度假屋的觀林設計黃傳林設計師,不藏私地與大家分享,打造度假湯屋的訣竅。
Q1.度假屋如何規劃空間格局?
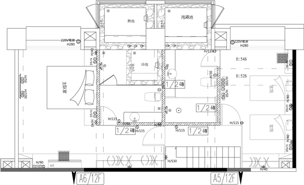
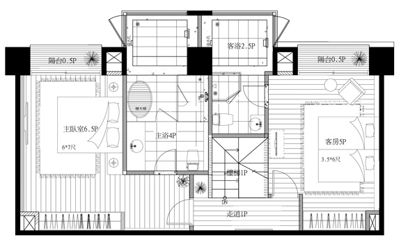
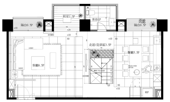
 規劃度假屋的空間格局,首先必須了解經常使用度假屋的成員有哪些?因為使用的成員,會影響到公共空間與私領域的配置。此外,還得考慮使用者在哪個空間停留的時間較久?例如公共區域是度假的家人們共聚、交流的主要場域,開放式的客、餐廳設計,即使來度假的人變多時,也不會顯得擁擠。相較之下,寢居空間就可略微縮小。以礁溪的度假屋來看,原本兩戶打通的格局,擁有四個降板式浴缸,設計師利用開放式設計,搭配若隱若現的格柵,巧妙串連客廳、餐廚空間,並且將樓下的其中一個降板浴缸改為架高和室,搭配升降式和室桌,增加賞景、泡茶的休憩機能。
Before 1f                                                 Before 2f
 
 
After  1f                                                      After 2f
 .jpg)

 兩戶打通之後,依照度假需求重新配置空間。

 依照度假成員多寡,及空間使用頻率,調整格局配置,讓度假屋呈現朗闊的舒壓氛圍。
Q2.哪些材質經常運用於度假屋,在選擇上有哪些考量?
 度假屋使用的材質,最好可以讓人有放鬆、舒緩的感覺,但是對於喜歡奢華質感的屋主來說,在空間中適度選擇大器的石材作為搭配,更能讓他感受到度假屋的質感。因此,在宜蘭礁溪的度假屋中,黃傳林設計師使用了溫潤的木質格柵、剛毅的鐵件、稻梗壓克力隔屏等自然素材,局部鋪陳黑雲石大理石地坪,創造出兼具質樸與華麗兩種風貌的獨特空間。

 質感溫潤的木質感,佐以鐵件、稻梗壓克力隔屏,再搭配屋主喜愛的大理石、文化石牆,讓空間在紓壓、療癒氛圍中,仍能呈現大器的質感。
Q3.度假屋必須滿足哪些機能?
 雖然是度假屋,但在設計時仍需考慮到可以滿足度假成員共同使用的實用收納,以及便利的生活機能。包括設備充足的餐廚空間、滿足基本視聽需求的影音設備,和收納容量足夠的玄關櫃、衣櫃等。連客臥設計,也不馬虎,甚至利用床頭背板的深度,增加開放式層架,放置擺飾與隨手可拿取的日常用品。

 容量充足的收納,也是度假屋不可或缺的機能。

 配備齊全的餐廚空間,滿足度假屋的生活機能。
Q4.讓度假屋與環境呼應的秘訣為何?
 設計度假屋時,黃傳林設計師不忘讓室內空間與戶外環境相互呼應,以宜蘭礁溪的度假屋為例,除了選用自然的木皮與自然環境相互呼應之外,甚至將日式建築外觀的特色納入室內設計的考量,在客廳充分運用木格柵、架高和室等元素,讓讓空間呈現靜謐的禪風特質。
 
 透過木格柵、隱含升降和室桌的禪風設計語彙,讓室內空間與建築體的日式設計呼應;引景入室的手法,則讓空間與戶外大環境呼應。
小編看設計
 度假屋的設計最重要的就是舒壓的氛圍營造,觀林設計的黃傳林設計師,不僅有豐富工程經驗,且能精準掌握屋主喜好,並能透過專業考量,讓自然環境與建築特色與室內設計呼應,若想打造度假別墅,非他莫屬。