閒置多年的透天毛胚屋,屋型狹長,希望改善採光,讓動線流暢。因前屋主裝修未完成,渴望重新規劃但保留部分建材。
提問人:張先生 職業:商 家庭成員:4 人 坪數:127 坪 地點:台北市
平面圖診療專家 黃傳林
現 任:觀林設計主持設計師
強項空間:老屋、單層大坪數、樓中樓、透天別墅
強項風格:日式禪風、現代奢華
屋主提問
1.買下五層樓+地下室的透天住宅,但屋型較為狹長,希望格局配置能讓空間明亮開闊。
2.將前屋主裝修到一半的工程,重新處理,並延用部分建材,改善因閒置多時的漏水等問題,其他部分則依自己喜愛的風格重新裝修,不知是否可行?
專家解析
1.接手裝修到一半的透天住宅,必須將原裝潢拆除,管線重配,才能做出符合需求的設計。屋主想保留已鋪設的地坪,因此得找到原始供應商,才能讓空間有一致性,後續設計也得在材質、色彩上慎選,才能相互融合。
2.地下一樓是主要出入口,除車庫外,須涵蓋玄關接待功能,因此在此區規劃大容量鞋櫃,再透過銀箔端景牆的設計,讓迎賓區變得更大器。一樓玄關、客、餐廳採開放式設計,利用珍珠母貝、鐵件、玻璃隔屏,界定空間,讓採光明亮,再搭配聖誕樹紋理黑雲石做為主牆裝飾,餐廳與客廳之間的過度區則運用金絲玻璃增添低調奢華的裝飾效果。沙發背牆以灰鏡、白楊、鐵刀木皮交織,呈現豐富層次,透過灰鏡反射,讓狹長空間有放大效果。
3.餐廳採開放式設計,屋主選擇的進口廚具搭配量身訂製,嵌入廚具的大理石中島,讓廚房機能更齊全。
4.二樓主臥以沉穩的木質規劃大容量衣櫃,並搭配貝殼飾帶讓空間有延續性。為了不遮蔽採光,僅利用玻璃拉門區隔主臥與更衣間,再透過不同地坪材質界定空間:臥房與更衣間為紫檀木,過度區用黑雲石,主浴則為新米黃大理石。
5.三樓除視聽室與男孩房外,利用電梯前的過度區設計開放式書房;四樓過道區也設計為開放式書房,除女孩房外,另規劃一間多功能休憩空間;五樓面對佛堂的隔間牆改為清透的玻璃隔間,讓採光通透。
《平面圖診療報告》
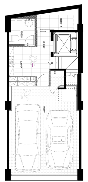
1.地下一樓為主要出入口,利用車庫後方增設大容量鞋櫃,規劃為玄關接待區。

2.一樓玄關、客廳、餐廳採開放式設計,利用珍珠母貝、鐵件、玻璃隔屏界定空間讓光線通透。

3.二樓更衣間與主臥間用玻璃拉門區隔,保留採光,再透過不同地坪材質作出隱性界定。

4.三樓電梯前過度空間設計為開放式書房。
.jpg)
5.四樓增設休憩區。過道區規劃為開放式書房。
.jpg)
6.五樓佛堂正前方改為清透玻璃隔間,讓採光通透。
.jpg)
《Before & After 圖集》
After

地下一樓接待區,規劃一整排胡桃木鞋櫃滿足收納,再搭配銀箔壁紙端景,呈現低調華麗的質感。
Before After

原本的毛胚狀態,改為質感溫潤的實木踏階搭配木格柵取代制式扶手,展現日式禪風意境。
Before After

保留原有地坪,重新規劃開放式客、餐廳。
After

用鐵件、玻璃、珍珠母貝隔屏區隔,保留空間穿透感。
Before After

開放式餐廚空間,以氣派的黑雲石搭配金絲玻璃裝飾,呈現低調奢華的設計風格。
Before After

二樓用紫檀木、黑雲石、新米黃等不同地坪材質,界定主臥、過度區與主浴;
更衣間深色櫃體,用貝殼飾板腰帶,讓視覺有延伸的效果。
Before After

After

二樓主臥和更衣間均以沉穩的木質感為主軸,利用玻璃拉門區隔,讓光線通透。
Before After

淺色系為主的開闊大器主浴,讓二樓變得更明亮。