提醒你
本網站隱私權政策已於2018年7月20日更新,請至閱覽並同意新版隱私權政策,若您未勾選同意而繼續使用本網站,則視為您已同意新版隱私權政策。
老屋翻修很容易遇到空間不平整的問題,豐聚室內設計利用不同設計手法拉正空間,並且有效利用,讓我們來看看設計師的如何把空間變「正」。
提問人:台中太平市別墅屋主 家庭成員:2 大人 1 小孩 坪數:75 坪 地點:台中市
屋主提問:
1.雖然是三層樓的別墅,但每層坪數不算大,加上基地並非平整的長方形,右側向外傾斜約15度,是否能讓室內空間看起來更方整,而且不浪費空間。
2.不希望要出現過多的傳統木作,風格上是否有不同選擇。
設計師解答:
許多房屋受限於基地,內部空間並非有好規劃方正格局,也很容易因留下畸零處。為了讓不平整的基地,在進入空間後有方整的視覺感,在左側部分做一道和右側牆面平行的拉門來修正原本傾斜的牆面,拉門採用清玻璃材質,後方則利用空間增設收納櫥櫃,使整個客廳空間具有層次,同時有效利用坪數。
加上屋主不喜歡過多的傳統木作,因此空間以現代風格為主軸,並採用對稱手法來設計;除了右側牆面的雙面茶鏡外,電視主牆旁也開出左右大面開窗,構成平整的對稱,使整個空間更為平衡有序,茶鏡反射特性同時也有放大空間的效果。將廚房設計在左側傾斜處的角落,ㄇ字型檯面能提升廚房工作效率。
二樓以開放式設計弱化不平整感,順著空間輪廓將書房區域規劃在左側,小孩房則放置在右方。三樓整層為主臥空間,在起居室以牆板修正空間;主臥與起居室之間以高底差界定,並在中央設置一道電視牆,留出左右對稱出入口;起居室往外延伸規劃半戶外露台,大面玻璃將室外景色引入,營造出空間的開闊感。
搭配平面圖分析
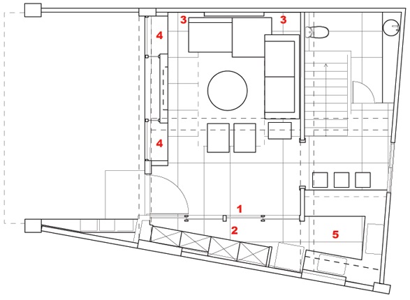
1F 格局改造:
1.設置一道與對牆平行的玻璃拉門修正空間。
2.利用畸零空間規劃收納櫃。
3.以茶玻璃做出對稱裝飾。
4.電視牆兩側開出對稱開窗,創造空間平衡感。
5.傾斜處的角落設計廚房,ㄇ字型檯面提升操作工效。
1F After 平面圖

2F 格局改造:
6.2樓順著空間輪廓將規劃書房區域,開放式設計弱化不平整感。
7.小孩房設置在較方整位置較為舒適。
2F After 平面圖

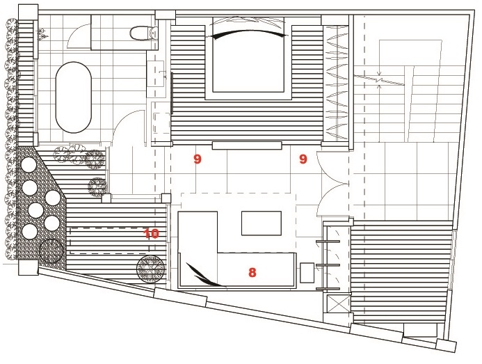
3F 格局改造:
8.主臥室以牆板修正傾斜處。
9.主臥雙出口構成對稱視覺。
10.以玻璃模糊內外界線,使空間產生開闊感。
3F After 平面圖
.jpg)