屋型:挑高夾層
前後屋高不一致的挑高住宅(前段3米,後段4米2),且前段廚房採封閉式隔間,讓空間變狹隘。設計師利用高低落差,將前段的客、餐廳改為開放式設計,且讓中島吧檯延伸為餐桌,滿足餐廳機能,讓空間變開闊。
房屋後段增設夾層,規劃為主臥、更衣間、主浴,再利用夾層下設計書櫃。主臥房以玻璃取代隔間牆,讓室內採光通透,同時保有空間穿透感。
工作室保有既留的4.05米挑高,與客廳之間以開放式鐵件烤漆隔屏區隔,並與串聯樓上、樓下的鐵梯連結,創造獨一無二景的空間端景,同時兼具收納、展示機能。天花板沒有繁複的設計,僅設軌道燈照明,不到20坪的空間,卻運用了鐵件、玻璃、不鏽鋼、文化石等豐富素材,讓空間呈現Loft風特質 。
1 房屋前段捨棄制式隔間牆,改為開放式客廳、餐、廚設計,再運用超耐磨木地板、拋光石英磚兩種不同的地坪,做出空間界定,讓空間變開闊。
.jpg)
圖片提供_大雄設計Snuper Design
2+3 工作區和客廳,利用鐵件隔屏界定區隔,再與串聯樓上、樓下的鐵梯互相連結。

圖片提供_大雄設計Snuper Design
4 樓上的夾層,規劃為主臥、主浴和更衣間,臥房利用玻璃隔間,保留空間穿透感,同時讓室內保有良好採光。

圖片提供_大雄設計Snuper Design
5 利用高低落差的錯層設計,保留工作室挑高,夾層下方的空間,則規劃一整面書牆,滿足工作室的收納機能;區隔工作室和客廳的隔屏,同時具有展示收納機能。

機能再加分 巧妙利用空間增加收納 圖片提供_大雄設計Snuper Design
6 設計師運用系統木紋板材、鐵件烤漆、文化石、不鏽鋼、超耐磨木地板及拋光石英磚等豐富素材,打造洋溢Loft風特質的空間

設計師得意技 運用多元素材突顯Loft風 圖片提供_大雄設計Snuper Design
Before



After
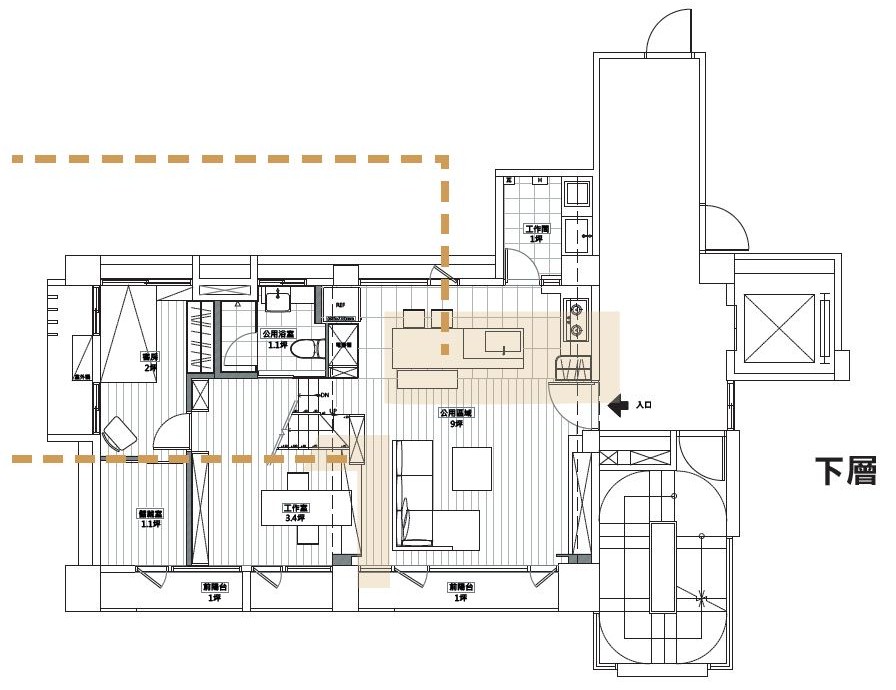
格局破解Point4
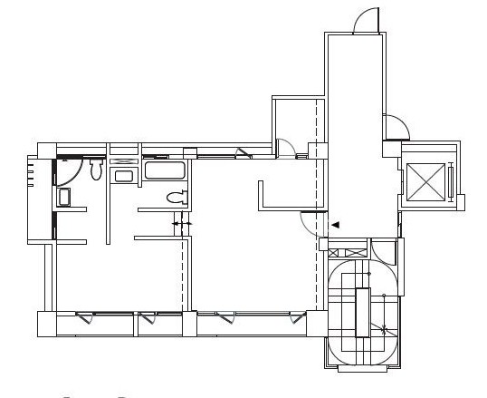
上層
主浴轉角採用玻璃隔間,讓空間穿透,減輕壓迫感。
主臥用玻璃隔間,取代制式隔間牆,保有空間穿透感與良好採光。(見圖4)
下層
捨棄封閉的廚房隔間牆,改為開放式設計,讓客、餐、廚連成一氣。(見圖1)
工作室與客廳之間利用鐵件隔屏區隔,再與串聯樓上、樓下的鐵梯,作連結。(見圖2、3)
總工程費用N T . 2 3 0萬元(不含家具、電器)
