提醒你
本網站隱私權政策已於2018年7月20日更新,請至閱覽並同意新版隱私權政策,若您未勾選同意而繼續使用本網站,則視為您已同意新版隱私權政策。

在客廳植入了一座微斜天花板,透過從低到高的高度變化,帶出挑高寬闊的視覺感
住家
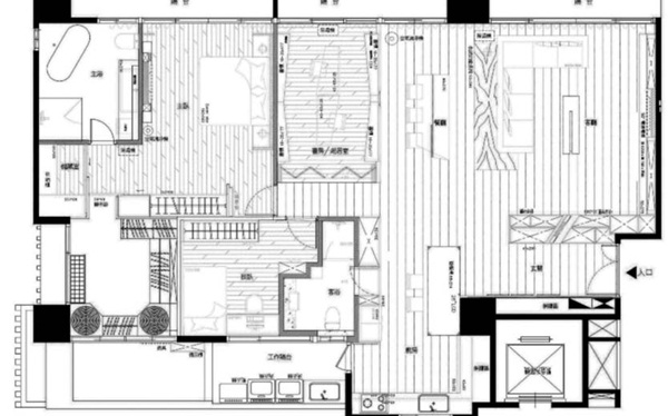
坪數: 75 坪
格局: 3房2廳
建材:梧桐木、鐵道木木皮、鐵件、H型鋼、海島型木地板

比例、色系、紋理,產生出節奏變化
以素白作為空間表情,並加入款式新穎的設計傢具傢飾,創造出時尚且具視覺享受空間,要是你以為這樣就是熟悉的李中霖,那麼這個在台北的住宅案,就會令你訝異。
本案屋主是一對年輕夫妻,鍾情於現代感和自然況味,幾經討論後,雲邑設計設計師李中霖,試圖運用自然感和工業調性做鋪陳,其中摻雜了點個性與奢華味道,相互撞擊之下,木作的自然與溫度有了另類解讀。
為展現空間器度, 格局規劃以開闊為主軸,為拉長視野,在客廳植入了一座微斜天花板,也在餐廳、簡餐桌一帶加入折疊天花板,藉由高低差的對比,在視覺上帶出高挑錯覺,也讓平面空間變得很立體有趣。由於屋主喜愛木質元素,於是設計師李中霖試圖突破材質既有的運用概念,壁面、櫃面、天花板以梧桐木做鋪陳,並將它切割成塊狀,以不同比例、色系、紋理,產生出節奏變化。
地坪則是以人工方式,將海島型木地板採人字型拼貼呈現,造就出一種秩序美感。此外,木料更進一步轉換為傢具和傢飾用材,客廳那張木沙發,便是出自於李中霖之作,取得座椅骨架後,再利用剩餘角料進行貼覆製作,不但獨一無二,也看見木的另類變化。除了木元素,鐵件也是空間重要的素材之一。將它以線框運用於樑下,或是承載簡餐桌等,形成強而有力的勾勒效果,空間並非只一味地走木元素,藉由鐵件的運用,又再交織出豐富的視覺層次。

以鐵件為架構,再放上不同實木條組合成的木板,造就出獨特的簡餐桌。

全室天花板、壁面、櫃體均由梧桐木鋪陳,將它切割成塊狀做拼貼,用其紋理色澤帶出節奏變化。

利用鐵件吊掛住簡餐桌,讓屋主有時也能隨興在此享用早餐或咖啡。

電器櫃體表面所使用的是鐵道木木皮,色調與深鐵相呼應,本身也具有紋理美感。

取得座椅骨架後,利用剩餘木角料進行貼覆製作,而成就出這張獨一無二的木沙發。

書房區則較為現代,利用鐵件與鏡面材質,讓空間饒富現代、冷冽的氣息。

木料的運用也進一步轉變成傢飾,利用木片拼組成鹿頭掛飾,讓臥房變得格外生動。

將海島型木地板裁切成細條狀,以人字型方式做拼貼,創造出的W字型,很有一致性美。

空間中搭配了經典的現代傢具,讓溫潤的木空間中,也能透出時尚氛圍。
Wood X Trend
木材質:梧桐木其紋理通直、緊密細緻,但本身屬性較軟,必須處理後,才能產生明顯凹凸效果。於是便有業者將梧桐木以風化處理,表面凹凸立體紋相當特別與明顯,現今廣泛運用在室內裝修中。
木工法:將梧桐木切割成塊狀,以不同比例在壁面、天花板、櫃體等做拼貼,能創造出節奏感與律動效果。另外,地坪則是以人字造型做拼貼,像寫人字一樣,一撇一捺連續性黏貼,便能創造出人字效果。
木造型:利用H型鋼製造出微斜或帶折疊效果的天花板造型,再以梧桐木做拼貼,相互創造出的線條變化,巔覆以往對木的造型塑造。
資料來源:143期漂亮家居
雲邑室內設計 設計師 李中霖 網址www.yundyih.com.tw 信箱 st6369@ms54.hinet.net