提醒你
本網站隱私權政策已於2018年7月20日更新,請至閱覽並同意新版隱私權政策,若您未勾選同意而繼續使用本網站,則視為您已同意新版隱私權政策。

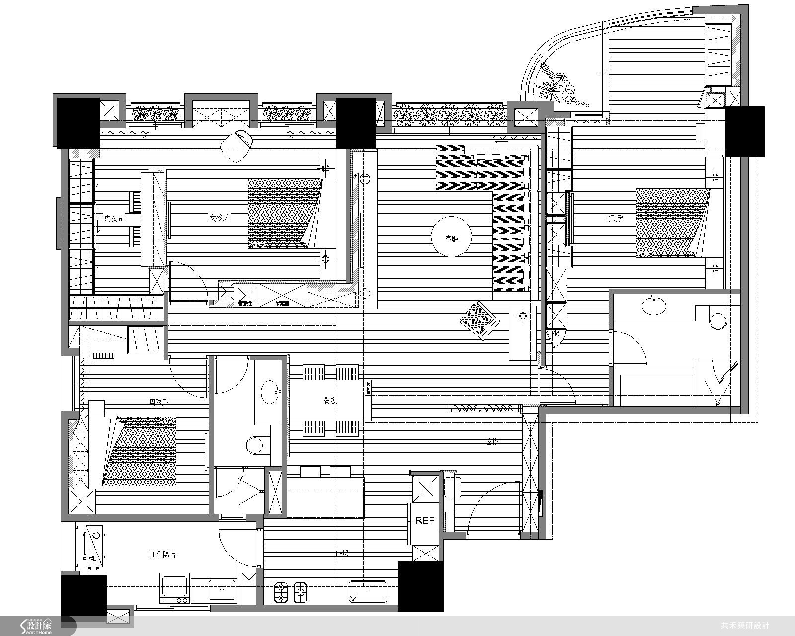
小編帶你看好宅:提起居家設計,有人喜歡華麗而繁複巴洛克風格,也人則偏好樸實卻溫馨的鄉村生活,但對於屋主一家而言,更喜歡生活簡單、乾淨就好。為此,設計師選擇將空間的線條採取俐落規劃,搭配明亮採光、色彩或建材運用試圖營造清爽明亮的空間感,也更符合他們對於生活的想像。
在入口玄關的位置,首先利用一道鐵件格柵同時化解風水穿堂煞的問題,並提供玄關充足採光。進入公共空間採取開放式,將客廳電視牆結合整齊的收納設計,以白色為主,搭配木皮和灰鏡創造清爽質感;同樣強調簡單的餐廳,則改以茶鏡搭配木皮使用,再點上一盞鏤空雕花的吊燈,為恬淡空間加入些許活潑氣息,用起餐來更加輕鬆自在。
而屬於私人空間的臥房,則除了必不可少的收納機能,也在主臥床頭貼上一面花樣壁紙,增添視覺變化;並且考慮居家成員的使用需求,設計師於是合併兩間臥房,重新打通成一間次臥房,利用書桌隔開睡眠區域和閱讀、更衣室位置,讓整體機能更加完整,也滿足一家四口對於生活的期待。
打造居家純淨質感的規劃重點:
1.在線條、色彩和建材使用都趨向單純,讓空間清爽無壓。
2.整合開放和隱藏收納,加入些許活潑元素,讓居家俐落中卻不失視覺變化。

電視櫃以白色為主要色彩,下方略為突出的檯面設計,則作為簡單的置物空間。

大量白色打造居家無壓感受,玄關並利用一到鐵件欄柵,化解風水禁忌。

利用茶鏡和木皮創造自然清爽的用餐場域。

將兩間房間合併成為一間次臥房,並在書桌和天花造型,區隔睡眠區域和閱讀兼更衣區的位置。

臥房同樣強調清爽設計,並妥善利用房間入口和牆面間的畸零區,規劃一座衣櫃和簡單的閱讀區。

床頭規劃置物空間,提供每個房間都有充足的收納空間。

小編最愛:
在電視櫃下方製作一座開放置物平台,一路延伸至走道牆邊的置物櫃,提供整潔、充足的收納機能,並適度調整檯面和抽屜深度,確保每一個櫃子都能實地被使用。

更多共禾築研設計
總價_199萬