提醒你
本網站隱私權政策已於2018年7月20日更新,請至閱覽並同意新版隱私權政策,若您未勾選同意而繼續使用本網站,則視為您已同意新版隱私權政策。

空間沒有刻意劃分區域,透過流暢的動線融合成一個休閒場域,中央壁爐能保持室內乾爽,同時也成為公共區域的主題。圖片提供_藝念集私空間設計

動線同時引導視覺,自然光線穿透的空間,從不同角度觀看皆能發現空間的豐富表情。提供_藝念集私空間設計
由於屋主喜歡自然環境帶來的生生氣息,特別選在台北近郊做為新居住所。感情融洽的一家人,希望空間中融入日常中的創作及藝品收藏,因此設計師特別將父女倆共同完成的繪畫作品,以鑄鐵打造成獨一無二的大門裝飾圖騰。
以流暢動線融合成廣闊休閒場域
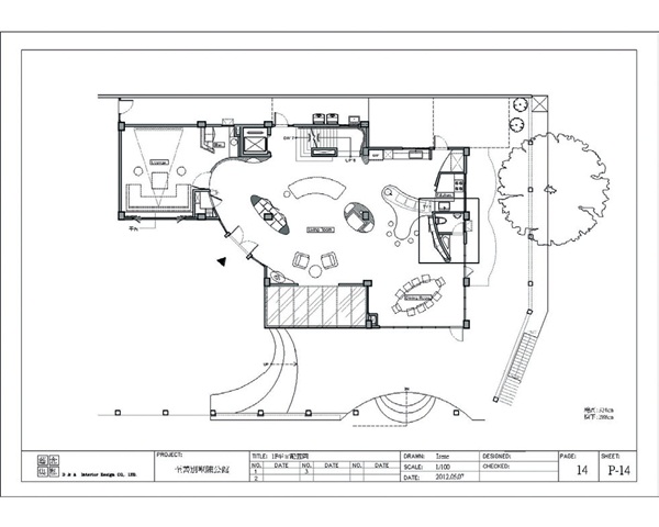
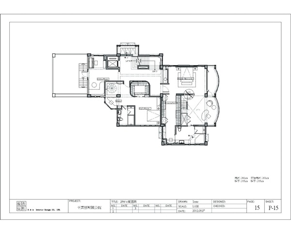
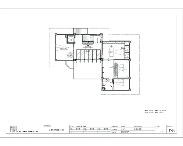
進入大門後,入口的橢圓柱不只做為端景,更引導出雙向動線,往左通往視廳室,往右則進入公共區域。空間包含一個玻璃打造的陽光屋,整體公共區域也因為大面開窗顯得明亮舒適;由於男主喜歡具有藝術感的曲線,設計師也巧手運用流暢的曲線勾勒空間輪廓,線條同時帶動了自由的行走動線,空間沒有刻意劃分區域,利用地坪材質的變換來界定彼此。由於郊區較為潮溼,設計師在中央打造一座壁爐,不僅讓空間更為乾爽,即使在寒冬中也能保持溫暖。壁爐後方則是餐廚區域,順著壁爐弧形打造一座有機形體的吧台,一旁的展示牆面,整齊陳列女主人喜歡餐瓷收藏。廚房區域除了可以準備蔬果輕食的流理檯外,另闢一間快炒區,讓空間不會因中式烹調習慣而造成滿室油煙。二樓規劃為主臥及小孩房,各自有一座內梯通往閣樓,能適度保有獨處時光;主臥從寢居區、衛浴到更衣室,規劃一個彼此相通的迴游動線,讓更衣、沐浴時能縮短來回拿取衣物的時間。整體空間大膽的搭配色彩,卻在設計師整合中完全協調融合,構成一個充滿藝術氣息的休閒住宅。
1 材質 巧用材質創造空間層次
客廳局部採用大甘木皮染白,保留木頭自然紋理,同時保有木素材帶來的溫暖的感受,而不顯得太過老氣;地坪則以不同處理的瓷磚來界定區域。

圖片提供_藝念集私空間設計
2 材質 大面玻璃引入充足自然光
公共區域有一處以玻璃打造的休閒空間,清玻璃穿透的特性讓自然光線能輕易穿透,室內的明亮感因此大為提升。

圖片提供_藝念集私空間設計
3 機能 展示收藏的大器陳列牆
女主人有收藏餐瓷的喜好,因此特別打造整面的陳列牆,能有條不紊的展示體積較小的收藏物件。

圖片提供_藝念集私空間設計
4 機能 保持室內乾爽的造型壁爐
位於郊的住宅,容易有潮濕的問題,打造一座壁爐不但能保持空間溫暖乾爽,空間因此也更具主題性。

圖片提供_藝念集私空間設計
5 色彩 粉嫩色彩營造女孩房生動氣息
女孩房的牆面及天花都選用不同色彩,由於都是屬於明度較高的粉嫩色系,反而展現女孩活潑開朗的個性。

圖片提供_藝念集私空間設計
6 動線 創造靈活動線水平垂直移動好容易
主臥在睡眠區、衛浴及更衣至規劃為一個彼此相通的迴游動線;另外的內梯則能通往男主人專屬的辦公閣樓空間。

圖片提供_藝念集私空間設計
B1

1F

2F

3F

※本案將於2014年5月30日(六)《設計家》電視節目中播出
《設計家》播出時間:
【非凡新聞台CH58 】
首播 (六) 深夜 24:00
重播 (日) 上午 10:00
【TVBS歡樂台CH42】
首播 隔週六 晚間18:00
資料來源:146期漂亮家居