這是棟位於西班牙巴賽隆納的狹長建築,由於面寬僅 4 米寬,再加本身狹長格局造成先天採光不足、動線與通風不佳等問題,因此,接手的 HARQUITECTES 設計團隊,便特別針對這些情況加以改造,讓老屋變身成小而美的透天住宅。
圖片提供_HARQUITECTES
本案座落於 20 世紀前半世紀,西班牙巴賽隆納當地所發展出來的典型工人住宅區,在這樣地段上的房子和台灣早期的街屋很相像,建築物進身很長而基地面寬很窄,整體以共同壁連結,形成如排狀的建物。原建物除了屋型長、面寬窄之外,還有先天格局上採光不足、動線不佳、通風不良等問題,所以 HARQUITECTES 設計團隊,特別針對這些缺點加以改良。
由於本案人口數不少,除了屋主夫婦之外,還有 3 位小孩,為了滿足格局上的需求,HARQUITECTES 決定以「向上爭取空間」方式,將樓層往上延伸,讓平房變身成擁有3層樓的房子,成功照顧到每個人對空間的需求性,同時也看見建物的延展性。另外,原屋型狹長、面寬較窄所伴隨而來的問題,也因為加入天井與 Z 型階梯之後,一一被克服。
圖片提供_HARQUITECTES
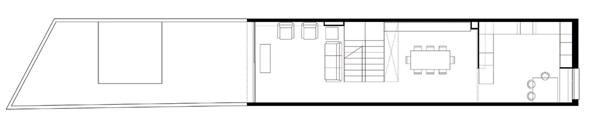
天井和Z型樓梯有效改善採光問題
首先,團隊選擇將天井規劃在格局的中後段,並搭配頂樓開天窗、底下空間結合落地窗方式來呈現,光直線灑入室內之外,還能以斜角方式進入到其他空間,讓各處不再有「暗室」的情況產生外,也有助改善通風問題;至於Z型階梯則規劃格局的中間區,發揮串連樓層、引光入室之餘,也清楚區分各個樓層及空間的使用屬性,讓整體動線更加流暢。樓層配置部分,1樓分別為天井庭院、主臥、男主人的書房等;2樓為客餐廳、廚房等;3樓則為小孩房與遊戲室等。如此安排,為的就是要讓空間屬性更加明確,全家人相聚時可以聚集在2樓的公共空間,當需要各自獨立空間時,則又可以再回到各自的區域,使用上更加彈性自如,也不用擔心受到干擾。
設計解析 Key Points
Point1. 注入天井設計讓室內更通透明亮。
設計團隊在狹長屋型中,加入天井設計並規劃格局的中後區域,結合頂樓開天窗方式,將光線引入室,同時底部空間還搭配落地窗方式,改善室內陰暗情況,同時也有助解決通風問題。

圖片提供_HARQUITECTES
Point2. 樓層獨特設計增添趣味與豐富性。
建物雖然是採取往上延伸方式來爭取更多使用空間,但設計師並未全部做滿,在格局後段部分,特別留了一大片的中庭區域,有效引光入室之外,也讓格局更添趣味與豐富性。

圖片提供_HARQUITECTES
Point3. Z型樓梯讓「暗室」消失。
空間中設置Z型樓梯,常擔心有佔空間困擾,但在狹長屋型中卻格外重要。除了有效串連各個樓層之外,隨它鏤空的特性,使得光線可以從其中穿透到其他處,室內不再只有前後才能擁抱陽光,而是做到讓每個格局都是光線充足的效果。
圖片提供_HARQUITECTES
資料來源:145期漂亮家居