提醒你
本網站隱私權政策已於2018年7月20日更新,請至閱覽並同意新版隱私權政策,若您未勾選同意而繼續使用本網站,則視為您已同意新版隱私權政策。
屋主的期望:即使男主人經常在外經商,無法天天回家,但對家的關愛卻一點也沒少,希望居家空間不只是設計,還能融入屬於這個家的溫度與記憶,打造舒適無壓的放鬆空間。

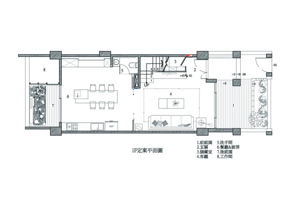
長形空間以樓梯牆面為分界,利用拉門區分客廳及餐廳,穿透式設計使空間保持視覺的無礙延展。圖片提供_明代室內設計

移除一間臥房並簡化衛浴,使整個餐廚房空間更為方整。圖片提供_明代室內設計

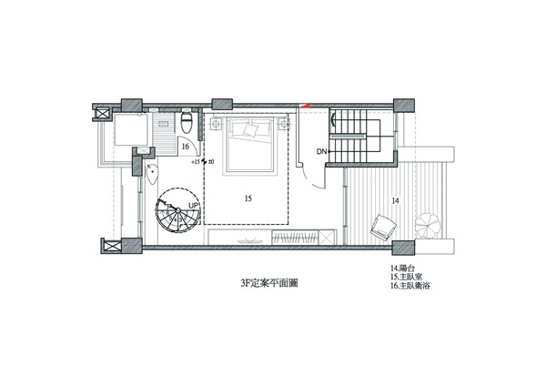
主臥衛浴以玻璃、大理石展現輕盈無瑕,與鐵件打造的螺旋梯構成相互平衡的質感。圖片提供_明代室內設計
Before 屋主改造需求
男主人對家有著深切的投入,設計師讓居家融入了男主人對家的情感,並營造溫暖休閒的居家氛圍,讓男主人每次回家都有放鬆休息的感覺。對於女主人風水上的需求,也不著痕跡的融合於空間中。
After 好住需求清單
即使不開燈空間也能明亮清爽。
空間感覺輕盈,回到家有放鬆感。
有完全的獨立主臥空間。
有完全獨立的主臥空間,並串連閣樓且善加利用。
屋主是一位長年往返於海外與台灣的經商人士,設計師在與屋主初期溝通期間,感受到屋主對家與家人的關愛與投入,於是決定以「攜手」為空間主軸概念,串起整個居家設計。
這是一間位於淡水三層樓的獨棟別墅,一樓部分規劃為公共空間,順著空間輪廓,讓屬於長形的空間基地,以樓梯牆面為分界區分客廳及餐廳,並移除後方的一間臥房,使整個餐廳區域更為方整。設計師在電視主牆以交錯的鐵件表達皮革紋理,同時也代表了屋主夫妻一起「攜手」的掌紋紋路,而分別向天地延伸交錯的線條,也有著樹枝的微妙意象,正與拉門上雷射切割出的熱帶闊葉裝飾圖案相互呼應。
為了使整個電視區與樓梯部分的比例更為完美,特別將電視檯面與第二階樓梯切齊相連,整個視覺感也就更加平衡。
創造空間的明亮輕盈感
二樓則是為兩個小孩打造的空間,分別將男、女孩房規劃於採光較好的前後位置,臥房並未刻意採用床架,而是利用架高地板再鋪設床墊的方式,展現寢居的無壓休閒感,底部挑空的衣櫃設計,更顯臥房輕盈利落。位於兩間小孩房的中間位置,則設計成一處開放式的書房,讓家長和孩子能隨時保持互動;為了讓中間的書房也能透入自然光線,不將男孩房及書房之間的牆面做滿,讓光線得以從前陽台透入,白天即使不開燈,仍感受到自然光線帶來的明亮與溫度。
沿著樓梯而上,來到三樓的主臥空間,設計師將閣樓局部樓板打開,露出原始建築結構的斜屋頂,整個空間尺度因此向上提升。鐵件打造的螺旋梯串連上下空間,並將更衣間規劃在閣樓,使三樓成為單純的休憩場域;特別在閣樓的樓梯旁留下可閱讀的靜思區,讓屋主在柔軟光所線營造的氛圍中,有一隅沉澱心靈的私密角落。
After 風格設計提案
提案1 為空間植入別具義意裝飾圖騰
設計師以皮革紋理為概念,以鐵件打造交錯的線條,作為電視主牆裝飾設計,同時也具有夫妻「攜手」的掌紋義意;而線條也有如林中的樹枝,與拉門上的闊葉圖案相互呼應出一個完整的視覺意象。

提案2 重新構思隔局展開主臥尺度
設計師將原本閣樓部分樓板打開,露出建築原始的斜屋頂,挑高整個主臥空間尺度,更衣間也移至閣樓,整個寢居空間更為單純舒適。

提案3 留出牆面空間從陽台引入自然光線
為了讓位於居中位置,無開窗的書房也能有自然光線,設計師不將界於書房及男孩房的牆面做滿,留出上方與側邊部分,光線因此可以透過陽台穿透入內。

提案4 以螺旋造型梯串連空間
三樓主臥房與閣樓間的螺旋造型樓梯以全鐵件打造,特別採用中間無支架設計,展現螺旋造型的純粹美感,並讓兩樓層間有美好的串連。
.jpg)
提案5 懸空衣櫃設計呈現
輕盈俐落感小孩房衣櫃的懸空設計,加上採用架高地板鋪設床墊的作法,都讓臥房有輕鬆無壓的休閒感受。

圖片提供_明代室內設計




閣樓
資料來源:146期漂亮家居