提醒你
本網站隱私權政策已於2018年7月20日更新,請至閱覽並同意新版隱私權政策,若您未勾選同意而繼續使用本網站,則視為您已同意新版隱私權政策。
小編帶你看小宅
「讓格局做一些趣味性的變化,也可以讓空間變得好用很多!」黃巢設計工務店黃建華設計師說。17 坪的新成屋有著 3 米 6 的挑高條件,屋主原本希望設計師可做夾層規劃,讓空間可充分利用;但黃建華設計師卻提出另一種解套方式:運用聰明的隔間牆,使需求重新安放在合適的空間,不僅為小坪數帶來寬敞舒適感,也讓機能被妥善規劃在各個角落!
案例說明
一對七年級的年輕夫妻共組家庭,當初因為看見一間位在新竹的美式都會風格宅一眼愛上!決定要找黃巢設計完成心目中的完美甜蜜窩!然而,僅有 17 坪的小宅,不做夾層設計,空間會夠用嗎?
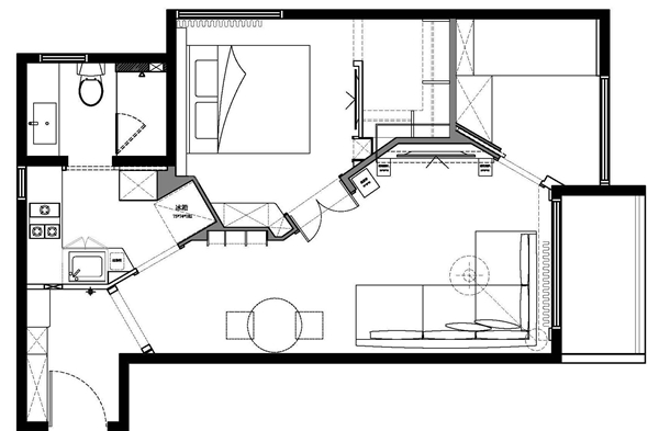
由於天花板需要扣掉板厚 15~20 公分來計算,設計師評估 3 米 3 的高度做夾層規劃也許會略有壓迫感,便重新針對格局思考,透過一面 40 度斜角的主牆,隔出 2 房 2 廳的空間;以灰綠色與白色鋪陳美式鄉村風情,不僅擁有舒適的客、餐廳,主臥也有更衣空間,更有足夠的空間作為未來的小孩房!廚房的隔間具備雙面的收納櫃面設計,收納與美型有了完美的平衡,略帶都會感的美式溫馨小屋就這樣誕生了!
打造小坪數設計關鍵:
1.打破方正的格局設計,不規則隔間牆以適當角度切割出需要的各個區塊與房間,沒有一處空間被浪費!
2.夾層設計不是小坪數的唯一解法,保留天花板挑高的空間,視覺向上延伸,小坪數更寬闊。
3.適當的利用壁面做虛實櫃體設計,收納可以不具壓迫地安放在每個空間,既美觀又實用。

一進門便有盞溫馨的壁燈等候著,文化石牆帶來樸實的鄉村風情,
大小特別規劃的衣鞋收納櫃,連抽屜和掛衣架都貼心設置了!

幾何的空間規劃搭配精密規劃的聰明隔間牆,不但動線靈活,即使身處空間之中,
也不會覺得空間是不方正的!
.jpg)
輕薄簡約的電視牆設計讓客廳更顯輕盈,文化石牆向上延伸,白色天花讓整體空間像被放大!

有別於傳統格局,入門後先是遇到可愛的小餐桌和嵌入式的造型書櫃,
深度達45CM,亦成為屋主收藏品與相片的文藝展覽牆!

廚房雖然不大,卻有著充足的收納空間,電器櫃與冰箱置入後,機能更加完備,
一轉身,什麼家電都能輕鬆運用!

未來的小孩房先以臥榻結合收納櫃體,不僅可以做為平時的練琴室,
也可做為臨時的客房,一房多用途!

平面圖
小編最愛:
在蔚藍海洋裡洗澎澎!
淡淡悠悠的藍色牆面展現一種極度放鬆的姿態,木質鏡框和層板設計讓衛浴的收納也成為一種陳列的藝術,黑色玻璃和灰磚打造的淋浴區像是一個小小的私密地帶!
