提醒你
本網站隱私權政策已於2018年7月20日更新,請至閱覽並同意新版隱私權政策,若您未勾選同意而繼續使用本網站,則視為您已同意新版隱私權政策。

小編帶你看好宅: 建築素養和美學兼備的女建築師的理想居家是甚麼樣子呢?將這棟40年的老房子改建,與周遭的生態環境平衡生存,並因應山區濕冷的氣候,作為舊屋翻新的改造重點。
在青山綠樹圍繞的陽明山山腰的這棟老建築,林明娥建築師用一種”慢建”的方式,讓老屋重生。讓40年老屋與周遭的生態環境平衡生存。放棄整座拆除這樣速成的做法,維持老屋的歷史骨幹,與長居在院子裡的三棵老樹,成為這棟建築物最具有魅力的特色。
舊屋翻新改造綠建築關鍵
1. 綠建築概念的深凹窗設計,可以避免引入大量光線,達到有效節能。
2. 改建樓梯,通透的樓梯,樓梯上方設置天井,讓光線和空氣得以流通。
3. 餐廳保留壁爐,讓濕冷的山區,冬天室內擁有乾燥溫暖的空氣。

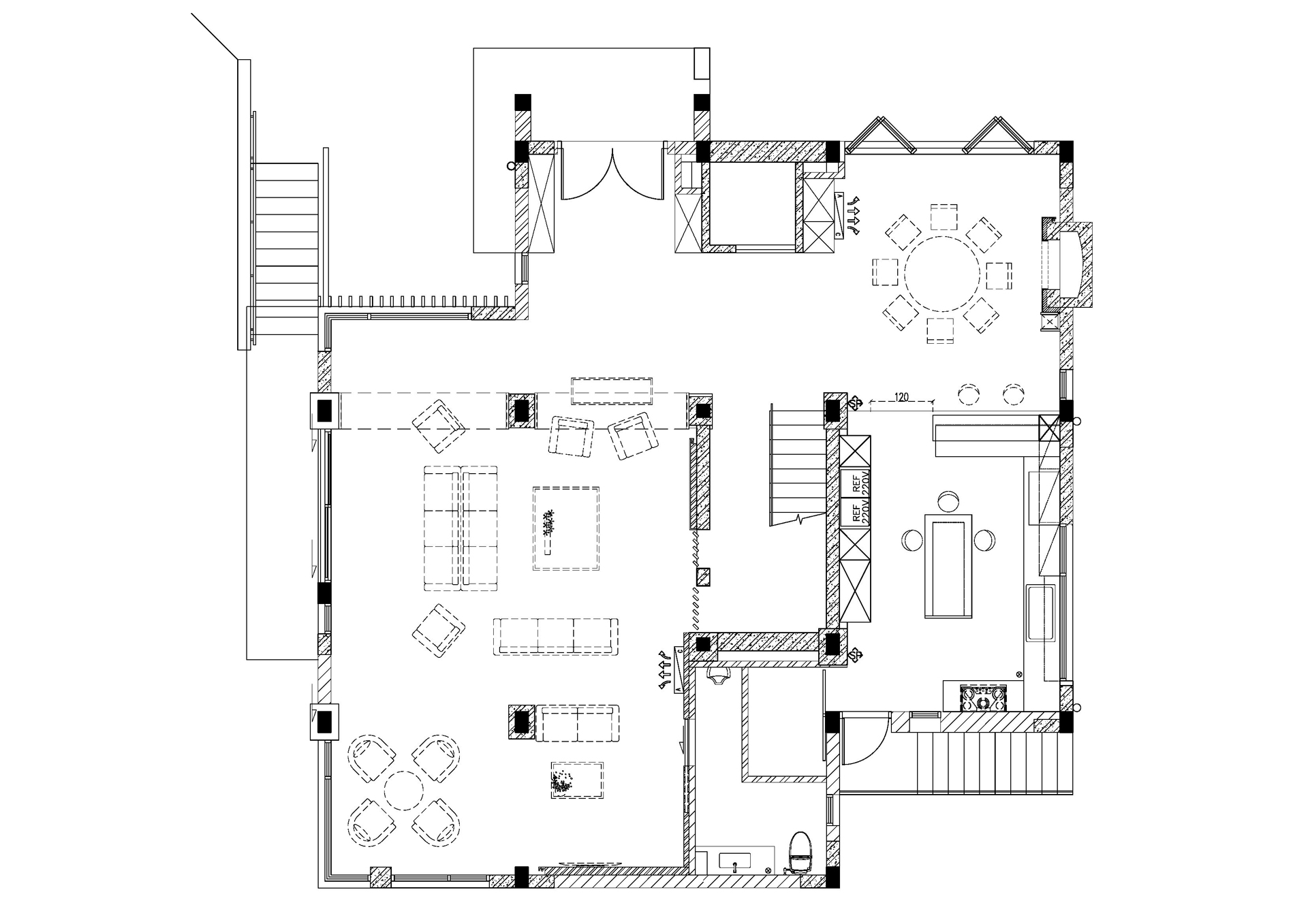
1F

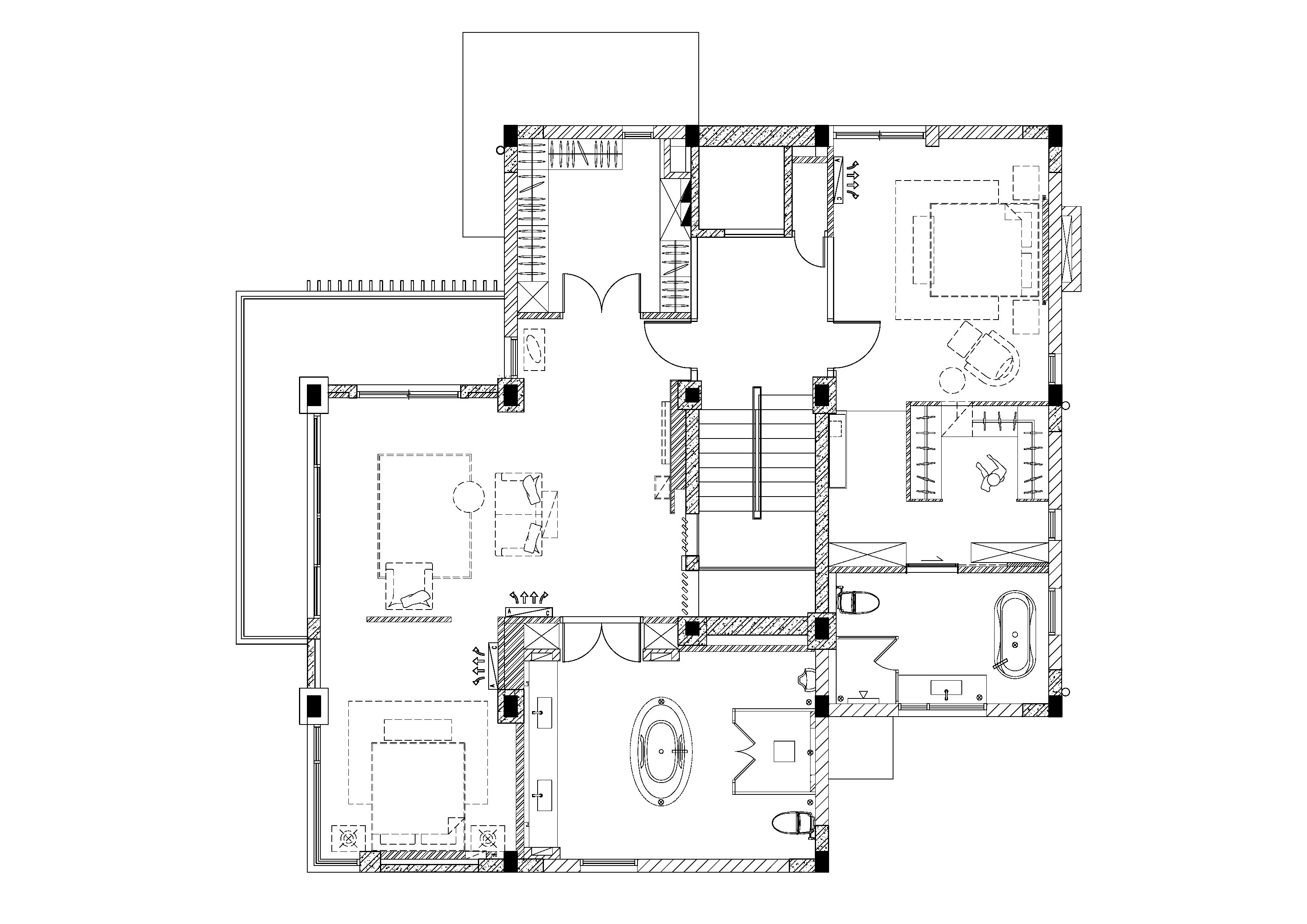
2F

3F

改造後(左) 改造前(右)
原有的牆面外,再加上一層花崗岩,形成厚達40 公分的雙層牆,利用中間空氣夾層,讓夏天的熱空氣不易進入室內,冬天室內溫暖的空氣也得以保留

改建後(左) 改建前(右)
樓梯的改建,以天井的方式引入採光,樓梯木條鎖在牆上,與木格柵串連客廳到二樓、三樓房間,這樣一來,大面積透天厝也有明亮的採光,光線與風就能自然地在室內輕快流動。

樓梯天井

客廳後方的木格柵,讓透天厝的光線和空氣恣意流通。

餐廳保留老屋餐廳原有的傳統壁爐,可以帶給整座屋子乾燥溫暖的空氣流動

2F 主臥外的公共空間,落地窗前綠意圍繞。深凹窗設計,搭配雙層玻璃,也能有效地對抗溫度與紫外線的干擾,達到有效節能的功用。
小編的最愛
這是原本40年老屋的側面,透過建築師對於空間專業,保留建築的骨幹,注入綠建築的概念,更符合山區的氣候,確實的,讓這棟老房子重獲新生。
.jpg)
※本案將於2014年3月1日(六)《設計家》電視節目中播出
《設計家》播出時間:
【非凡新聞台CH58 】
首播 (六) 深夜 24:00
重播 (日) 上午 10:00
【TVBS歡樂台CH42】
首播 隔週六 晚間18:00
林明娥建築師/目前生活於上海與臺北,於執業的25年間以國際高度合作參與眾多跨國設計案,是打造台北華納威秀影城,宜家家居ikea等知名賣場的建築師。