提醒你
本網站隱私權政策已於2018年7月20日更新,請至閱覽並同意新版隱私權政策,若您未勾選同意而繼續使用本網站,則視為您已同意新版隱私權政策。
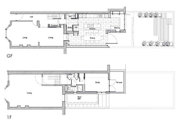
老宅規劃天景及露台。
源自於維多利亞時期的兩層樓透天老宅,原本為擁有 4 間臥房的家庭式住宅,運用鋅包鋼複合結構材,將建築物往側邊延伸出餐廳位置,規劃天景及露台,讓空間更接近完整的家庭式透天住宅。

空間設計暨圖片提供_Platform 5 Architects LLP




.jpg)

Patrick Michell & Peter Allen 成立於2006年的Platform 5,作品包含住宅、商業空間、公共建築及文化設施。在傳統工藝基礎中,結合現代建材及工法技術,以清楚的概念去創造典雅的設計,將所學及養成融合,創造專屬精準的思維及特色。 獲獎無數的Platform 5 由建築師Patr ick Michell成立於二〇〇六年,另一位建築師Peter Allen也於二〇〇九年10月加入,作品包含住宅、商業空間並文化公共建築,以嚴謹的工作及設計,協助客戶並開發具有文化背景的創新和多元效能的空間設計。http://platform5architects.com 
獲獎無數的Platform 5成立於二○○六年,設計的項目包含住宅、商業空間、公共建築及文化設施。Platform 5希望以清楚的概念去創造典雅的設計,設計的方式在傳統工藝基礎中,結合現代建材及工法技術,並提供各種可能性。除了一般的建築專案,Platform 5也執行局部空間及建築改造,或依客戶的要求提供量身訂做服務,並經常為公家機關執行公共建築及藝文空間。將學習過程及方法技能融合Platform 5創始人之ㄧ─建築師Patrick Michell,曾經於Edinburgh愛丁堡大學、東倫敦和倫敦城市Metropolitan大學就讀,早期的養成經驗在Walter Menteth Architects及Nick Evans Architects等建築事務所中工作,主要負責一些建築專案,也學習到許多關於建築教育、社會建築及私人住宅建造計劃,他將過去這些學習過程及方法技能充分融合,延伸出精準的設計思維及個人特色。 另一位合夥人Peter Allen,則是在二○○九年10月成為Platform 5建築事務所的夥伴。Peter早先經驗包括在Nick EvansArchitects建築事務所擔任8年的專案建築師及副主任,成為他設計養成重要的關鍵時期。Peter集合各元素及技巧,將想法實際執行於受委託的每一棟住宅。