提醒你
本網站隱私權政策已於2018年7月20日更新,請至閱覽並同意新版隱私權政策,若您未勾選同意而繼續使用本網站,則視為您已同意新版隱私權政策。
圖片提供_林祺錦建築師事務所
小編帶你看好宅
位於新北市新店的精華地帶,近百坪的樓中樓空間,是屋主、小孩與年邁雙親三代同堂的新居。本身喜愛研究設計家具的屋主,在買下心中夢想已久的Rolf Benz經典款Dono沙發後,希望以此為空間主角,延伸簡單而具高質感的夢想住宅。
由於屋主喜歡石材天然的紋理、以及其不重複的特性,本身即對材質、風格有獨到見解的林祺錦設計師,便從屋主選定的品牌沙發作為設計靈感的源頭,思索如何融入多種材質,並創造和家具搭配得宜的居家設計。另一方面,此一位於頂樓的複層空間,很幸運擁有可看到新店夜景的小陽台,如何將室內外景致串連呼應,更成為此案另一處精彩亮點。
從家具延伸室內設計
1.由經典家具的材質元素,延伸出整體空間的主軸。
2.相異建材交錯串連運用,材質特性各自彰顯卻又彼此融合。
3.發揮小陽台優勢,內外呼應,在都市的現代設計之中,還能享有悠閒自然風情。
.jpg)
客廳在Rolf Benz經典款Dono沙發為主角下,與胡桃木皮和毛絲不鏽鋼交錯製成的鞋櫃相呼應。
圖片提供_林祺錦建築師事務所
.jpg)
電視牆選用銀狐大理石並延伸至天花板,天然美麗的紋理展現時尚大器感。
圖片提供_林祺錦建築師事務所
.jpg)
順著胡桃木製成的門拱漸進式進入餐廳和開放式廚房,讓開放式空間有了精彩層次。
圖片提供_林祺錦建築師事務所
.jpg)
開放式的餐廚區,同樣透過木皮與石材的搭配,與客廳保持一致的調性。
圖片提供_林祺錦建築師事務所
.jpg)
利用米黃洞石作為垂直動線樓梯的串聯,色調柔和,表情豐富。圖片提供_林祺錦建築師事務所
.jpg)
主臥房在夏木漱石大理石的妝點下,展現獨具個人特色的藝術氣息。圖片提供_林祺錦建築師事務所
.jpg)
長親房延伸客廳的胡桃木皮元素,和風化梧桐木及壁紙呈現成熟穩重的臥眠氣氛。
圖片提供_林祺錦建築師事務所
.jpg)
戶外的小花園不僅可一覽新店夜景,同時延伸到二樓起居室,讓上下景致串聯。
圖片提供_林祺錦建築師事務所
.jpg)
下層平面圖
.jpg)
上層平面圖
.jpg)
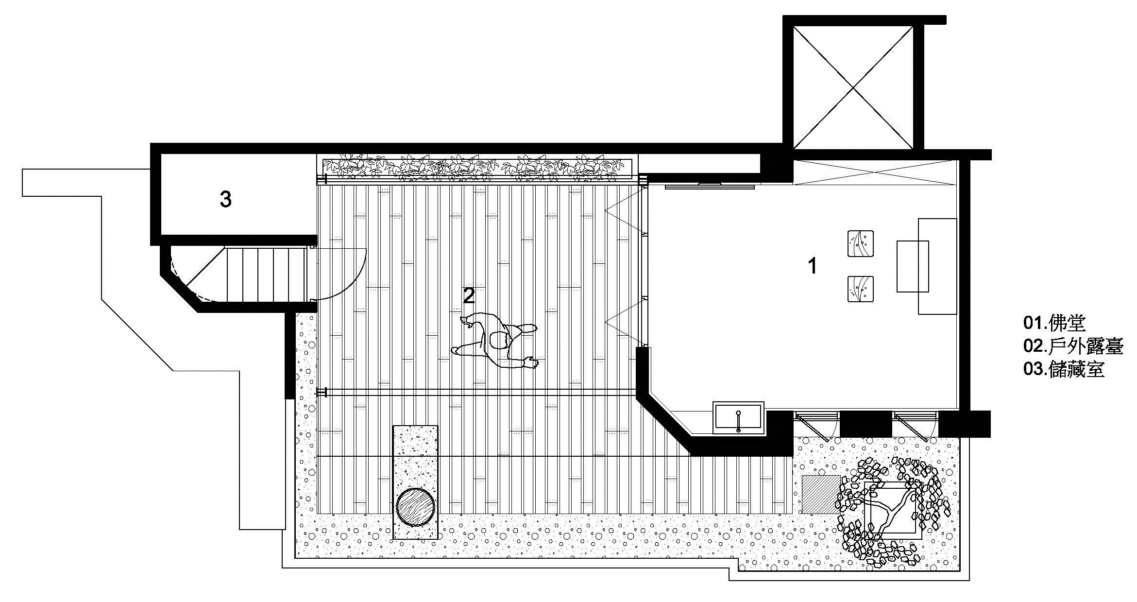
頂樓平面圖
小編的最愛
起居室兩面大落地窗引進充足的自然光源,舒適的沙發與柔軟的地毯,不論是家人間或三五好友小聚、聯繫感情,這樣的空間再適合不過了!
.jpg)
圖片提供_林祺錦建築師事務所
※本案將於2014年5月10日(六)《設計家》電視節目中播出
《設計家》播出時間:
【非凡新聞台CH58 】
首播 (六) 深夜 24:00
重播 (日) 上午 10:00
【TVBS歡樂台CH42】
首播 隔週六 晚間18:00
林祺錦設計師,累積了十年以上的專業經驗,對美學、藝術、建築及精緻工藝均有獨特見解,擅長大坪數、別墅和雙拼格局的大尺度設計,並在大器風韻裡,以細膩的工法為每個角落注入不同生命。曾獲多項獎項肯定,致力於既有環境美學與建築空間的規劃整合,藉由設計圖面的構成,配合實體模型的操作,協助屋主體驗空間的任何可能性。