提醒你
本網站隱私權政策已於2018年7月20日更新,請至閱覽並同意新版隱私權政策,若您未勾選同意而繼續使用本網站,則視為您已同意新版隱私權政策。


小編帶你看好宅
旅行時,最愛的是可以忘記自己是過客,彷彿,生活在他鄉。如果能把在異鄉的回憶帶回家鄉不知道該有多好,讓人想生活在其中。
這棟是位於新北市的案例,屋主時常旅遊世界各地,這些經歷讓他十分嚮往旅程中所見到的歐式別墅,也是他多年來的夢想,因此屋主希望設計師可以設計這麼一棟讓一家三代在週末聚在一起的渡假別墅。
此案從建築外觀到內部的設計,皆由設計師一手打造!本來的外觀是日式風格,設計師依據屋主想要的美式古典風格而重新設計。在室內的裝修方式,設計師採用的是簡單的天、地、壁基本設計手法,其中運用了大量的線板,平面配置也以正式對稱空間為主,如此也能精簡預算。
從一樓到四樓,設計師將每個空間的調性相應,加上各空間的顏色變化,與家具、燈飾、窗簾等擺設搭配,讓這棟Dream House呈現美式古典的優雅大方。
打造美式古典風格居家關鍵:
1.以實木廚具搭配人造石廚具檯面,將幾個漂亮餐盤作為桌面裝飾。
2.裝飾品以古董、水晶燈或油畫等為重點。
3.室內裝飾以線板搭配,平面配置均以正式對稱空間為主。

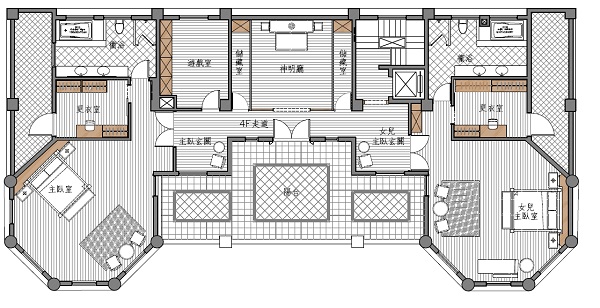
獨特的八角形格局設計


此案例的平面格局採左右對稱,兩側各有一個八角形的格局設計,設計師更將這個特色與臥房的天花板設計做結合。

樓梯是透天別墅用以串連垂直空間的方式,此案例運用鐵件的俐落感,讓其蜿蜒而上的意象得到發揮,而有垂直的張力。上方採用垂吊式燈具由挑高空間而下,達成線條勾勒的和諧。


依據家庭成員設計不同主題的臥房,如小孩房的設計:從色彩規劃到家具佈置皆以花朵元素做串聯。
小編的最愛
主臥室內的更衣室中間的隔牆設計與梳妝台做結合,形成一個獨特的開放式小隔間。

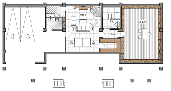
平面設計圖

1F平面計畫圖

2F平面計畫圖

3F平面計畫圖

4F平面計畫圖