

小編帶你看好宅
除了喜好的風格,若空間能展現屋主嗜好或興趣,更能使家成為個人特質延伸的一部分,這間位於新北市的空間,就是以「畫」為核心出發,為畫作及創作者量身訂作的專屬空間。
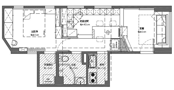
空間以畫作為出發構思發展,塑造成宛如小型的城市藝廊。由於屬於狹長形的空間,為了讓採光更加充足飽滿,設計師將原本矗立在2個窗戶間的牆面,修成只有60公分,適當的為空間區隔。而原本2房1廳1衛的格局,設計師展開空間調整成1大房、1個複合式空間以及客廳,並讓空間此彼串連,複合式空間滿足了屋主繪畫創作及陳列繪畫的需求。從一進門就能感受到設計師藉由空間的配置,自然的導引動線並規劃收納機能,內及外部空間的隱藏式隔間,讓人無論身在此屋何處,都能感受到濃濃的人文氣息。
打造休閒簡約風的關鍵
1. 根據屋主的喜好規劃出重點活動區域。
2. 簡化空間格局讓動線流暢,穿梭空間自在無拘。

設計師展開空間讓客廳與複合式空間串連,構成一個舒服寬敞的公共區域。
.jpg)
為了展示及收納眾多畫作,以活動畫架的方式來構思。


將原本在2個窗戶間的牆面修窄成只有60公分,適度的區隔空間。

臥房位於底端以休憩為主,照顧到基本臥房需求。

架高的複合式空間地板隱藏收納空間。
小編的最愛
小編實在佩服設計師的層次處理,這間只有15坪的窄長空間,在找出空間核心後,成功整合整個空間區域,並以架調地坪、局部牆面等手法,讓每個區域流暢串連,層次豐富。


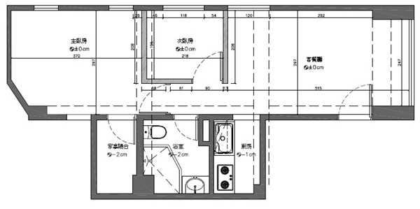
BEFORE_平面圖提供_只設計‧部

AFTER_平面圖提供_只設計‧部