提醒你
本網站隱私權政策已於2018年7月20日更新,請至閱覽並同意新版隱私權政策,若您未勾選同意而繼續使用本網站,則視為您已同意新版隱私權政策。
人生,有捨才有得;空間,亦如是。拿掉了多餘的一間衛浴,變出業主夢想的更衣室空間;敲掉了一片水泥牆,換來的是令人讚嘆的開闊視覺與自然光線,空間感瞬間放大1.5倍!
有旅居國外背景的業主相當好客,喜歡簡單、摩登、飯店風,對於「設計」這回事接受度很大,但對於15坪的小空間能有多少發揮,實在沒什麼信心。白金里居空間設計的設計團隊「使命必達」,在給客戶看過小宅放大的案例與評估過客戶的需求,拿掉一間衛浴、一片牆之後,更大膽地敲掉原有的拋光石英磚地板,在公共區域全部使用水泥粉光地板,充分展現出業主既現代又獨特的個性。
從客廳、餐廳一路延伸到廚房,化繁為簡的設計概念,消除視覺障礙,放大空間感;另一方面,靈活運用各種鮮豔色彩搭配設計款家具,豐富視覺享受,讓這15坪小豪宅洋溢摩登飯店風。
.jpg)
平面圖(Before) 圖片提供_白金里居設計
.jpg)
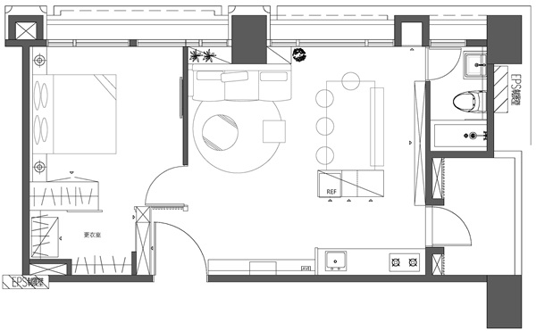
平面圖(After) 圖片提供_白金里居設計
只挪了兩面牆,房子感覺就大不同。
重點 1 拆實牆廚房見光明
格局動現不佳是原屋況最大的問題,一堵實牆不僅擋住光線,也讓廚房的走道狹窄到僅能一人通過!取而代之的是結晶鋼琴烤漆面板的半高電器櫃兼備餐台,讓窗外陽光透窗長驅直入,廚房重見光明。

拆除擋住視野及光線的牆面,將半高櫃稍微外推,廚房空間順利擴大。
重點 2 特殊材質用色大膽
將原有的石英磚地板敲掉後改採水泥粉光,而天花板則用栓木貼皮繞了一個L型,連主臥室的門也是貼木皮,區隔出客廳的使用空間(上圖)。木作電視櫃上方簡單地懸掛了鹿頭裝飾,而背牆粉刷帶點綠的金,呼應廚房的半高櫃;沙發選用飽和的紫,再搭配設計款的Y字茶几,突顯主人的獨特品味(下圖)。

重點 3 不規則搭配更靈活
小小15坪大的空間,變出了更衣室不說,還塞得下6~8人餐桌,這都要歸功於設計師的靈活搭配手法。在餐廳連結客廳的一邊放置餐椅,而靠近收納櫃牆的一邊則擺放長板凳,客人多時,連客廳都可以坐人,開轟趴沒問題(上圖)!至於餐廳整面牆的收納櫃,則採用木皮與白色櫃門交錯的搭配手法(下圖),一方面化解單調與沉重感,另一方面也予人可以將格子互換的錯覺,別有一番趣味。


重點 4 多餘衛浴變更衣室
15坪房只有2夫妻,實在用不到2套衛浴,於是將多餘的衛浴拿掉,結合原有的小房間擴大成主臥室+更衣室,更衣室還利用玻璃拉門製造穿透感,視覺變得明亮寬敞。

敲掉衛浴的實牆 ,創造出較舒適的空間,主臥室顯得簡單大方。
小編看設計
這間小坪數豪宅擁有很好的視野,若是捨不得原本2房1廳的設計,就擁抱不了迷人的陽光與夜景。將空間用途多元化是放大空間的不二法門,客廳、餐廳結合,就是一個可以開Party的大空間;而餐廳那面收納櫃又可以當作書櫃運用,餐廳也輕易變身閱讀空間,要來杯下午茶嗎?黃昏的景致一點兒也不輸給飯店喔!