提醒你
本網站隱私權政策已於2018年7月20日更新,請至閱覽並同意新版隱私權政策,若您未勾選同意而繼續使用本網站,則視為您已同意新版隱私權政策。
不是房子太小,而是格局太差!
賺錢!賺錢!賺錢!薪水追不上房價,工作時數越來越長、房子卻越住越小,現代人生活在極大壓力下,極度渴望擁有接近大自然的生活環境:一個可以療癒身心靈的空間,誰可以來救救渴望呼吸空間的都會人?
白金里居空間設計主持設計師林宇崴說,無論15坪、20幾坪抑或40幾坪,客戶永遠會覺得自己家不大,因此,建議大家從破解房屋格局著手,即使是面積不到20坪的房子,也能享受可以大口呼吸的自由空間,再適時加入木素材元素,導入自然的陽光與空氣,掌握5大重點,水泥叢林裡的「鴿子籠」馬上變身令人愉悅的私屬桃花源!
重點1:調整格局 掌握空間優勢
著名書畫家鄭板橋的一副對聯說得好:「室雅何須大,花香不在多。」只要格局對了,也許只是拿掉一面牆、換個入口,無論是10坪、20坪或30坪的房子,整個空間感瞬間放大至少1.5倍,居住者的心情當然也會跟著豁然開朗。

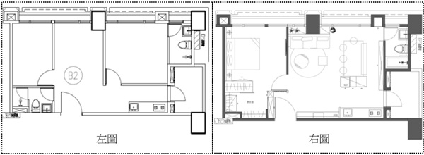
15坪房子能擁有大餐桌,大片窗戶可盡情欣賞室外美景。
【例子A】 15坪小宅敲掉一片牆 換來滿室自然光
格局不佳,會讓人居住不便利,而且每個空間都狹窄到不行(左圖)。將橫亙在屋子中間的那面實牆打掉後,再將左側小房間的牆外移,擴大房間,就變成擁有2個大空間的格局(右圖),更棒的是引進了室外的陽光與美景,還塞得下6~8人餐桌,這都要歸功於設計師的靈活搭配手法。
.jpg)
開放式廚房擁有自然光線,成為全家人互動頻繁的溫馨空間。
【例子B】 29坪屋更改格局 2房變3房綽綽有餘
格局設計不當容易形成畸零地,徒然浪費空間,這間29坪的老房子格局方正,採光良好,也有不錯的view,卻只隔了2間房,空間幾乎都浪費在走道上,實在可惜(左圖)。設計師妥善重新分配了格局後,將原本的兩房一廳改成三房、兩廳、兩衛浴,也加入收納空間,並將動線合理化,不僅沒有造成空間狹小,反而善用之前浪費的畸零地,打造出女主人夢寐以求的大廚房。

重點2:木材元素 貼近自然感覺
木建材因為擁有溫潤質感,可以營造接近大自然的氛圍,相當受歡迎。但林宇崴設計師對於木建材的運用不止是做成木地板、蓋和室,而是將它變化成室內裝潢的主角,呈現木材原有的多變化風貌,既帶給室內空間溫馨又自然的感覺,又別具現代風格,令人耳目一新。

客廳主牆是像小木屋般的外牆裝飾,連屏風都是可旋轉的木製格柵。
【例子A】小木屋外牆當客廳主牆 濃濃森林fu
屋主希望客廳主牆不要太過單調,也希望能有接近大自然的感覺,於是把美國小木屋外牆的概念「搬」進室內,以檀木實木貼皮層層鋪疊,木建材自然紋路之美不輸名畫,而質樸的感覺又能讓人徹底放鬆。

木皮爬上了天花板,再掛上鹿頭裝飾,配合水泥粉光地板,有種粗獷自然風情。
【例子B】栓木皮結合水泥粉光 展現粗獷風情
多數房屋採用冰冷的石英磚地板,其實換成質樸的水泥粉光,感覺大不同喔!本案的天花板則栓木貼皮繞了一個L型裝飾,連主臥室的門也是以木皮相呼應,木作電視櫃上方簡單地懸掛了鹿頭裝飾,再隨意鋪上厚實的毛地毯,小客廳也能展現粗獷的自然風。
重點3:透光設計 引進自然元素

挖開天井換裝採光罩,餐廚空間明亮又感覺遼闊。
原本這個地下室的廚房與主臥室相鄰,又小又暗,沒想到拆除了餐廚空間的天花板後,露出迷人的天井,設計師二話不說以透光的採光罩當屋頂,吸納室外又多又溫暖的自然光後,感覺超棒!L 型的流理台小而美,餐桌與流理台相連,形成另類中島吧台;特殊造型的透明餐椅,呼應這個空間的通透感,垂吊而下的造型燈飾讓夜間用餐別有氣氛。
重點4:串聯戶外 室內坐享綠意

窗外看出去是滿滿的綠意,讓人心曠神怡。
能夠在屋外擁有一小片綠意,實在是都會人最大的奢侈,這間特殊格局的房子一樓擁有自然採光,屋外還有10坪的庭院,於是設計師連帶考量屋外的景觀設計,將滿牆的書櫃部分塗刷成鮮黃色,呼應戶外的綠意,更為這個空間帶來活潑的青春氣息,整個房間的明亮感向上提升200%!
重點5:善用材質 小角落好放鬆

少見的灰色文化石牆面,帶來沉靜又自然的感覺。
林宇崴設計師採用接近自然、帶點粗獷的灰色文化石做為牆面,下方的地板部分鋪以水泥粉光,隨意擺上綠盆栽或畫作,讓這個閱讀角落別有一番恬靜。搭配客廳芥末綠的沙發,充滿流線型的時尚感,流露出輕鬆的美式自然休閒風。
小編良心話
在寸土寸金的都市裡,要體會有捨才有得,別嫌棄自己家裡的房子太小,只要經過妥善規劃,小宅也能變成舒適自然好宅,蛻變都市中的小小桃花源。