提醒你
本網站隱私權政策已於2018年7月20日更新,請至閱覽並同意新版隱私權政策,若您未勾選同意而繼續使用本網站,則視為您已同意新版隱私權政策。
以下是不同坪數的屋主心中的OS〜
10坪左右的屋主:我家真的很小,我不知道該怎麼辦!
15坪〜20坪左右的屋主:我家很小,可以讓它看起來大一點嗎?
20坪〜30坪的屋主:我家不大,但我要更衣間或大衣櫃、我要很多收納,而且如果有浴缸更好。
40坪〜50坪的屋主:我家空間還可以,但房間不夠,而且都好小,還有,我要很多收納空間。
設計師:…This is “Mission Impossible”. (這是不可能的任務!)
設計家講堂:打破幾房幾廳的迷思,格局困擾大破解!(下)
11月29日設計家與太平洋房屋合辦室內設計講座:居家格局,怎麼隔最好,邀請白金里居空間設計的林宇崴設計師與大雄設計的林政緯設計師,和現場的近50位民眾們一同分享。

攝影_設計家

攝影_設計家

大雄設計的林政緯(左)與白金里居設計的林宇崴(右)。攝影_設計家
→破除格局 案例欣賞
.jpg)
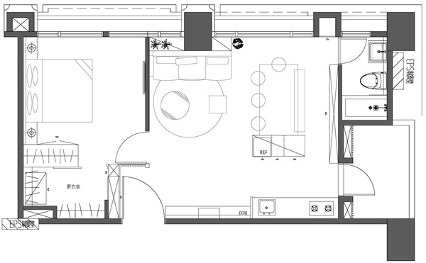
只挪動兩面牆,空間感立刻大不同〜
Before

After
.jpg)
圖片提供_白金里居設計
Point 1拆實牆,讓廚房重見光明
原先的牆讓廚房的走道狹窄到僅能一人通過!設計師規劃後,將半高櫃稍微外推,結晶鋼琴烤漆面板的半高電器櫃兼備餐台,讓窗外陽光能進入屋內。
.jpg)
Point 2拿掉多餘的衛浴,規劃成更衣室
15坪房只有住夫妻兩人,實在用不到2套衛浴,於是將多餘的衛浴拿掉,結合原有的小房間擴大成主臥室+更衣室,結合玻璃拉門設計,製造穿透感,變得更寬敞、明亮。
.jpg)
Point 3鏡面搭配深色馬賽克磚,擴大空間感
使用馬賽克磚也讓接縫藏於無形之間。

圖片提供_白金里居設計
Point 4餐廳立面使用鏡面反射,讓空間感更加深邃

設計師格局規劃的Tip:
Q:居家格局,怎麼隔對我最好
A:以下是格局變化上的三大要點
1、空間必須做取捨,例如原來用不到兩套衛浴設備可以捨去。
→與屋主溝通了解家中成員以及生活習慣,同時先過濾掉非必要留下的設計與空間。
2、增加公共空間的坪數,客廳是進來家裡的第一印象,對於這個家空間感大小也常常是憑著對於客廳的第一眼感覺,因此建議可以增加客廳的規劃空間。
→而在公共空間的規劃上,也可以適度的留白,不一定要將空間做滿。

3、天花板的設計可以用不同層次的線板做變化,一來有美觀的效果,二來也可以避開消防灑水頭等障礙物。
在寸土寸金的都市要找到大坪數的房子實屬不易,而小坪數的房子有完整的機能,又是另一項艱難的任務。不同坪數的屋主更有不同的需求,這時,設計師們只能想辦法化不可能為可能。
這次的講座中設計師不斷強調「在空間規畫上必須要有取捨,有捨才有得。」這在利用小坪數的空間極為重要。像是你的客房僅為了客人的來訪,一年僅有一兩次,那也許就可以考慮改在書房增加臥榻的設計,或是讓客人住在附近的飯店,不失為是一個折衷的好方法!
只要在此篇文章下方留下你的裝潢問題,就有機會參加抽獎! 有機會獲得伊聖詩保養組(價值$800,共12名),每次講座抽出2名 (活動日期2013/8/15~2013/12/31)