提醒你
本網站隱私權政策已於2018年7月20日更新,請至閱覽並同意新版隱私權政策,若您未勾選同意而繼續使用本網站,則視為您已同意新版隱私權政策。
藉由不同材質以及具有巧思的獨門設計,設計師以開放式的空間規劃,在本案中滿足屋主對於時尚住宅的想像。
年輕的屋主夫妻買下這間位於台中西屯區的房子,雖然有個剛出生的孩子,但仍期望居家空間能夠擁有時尚而摩登的個性。為了一圓對於新居的想像,屋主決定請擅長營造飯店與高質感的欣磐石設計負責新居規畫。在經過討論之後,設計師以開放式的空間概念,結合具有時尚質感與設計感的手法,完成屋主對於家的夢想及期待。
廚房的牆面以 L形的概念將空間打開,設計師結合玻璃與鐵件設計拉門,不僅滿足機能性需求,同時也讓空間能夠更加地開放與靈活。
設計師解讀屋主需求
1. 希望居家空間有時尚感,展現出年輕而摩登的氛圍。
2. 廚房不要封閉,能夠因應多人聚會時的使用需求。
3. 空間能夠寬敞明亮,並具有足夠的穿透性。

客廳電視主牆使用銀狐大理石,並且作 90度的轉折延伸,不僅讓空間看來質感倍增,同時也以特殊的設計展現出不凡的個性。
打開空間,彈性與個性兼具
為了讓空間格局能更符合屋主的期待,設計師將原本封閉的廚房空間改為半開放式的設計。在玄關入口以及面向客廳、書房處,以L形的概念讓兩端的牆面都能開放,此處使用了玻璃搭配鐵件的拉門設計,讓空間在維持視覺穿透的同時,亦保有空間的獨立,而機能上同時兼顧了屋主回家時可直接將重物放置於廚房的需求。書房空間也藉由訂製沙發的機能區隔,讓空間的寬敞與縱深能夠達到最高。
在空間質感的營造上,設計師使用了不同種類的大理石,在重點處如電視主牆以襯托出空間的氣勢,而屋主所喜愛的時尚感,也透過簡單而分明的深淺對比色系,搭配上玻璃與鐵件等材質的運用,創造出互相對話的可能。
誰說一定要極盡華麗之能事,才能展現出屋主的品味?在本案裡,設計師示範了融合時尚感與設計感的技巧,重新定義居家時尚的內涵。
Solution×6
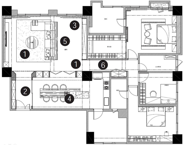
01 機能 拆掉隔牆讓空間放大更多
書房與客廳之間的隔牆拆除後,設計師利用了訂製沙發的設計,結合具有收納機能的椅背讓空間可以自然區隔。這樣一來,整個客廳與書房的視野得以打開,也讓空間在無形中更加放大。

02 機能 靈活的動線設計
玄關入口的右手邊即可以進入廚房,這樣的設計解決走道狹窄的視覺壓迫,另方面也更體貼屋主在日常提重物時,可直接將手上的東西擺放到對的空間的需求。

03 材質 透空而輕盈的書櫃設計
為了讓書櫃的視覺重量消失,設計師在此處使用茶玻為主要的間隔材質,而帶有懸吊感的設計更消解了櫃體的重量感,創造出輕盈而懸浮的感受。

04 風格 一體成形的餐桌與中島概念
設計師將餐桌與中島以一體成形的概念規劃。為了讓餐桌在視覺效果上更加特別,設計師使用H形鋼讓餐桌懸空,創造出懸浮的效果,而無桌腳的設計,在機能上也可避免踢到的尷尬,創造更舒適的用餐環境。

05 機能 黑白跳色消解大樑的壓迫感
由於房子本身的建築有著大樑壓迫的問題,設計師在電視牆、客廳與書房的天花板部分,刻意使用黑色與白色跳色處理的方式解決。這樣的方法一方面消解樑柱的視覺壓迫,另一方面也凸顯出不同空間的層次,並增添俐落簡單的個性。

06 材質 異材質搭襯讓空間機能與個性兼具
在通往私人空間的走道,設計師利用了壁布以及茶鏡做為不同牆面的材質。由於此處的走道空間壓迫感較強,設計師利用鏡面的反射效果,適時地解決走道的壓迫感,讓空間感更為放大。
.jpg)
設計理念
欣磐石設計團隊累積了十年以上美學、藝術、建築及精緻工藝獨特的見解, 結合工程團隊專業工法和嚴苛監工,針對業主不同需求及多元風格,量身打造專屬空間,營造泱泱大器,淬煉華麗風格,獨創個人品味。

平面圖提供_欣磐石設計
資料來源:157期漂亮家居