提醒你
本網站隱私權政策已於2018年7月20日更新,請至閱覽並同意新版隱私權政策,若您未勾選同意而繼續使用本網站,則視為您已同意新版隱私權政策。
.jpg)
大刀闊斧拆除廚房隔間牆,讓廚房與餐廳動線合而為一,整體變得通透又明亮。
圖片提供_六相設計
POINT
1. 改變隔間形式使用不打折扣。
2. 機能互不相干但又相互連結。
3. 捨棄過多裝飾有效釋放空間。
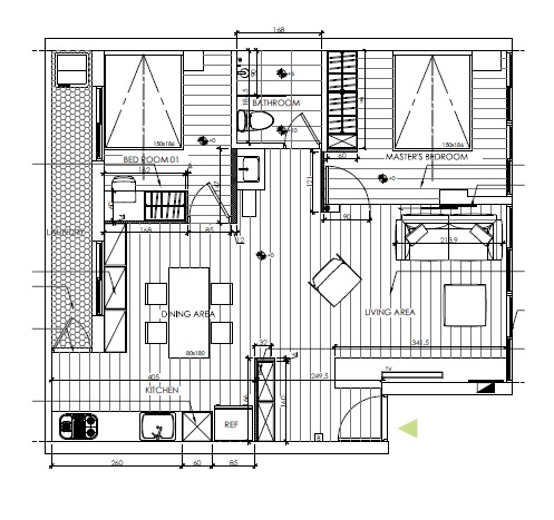
台北市土地整合困難,加上土地價格高漲,不少建商直接興建推出小坪數住宅,但,新成屋價格甚高,對年輕人來說負擔較重,因此不少人將重心轉往中古市場,不管是續住家人留下來的老房子,還是尋找 20坪左右的中古公寓小宅,整體費用相對負擔的起,只須重新翻修把機能切割、均勻分配到適當的位置,同時還能重啟舊屋新生命。
本案位於台北市內湖區,是間30年、20坪的公寓住宅。這空間就像所有老公寓最常遇到的隔間過多的問題,空間並非隔愈多愈好,必須賦予意義才能發揮隔間功能,原為 3房的空間,目前只有屋主一人使用,設計師劉建翎便從原本的 3房改為 2房,並捨棄不必要隔牆,直接開放式呈現,或是以拉門輔助,身處其中而能暢行無阻。
把「大套房」概念融入設計裡
抓緊使用核心,扣除次臥後,其餘空間劉建翎以「大套房」概念來破解格局,客廳、臥房之間僅用拉門區隔,拉上能清楚定義公私領域,打開後因為沒有了隔間,屋主可以在同一空間內各行其事,乍看之下每一個機能互不相干,實際上卻又彼此關聯。就好比毫無關係的臥房與客廳,在拉開拉門後尺度瞬間放大,甚至屋主還能躺在床上看電視,空間、機能不因隔間形式的改變而有所影響,反而還換來了無比舒適感。
要有效釋放小空間,除了減少隔牆、結合開放式設計之外,劉建翎還主張可以減少過多裝飾,像是天花板就盡量不再多做處理,用純淨高度展現不一樣的視野;此外也建議,可以用原生素材來修飾空間,像是夾板或OSB板等,帶出不造作味道,也藉由原汁原味的木素材,讓心境獲得解放。
.jpg)
在拉開拉門後,無論是臥房還是客廳,尺度瞬間放大,想躺在床上看電視更不是夢想。圖片提供_六相設計
.jpg)
空間、機能不因隔間形式的改變而有所影響,反而還換來無比舒適的使用感受。
圖片提供_六相設計
.jpg)
運用原生素材來修飾空間,藉由原汁原味的木素材讓心境獲得解放。圖片提供_六相設計
.jpg)
雖然說各個空間坪數有相互重疊,但單獨看每個小環境時又能兼具獨立與完整。
圖片提供_六相設計
.jpg)
為了讓衛浴空間更完整,特別將洗手檯移出至外部,使用不干擾還多了點彈性。
圖片提供_六相設計
.jpg)
「大套房」概念注入後,生活機能均相當完整,因此可以看到臥房內不再多做其他配置,也還給小空間應有的使用尺度。圖片提供_六相設計
.jpg)
衛浴內仍加入玻璃隔間,彼此區分但又不影響使用尺度。圖片提供_六相設計

圖片提供_六相設計
資料來源:157期漂亮家居