提醒你
本網站隱私權政策已於2018年7月20日更新,請至閱覽並同意新版隱私權政策,若您未勾選同意而繼續使用本網站,則視為您已同意新版隱私權政策。

機能線條均收於無形,為了讓空間看起更活潑,設計師適度注入亮綠色,突出的色調融入於清簡的白色背景,以加強整體空間的視覺感。圖片提供_KON design
POINT
1. 機能重疊破解不規則的格局。
2. 線條收於無形創造開闊區域。
3. 善用建材創造無顧忌舒適感。
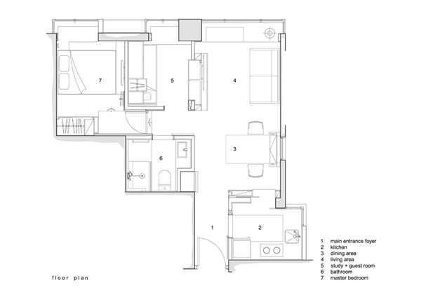
擁有「人口密度高、佔地面積小、生活節奏快」等特點的香港,在無法創造大坪數住宅下,只好轉而尋求小空間的生存環境,形成在大城市建造舒適極小住宅的現象。由於香港面積不大,住宅可用土地更是少,相形之下居住空間也很難擁有方正格局。面對不夠方正的格局,設計師 Konie選擇,以空間機能重疊為條件,切割的同時也區分出各個不同且完整的小環境。本案就以客廳電視牆作為主軸,清楚區分公共與私密空間,並善加運用拉門做空間界定,多出來的開放感則能消弭不規則空間的侷限,因而展現出明朗、開闊氣度。
機能收於無形加大空間尺度
為了不讓小空間使用機能打折,設計師特別將一些機能收於無形,像是結合機關設計將餐桌嵌入牆壁裡,下拉餐桌便能輕鬆定義餐廳區,餐桌收起則形成一個藝術掛畫,餐椅靠牆擺放,瞬間又能變成端景,整合既不破壞機能還加大了空間尺度。另外,屋主重視的收納空間,也沿牆而存在,再運用純白色系無形地收於牆面,在在也達到大作用。
空間小置身其中便容易有束縛感,為此設計師在部分空間加入透明玻璃作為隔間,像是廚房與衛浴間,增加開放感,同時也讓不同小環境擁有足夠的活動區域,而不會感覺到擁擠。

善用拉門做隔間,開闔之間創造自在的位移動線,減少彼此之間的侷促感。圖片提供_KON design

桌子嵌入牆壁裡,下拉後即為餐廳區,上掀收起則變成環境中的藝術端景。圖片提供_KON design
浴室裡加入玻璃隔間,全然自我的使用,給予主人無顧忌的舒適感。圖片提供_KON design

圖片提供_KON design
資料來源:157期漂亮家居