提醒你
本網站隱私權政策已於2018年7月20日更新,請至閱覽並同意新版隱私權政策,若您未勾選同意而繼續使用本網站,則視為您已同意新版隱私權政策。

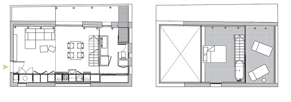
用玻璃和白色壁面打造無私空間,樓梯特意選用相同的保護色讓空間更為純淨、明亮。
圖片提供_OHLAB
POINT
1. 向外延伸創造露天空間。
2. 白色背景營造明亮空間。
3. 不做多餘無用途的設計。
當西班牙的房市隨著歐債危機面臨泡沫化後,房價跌幅一落千丈,然而西班牙本國經濟不見起色之下,多數民眾負擔得起的價格,也只是約 10萬歐元(約台幣NT. 418萬元)的平價小住宅而已,但空間小歸小,過去經濟力強大的西班牙民眾胃口可不小,仍奢侈期待麻雀雖小的空間中,擁有皇室貴族般的慾望,如此產生了許多不思議的空間設計,如一個小公寓中裝進了 15個夢想,也道盡了小市民們的心聲。
小公寓大奢求,一次滿足 15種慾望
這間馬德里十分有看頭的頂樓公寓,儘管只有約 20 坪大,但豪宅有的享受,它一樣也不少,到底是怎麼辦到的呢?上下兩層的設計,看似每個空間都有其獨立性,但其實整體空間一目了然,透過穿透式手法、移動自由帷幕和機能移轉的邊界外推設計,在一樓即可望穿上層的玻璃臥房,並在純淨空間中用顏色打造三大主題,白色帷幕身後的隱藏廚房、金色貴氣的露天淋浴間和綠色草皮的娛樂臥房,可以在小公寓中擁有星空澡堂、打高爾夫球、露天晚餐、享受豪華劇院等,創造出一連串不可預期的空間驚喜,此案子被提名於歐洲建築界最具特色和聲望的獎項—密斯凡德羅獎,處處充滿驚喜。

在建築高處位置製造出開放式的露天淋浴間,縱情悠閒的淋浴時光,無私的十分徹底。
圖片提供_OHLAB

因為空間的不可浪費性,每樣設計,都有一定的意義,上層地面鋪設草皮,白天時可滿足打高爾夫球的幻想,晚上時能於草地上野餐,眺望公園。圖片提供_OHLAB

沒有多餘複雜的設計,利用一塊懸掛石頭,就能控制上層的出入口。圖片提供_OHLAB


透過一只白色皮革帷幕,將容易凌亂的廚房、工作桌和衣櫥隱藏起來,讓空間更顯清爽。
圖片提供_OHLAB

誰說只有豪宅能使用獨立式浴缸,緊鄰臥床的浴缸空間,剛好位於屋頂和星空交界下,讓泡澡倍加享受。圖片提供_OHLAB

空間白的有理,利用白色背景,能滿足使用者劇院享受的慾望,不造成任何一點的空間浪費。圖片提供_OHLAB

無私小住宅好玩的地方,就是可以盡情玩味空間的可塑性,任意選擇空間機能,在戶外享受浪漫晚餐。圖片提供_OHLAB

圖片提供_OHLAB
資料來源:157期漂亮家居