提醒你
本網站隱私權政策已於2018年7月20日更新,請至閱覽並同意新版隱私權政策,若您未勾選同意而繼續使用本網站,則視為您已同意新版隱私權政策。

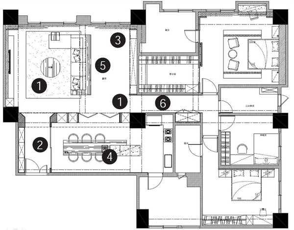
本案例位於台中市西屯區,60坪三房兩廳的現代風設計。客廳與書房空間皆作開放式設計,搭配明亮的採光提升了空間的光感,一個遼闊的空間感。雪白銀狐大理石製作而成的電視牆面,對稱的花紋呈現空間流動的韻律感,並與黑框搭配,頗具都會的時尚質感,利用材質作層次上的變化。
原先屋子有隔牆過多、樑柱低矮的困擾,設計師拿掉入門右方L形實牆,並在餐廚空間設計師以活動式的門面(一面折門、一面拉門)作為玄關、客廳與餐廚空間的交界,讓動線更為順暢,且一進家門便能走入廚房!利用透明黑框的素材則讓空間更具穿透感,也能阻隔油煙四溢家中,美觀兼實用!從中島吧檯延伸出的木製長型餐桌更是家人、親朋好友一同吃飯聊天的好聚所。
透過改以格局、建材,並融入設計師的風格特色,最後案例呈現頂級飯店般的廣闊氣勢與現代時尚風情。
營造空間穿透效果的設計關鍵
私房設計學01 善用茶鏡、茶玻等具有鏡面放大效果的建材
私房設計學02 利用玻璃拉門界定公共區域,也可維持大宅的廣闊氣勢
私房設計學03 以鐵件黑框搭配清透玻璃,亦能塑造現代質感

廊道旁的鏡面的材質、穿透的拉門與地板的拋光石英磚形成一個巧妙的搭配,一進門便讓人感受明亮。

設計師利用鋼構結合石材的手法克服載重的問題,也因為是金屬結構,而能做出懸空(近三米)的效果,頗具特色。

餐廳與客書房之間除利用拉門做區隔外,設計師也在拉門的兩側加入了仿古面的設計,既可以做分界也能展示收藏品。

沙發後的背牆留有 USB插座,坐在沙發上即可播放並遙控視聽器材,相當方便!

沙發區後方為書房閱讀空間,背牆以實木打造,除收納書籍亦能作展示品的擺放區。
.jpg)
主臥房以白色搭配蒂芬妮藍為主色調,十分典雅;一般在窗邊的凹槽處會規劃櫃體,但特別的是設計師改將梳妝台擺於這個位置,不使用時也能一併拉上,美觀而能節省空間。

欣磐石提供_平面設計圖
設計師拿掉入門右方 L形實牆,運用活動式的門面作為玄關、客廳與餐廚空間的交界,讓整體的生活動線變得流暢。