在結構上化繁為簡的設計手法,整合家飾部專業規劃能力,利用簡潔優雅的家具線條,拿捏得當的比例尺寸,及療癒身心的色彩運用,就能營造出輕鬆感的居家質感空間,療癒系的設計不需要絢爛的裝潢,相反的,馬不停蹄的現代人,需要的是一個可以讓心靈純粹與平靜的溫暖所在。

12坪的客廳來自於拆除不必要隔間,換來視覺及心靈的free。
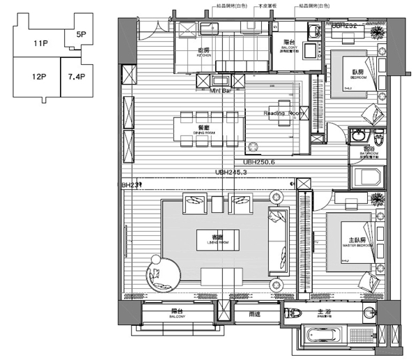
過多的裝潢與壓力一樣,會造成心靈及視覺上的負擔,L′atelier Fantasia繽紛設計團隊將「減法」概念運用在設計上,拿掉多餘的房間、用最少的材質、通透的空間釋放,打造12坪的客廳,再定調水色空間,藉由家具、家飾的搭配,打造出令人驚豔的30坪寬廣視覺效果!主持設計師IDAN表示,讓人全然放鬆的家,也可以很優雅、富堯品味,她大方分享團隊的療癒設計5大概念:線條、家具、顏色、質感以及光源,強調只要掌控到正確比例,就能營造舒適又有品味的無負擔空間氛圍。

空間有捨才有得,30坪屋好open。(平面圖提供_繽紛設計)

玻璃的清透大大淡化了空間隔閡感。
IDAN指出,在公共空間裡他們打造了無框的玻璃書屋,「無框」+「透明」的特點,大大淡化隔閡感;包括入口處留白的收納展示櫃,或圓或方、或橫或直的線條都經過精確的計算與拿捏,沒有複雜的雕花裝飾,讓人一進門就享受到寬闊通透的空間感。

無論是直的、圓的線條,都是經過計算,達到平衡效果。
當然,適合的家具家飾也是為空間加分的功臣。同時擁有「設計」、「藝術」、「家飾」3部門的L′atelier Fantasia繽紛設計團隊,為這個案子定出「水」的主題,從優雅的貴妃椅、水色沙龍單椅,到餐桌造型奇特的主燈、簡單有型的舒適餐椅,都讓人卸下重重壓力,在顏色選擇上,更是發揮色彩的能量,營造如水般的輕盈悠游,再搭配拆除隔間後大量引進室內的自然光線,適時地以鏡面反射營造光的層次,讓人只想好好地窩在任一角落,什麼也不做地享受。

水色為空間提供了包容柔軟的療癒力量。
硬體的規畫佈置可以交由專業設計團隊,但生活質感的提升要靠個人努力。IDAN會教導業主如何利用香氛、音樂、藝術品等,為自己的生活品味加分,尤其是香氛更是療癒聖品,將相關的香氛收納融於空間規畫中,是設計團隊的基本功。


臥室改造前後,以質感的佈置,捨棄不必要的裝飾,回歸休息本質。
