提醒你
本網站隱私權政策已於2018年7月20日更新,請至閱覽並同意新版隱私權政策,若您未勾選同意而繼續使用本網站,則視為您已同意新版隱私權政策。
希望空間呈現簡潔的樣貌,格局、動線安排能符合自己的生活習慣與需求,使得回家能就感受紓壓、放鬆的療癒效果。每一處空間的設計,能隱含自己對家的期望,提醒自己,時時刻刻珍愛家人,共享生活。

以文化石、白色百葉打造美式風格住宅,電視牆的內縮處理,讓整個立面更為美觀。
每承接一個新的設計案,就是設計師與屋主交心的時刻,洽談溝通的設計、施工過程,長則經歷數年,短則數個月,如何透過彼此信賴,撞擊出精彩設計火花,端看設計者的用心。
這間位於台北市內湖的新成屋,屋主最大的期望,就是打造一個讓自己在高壓工作之餘,一進門就能卸下心防、紓解壓力的避風港,同時也是家人彼此關懷、共享生活記憶的場域。於是,擅長現代風格的演拓空間室內設計張德良設計師,決定以輕療癒的設計概念,量身打造屋主夢想中的住宅。

運用設計巧思,將屋主對家的想望與期待,透過隱藏燈光將Care、Share等文字鏤刻於天花板上。
兼顧無形的心靈層面與有形的實用設計
大部分設計師都以材質的演繹來表達療癒效果,然而張德良卻同時兼顧著無形與有形的療癒。例如客、餐、廚等公共空間,採用開放式設計,讓空間變得開闊。家具配置也顛覆傳統三、二、一的安排,在窗邊安排臥榻式長椅,讓視覺不受阻礙,減輕壓迫感。
因應風水要求,張德良首度嘗試用人造石,打造如摺紙藝術般的立體隔屏,且精巧地用隱藏燈光的方式將「Devoted」的文字鏤刻於其中,傳遞出屋主對家的想望。天花板上也以相同手法,透過燈光效果刻畫著Care、Share等凝聚家人情感與向心力的關鍵字,甚至悄悄地鏤刻著女主人的生日,滿足心靈層面的需求。
對於有形的實用機能,張德良向來有其專業堅持與執著。他認為,「空間設計完成後,若屋主入住兩、三個月就凌亂不堪,代表設計無效。」滿足美型與實用,井然有序的收納安排,是演拓設計每個住宅案著墨最多的部分。包括玄關旁貼心規劃衣帽櫃,讓來訪親友或家人的衣物可以收入其中;以及透過隱藏式茶餐櫃,讓家中亂源隱藏於無形等細節。甚至主臥房電視牆,大費周章地用烤漆玻璃拉門隱藏起來,避免生活充斥著電器用品,藉此達到療癒、紓壓效果。小孩房更採用充滿童心的趣味裝飾妝點,達到輕療癒的效果。最讓人佩服的,是餐廳旁的鐵件展示櫃,看似簡單的設計,張德良卻在高質感的要求下,不惜要求工班拆掉重做,只為力求完美的堅持。
跳脫用材質傳遞療癒風格的刻板印象,透過用心的設計及對專業與品質的要求,打造友善居住者的住宅,同時也將幸福符碼隱藏於家中每個角落,成為值得述說的空間故事。

開放式客、餐廳,簡潔利落的天花板設計,創造無壓、放鬆的寧靜氛圍;因應風水要求,用人造石設計出如摺紙藝術般的立體隔屏。
設計師解讀屋主需求
1.以簡潔的現代風格作為設計主軸。
2.空間規劃有療癒放鬆的紓壓效果。
3.將自己對家的想望透過專業設計達成。
4.收納機能能兼顧美型與實用。
S o l u t i o n 4
01收納 隱藏式收納美學
玄關入門處增設衣帽櫃,讓來訪親友感受到屋主的貼心;餐廳旁隱藏式茶餐櫃,讓生活中的亂源隱藏於無形。

玄關入口衣帽櫃_關閉

玄關入口衣帽櫃_開啟
02機能 兼顧美型與實用的巧思
主臥房的電視牆,不使用時,就黑色烤漆玻璃拉門遮蔽,讓生活中不會充斥著電器用品,達到紓壓放鬆的效果。

黑色烤漆玻璃拉門_開啟

黑色烤漆玻璃拉門_關閉
03設計 專業的堅持與執著
看似簡單的鐵件展示櫃,卻有許多不為人知的施工細節,在設計師的專業要求下,一度拆除重作,最後呈現出來的成品,完美而細膩。

04色彩 滿足使用者需求的色彩療癒
色彩對於心靈層面的滿足非常重要,即使同為家人,不同的使用者也各有喜好。主臥房以內斂的中性色調鋪陳,小孩房則用略帶灰色調的藍營造靜謐氛圍,再透過趣味裝飾,達到心靈療癒的效果。



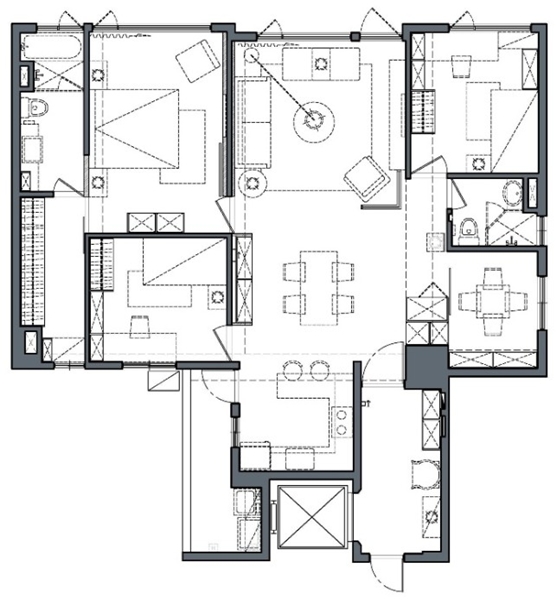
平面圖提供_演拓空間室內設計
設計理念
懂得生活,於是做出好的設計;比屋主想得更多,加上對設計與施工品質的要求,不做到最好不輕易放手,於是成就了超乎業主預期的優質友善住宅。