提醒你
本網站隱私權政策已於2018年7月20日更新,請至閱覽並同意新版隱私權政策,若您未勾選同意而繼續使用本網站,則視為您已同意新版隱私權政策。
因為設計師充分了解到屋主的生活作息與對「家」想法,所以大刀闊斧更動格局,雖然跟一般人住家的格局安排有所不同,但完全給了屋主一家六口凝聚向心力的溫暖空間。

依循客廳原本樑柱的結構,在客廳與書房中間規劃了一個品酒區,深色品酒桌與淺米色造型別緻的座椅,是屋主夫妻的小天地。
屋主一家六口常年生活在澳洲墨爾本,一年中在台灣的時間頂多三到四個月,但身為醫生的男主人,對生活以及家中裝潢有相當的品味堅持,並未因居住時間短暫而有所妥協。謝俊安設計師在跟屋主溝通後,了解屋主希望住家要有大器的空間感,猶如澳洲空曠而不侷促的廣大地域。
由於屋主夫妻都非常喜愛喝紅酒,請求謝俊安設計師在家中設計一個「品酒區」;另外,屋主一家六口最常聚在一起的場域是餐廳,且女主人很愛下廚作菜,料理時也希望能夠一邊和孩子們聊天,保持親子良好的互動,基於上述種種理由,讓謝俊安設計師決定要為這家人打造一個跟其他家庭不同的格局。
用材質、格局,呈現需求與品味
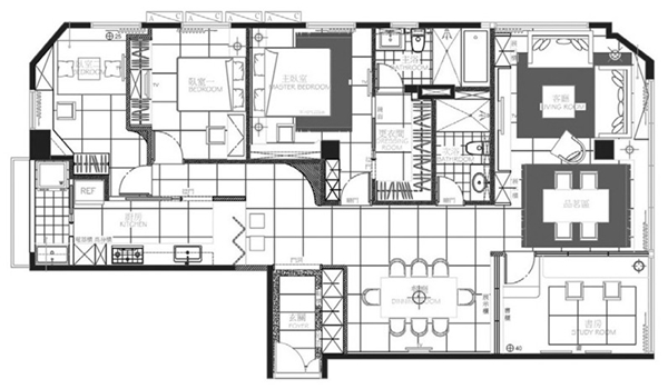
謝俊安設計師打破一般住宅進門後,先是客廳的格局規劃,進了玄關,一邊是餐廳,另一邊是廚房,通過餐廳才到客廳,餐廳也是整間屋子中最大的空間。
在設計風格呈現方面,除了屋主六人要住得舒適自在外,配合男主人是醫生的身分,裝潢佈置要讓到訪客人覺得大器、典雅中,又帶有華麗風貌,所以謝俊安設計師運用大型水晶吊燈,搭配茶鏡上的雕花玻璃,讓原木色調的客餐廳,有著璀璨而精緻的元素。

大面積的空間中,長型餐桌與內嵌的電視牆,是一家人一邊用餐、一邊談天說地的溫馨空間。
設計師解讀屋主需求
1.屋主一年只有三至四個月居住在此,希望空間開闊大器又具質感。
2.屋主夫妻都愛喝紅酒,要有專門的品酒空間。
3.屋主太太喜歡料理,且一家人互動緊密,要有寬敞的公共空間。
S o l u t i o n 5
01機能 書房玻璃門窗裝有捲簾
書房與品酒區僅以鋼刷梧桐木搭配茶鏡、雕花玻璃隔出一道透明牆面,若需要特別不受干擾或較為隱私時,天花板上裝有捲簾,將捲簾拉下即可阻隔,外面將無法看到書房內部的一舉一動。

02格局 在大牆面中設立隱藏式推門
餐廳是整個屋子的最大空間,最長的牆面也在此空間中,設計師為了保持牆面上鋼刷梧桐木與茶鏡的完整搭配,將客衛與主臥的進出口,以隱藏式推門的方式設計於牆面之中。


03材質 地面牆面紋路配上華麗燈飾
在能遠眺101大樓的客廳中,選用拋光石英磚地板結合大理石電視牆的整體紋路,做為整體搭配,紋路的細膩,加上同樣是白、金色系的水晶吊燈,為客廳增添了高貴的華麗。
.jpg)
04格局 主臥室設有拉門式更衣間
設計師將主臥室裡的衣物收納,統一集中於一處,再設一拉門,平時拉門拉上,視覺上清爽簡潔,需要更衣時才拉開拉門進入更衣區。


05機能 廚房做玻璃拉門以防止油煙
在開放式廚房與餐廳間做一個吧台,除了可以做為出餐時的餐台,也是女主人與孩子互動時的一個場域,但在烹調時為了防止油煙飄散,特地在廚房與吧台間做出摺疊式拉門。



平面圖提供_堂藝時尚空間設計
設計理念
以人文精神為主軸,透過顏色與材質的深淺交互安排,以俐落單純的線條與顏色,來展現優質的生活品味及精緻而細膩的關係。
資料來源:漂亮家居雜誌第159期