提醒你
本網站隱私權政策已於2018年7月20日更新,請至閱覽並同意新版隱私權政策,若您未勾選同意而繼續使用本網站,則視為您已同意新版隱私權政策。
新婚成家,讓人甜蜜地化不開,但更令人期盼的是屬於兩人的簡單、舒服空間,明代室內設計讓空間線條化繁為簡,運用不同設計形式巧妙區隔空間,並以令人放鬆的芥末綠色系,調配出北歐的幸福味。

客廳與客房之間,以拉門做區隔,在開闔之際,可營造開放或獨立的效果,延伸視覺。
愛情,讓人感到最開心的一件事,不僅是牽手步入禮堂,當然,還有那簡單、幸福的共同生活!本案坐落於桃園市,屋主正是一對新婚夫妻,在以滿足居住機能的前提下,不需過於繁雜的設計,卻又能加入未來有小孩的彈性空間規劃,明代室內設計將線條化繁為簡,延伸視覺空間,並運用多元材質,打造一個簡約又舒適的二人世界。
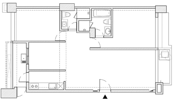
設計者接手完工的新成屋,室內坪數約 25 坪,由於原始格局的 3 房配置,不僅讓每個房間都小小的,同時也因為空間過於切割,阻擋不少自然光源進入室內,因此,為了讓小宅發揮空間,決定將三房減為兩房,把多餘空間釋放出來給公共空間和主臥室,並將緊鄰客廳的房間規劃為客房及書房使用,未來若有寶寶來報到,也能變更為兒童房,保留極大的彈性空間。
柔軟色、木質調 引光入室的舒適自在
回到家,總希望能有一個溫暖與規矩並存的細緻空間,針對小坪數常見「活動空間狹小、視覺壓迫、雜物收納」等煩惱,公共空間以半開放式做安排,運用白色木質的活動拉門、橡木地板作為客廳和客房的區隔,可依需求營造開放或獨立的效果,引進充分光線!而因應屋主有寫 memo 的習慣,在客房內、外兩面牆皆使用墨綠色「水性黑板漆」甲醛釋放量低,也很適合日後孩子作為塗鴉使用,搭配質感的深翠綠扶手單椅,更添舒適自在感。
材質上除了大量的白色、木質調,空間整體則以深淺的芥末綠色、褐色的俱家織品調配出北歐休閒風格,視覺動線上,從玄關進來即是餐廳,並與客廳保有穿透度,設計者以一張長型木質書桌為中心,並在旁設置大面開放式書櫃,讓書桌不只是書桌,平時也可當作餐桌,靈活運用空間。夫妻回到家中,自然地圍繞著書桌看書、分享每日趣事,簡約靜好的生活空間,就是最美的幸福!

運用芥末綠、褐色系,打造質感舒適的休閒空間,而拆除多餘隔間,不僅放大空間,也引進充足的光線。
設計師解讀屋主需求
1.以其生活習慣打造空間設計。
2.未來可加入孩子的靈活規劃。
3.運用柔軟色系創造簡單、舒適的氛圍。
S o l u t i o n 5
01格局 連成一線的規劃
設計者大動格局,將多餘空間釋放出來給公共空間,客廳與餐廳以一字型規劃動線,讓整個公共區域變得更為廣。

02格局 靈活運用空間
以拉門、地板材質區隔屋客廳與客房,因應未來家庭成員增加時,伴隨而來的空間需求,由於區域之間保有穿透感與連結度,看顧寶寶時也較為安心。


03材質 打造童趣黑板牆
順應屋主有寫 memo 的習慣,在客房內、外兩面牆皆使用墨綠色「水性黑板漆」,傳統油性漆含甲醛,有明顯異味、易危害人體,貼心運用環保水性漆,不僅甲醛釋放量低,上漆與養護工作也容易。

04設計 造型櫃體添增創意、功能性
緊鄰餐桌的牆面,延續使用墨綠色「水性黑板漆」,裡頭卻藏著亮點,在牆後其實是客用衛浴,中間凹槽置入收納櫃,創造出新鮮感。餐廳以一張長型木質書桌為中心,並在旁設置大面開放式書櫃,讓書桌不只是書桌,平時也可當作餐桌。


05色彩 褐色系營造放鬆氛圍
高壓環境下工作的上班族,總期待回到家能徹底放鬆心情,主臥落地窗引自然光灑入室內,並以褐色系織品、家具營造舒適感,讓人可放鬆休息。


Before (平面圖提供_明代室內設計)

After (平面圖提供_明代室內設計)
設計理念
擅長運用自然素材與簡約的設計手法鋪陳空間,讓使用者著實感受到自在與舒適,同時也體現空間最自然的表情。
資料來源:漂亮家居雜誌第 160 期