提醒你
本網站隱私權政策已於2018年7月20日更新,請至閱覽並同意新版隱私權政策,若您未勾選同意而繼續使用本網站,則視為您已同意新版隱私權政策。
沐絲設計團隊黃靖玹設計總監,擅長異材質透過複合式的搭接衍生立面或線條創意,在此案設計規劃上,跳脫傳統既有的風格元素,打開客、餐廳的界限,利用開放或櫃體設置的介質,引導出空間多元化的生活面向。

整體設計跳脫沉穩,以俐落語彙,透過白色基調成為廳區主要背景顏色,大膽以黑色表現結構,強調張力、連貫、延伸、開闊的旨趣。
對於空間,如果可以自我假想一種風格,跳脫既有的框架,會是怎樣的氛圍表現?是否延伸出較為輕鬆愜意的生活目的?!在空間發展設計質素的前提下,擅長打造現代俐落、簡約意象的沐絲設計,以現代俐落的線條搭配較具時尚意趣的媒材,降低空間彩度,讓視覺承載降至最低,舒適的感受尺度張力,帶給生活的包容度與放鬆感。
設計,帶領風格、機能與退休後的舒適生活
退休後的屋主夫妻,有過非常多次的裝修經驗,此次希冀的空間表情,是要開闊而明亮,不要流於沉悶或老派的風格窠臼當中;因為之前到訪過友人經由黃靖玹設計總監規劃過的居宅空間,對於其處理空間的線條、格局、顏色、比例及俐落感很讚許,於是放心的將目前購得的居宅,交由沐絲設計團隊為其規劃。
黃靖玹設計總監認為「完美設計」應該是將機能融入於媒材、顏色的比例當中,設計當中,將女主人需要的佛龕,藉由現場木作的設計施工,運用具清淺顏色的媒材透過顏色、比例的安排,再以黑色衍生出視角上的對比印象,強調現代俐落質素,並成為餐廳空間的端景焦點。
玄關設計上,考量到結構樑體過大,以 黑色的 L 造型,延伸進入室內,成為客廳主牆,串連玄關、餐廳、客廳,透過對比的顏色效果,有效的放大空間感受,再以不鏽鋼、木作、茶鏡等的異材質,以複合式的搭接處理,引申出時尚意趣,連貫玄關與餐廳空間的立面表情,隱藏客用衛浴的動線入口,藉由中式「天圓地方」的寓意,引申餐廳優雅的餐敍氛圍,凝聚豐富的立體層次。

入口處設計師在玄關連接佛龕的角落位置,利用弧線造型設計出端景區,並兼具穿鞋椅的使用機能。
設計師解讀屋主需求
1.希望與之前居住空間較保守的設計風格有所跳脫。
2.佛龕的設計希望能以現代風格為主,跳脫傳統制式規劃範疇。
3.希望大面積的主臥空間,能兼具書房等多用途功能。
S o l u t i o n 6
01材質 異材質搭接,引申視覺焦點
大理石作為客廳主牆的檯面設計,並以美耐板仿效清水模混凝土引申為背景,側邊透過不鏽鋼規劃為展示層架,展現輕盈的視覺感受。

02動線 隱藏進入主臥動線開口,維持立面和諧
延續性的立面設計,透過木作、鏡面材質的交錯搭接設計,於其間規劃隱藏式的推拉門扉,隱匿進入主臥區域的動線開口,維持立面的和諧意象。

03設計 黑色,衍生設計主題,消弭壓迫意象
設計上考量到原始建築,自玄關延伸至客廳的結構樑體過大,以黑色材質、 L 造型,設計由玄關進入室內,成為客廳主牆表情,串連玄關、餐廳、客廳三個空間,透過對比的顏色效果,有效的放大開放區域感受。

04設計 天圓地方,挹注中式沉穩精神
餐廳空間為了凝聚家人生活情感,與客廳採開放方式規劃,並藉由中式「天圓地方」的寓意,引申餐廳優雅的餐敍氛圍,展現豐富的立體層次。

05機能 更衣室隱藏女主人專屬梳妝區域
為了滿足女主人的生活需求,特地於更衣室區域,設計出專屬的梳妝空間,收納機能藉由開放方式安排,將男女主人的收納需求規劃完整。

06設計 主臥訂製木作床座,增加收納機能
主臥在床座的設計上,以木作訂製為主, 增加收納機能。並將設計的線條規劃於立面半腰處, 增加輕鬆異趣,透過連續性的木作材質規劃出書房區域,符合男主人的生活要求。

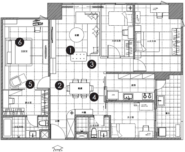
.jpg)
平面圖提供_沐絲設計
設計理念
沐絲設計擅長使用材質的搭配與色彩的規劃,讓每個不同空間,透過專屬的設計,呈現出兼具質感美觀又好維持保養的空間。
資料來源:漂亮家居雜誌第 160 期