提醒你
本網站隱私權政策已於2018年7月20日更新,請至閱覽並同意新版隱私權政策,若您未勾選同意而繼續使用本網站,則視為您已同意新版隱私權政策。

擁有一個令人放鬆,具有療癒感的居家,絕對是結束一天緊張工作後,最需要的舒適空間。設計師以簡單的線條及暖色調的色彩,營造出溫馨的居住空間,讓屋主夫妻回到家中就能回歸自我,與工作完全切割,卸下工作一天的辛勞,獲得身心靈的完全舒放。
對於夫妻兩人都是醫師的屋主來說,需要高度精神集中的醫療工作,總是讓他們在忙碌一天後,氣力放盡。由於經常要面對病痛,為患者排憂解難,因此,他們更需要一個可以調整自我情緒,解壓力的療癒空間。設計師以軟調的色彩和現代感的線條為空間畫龍點睛,採用低甲醛的木料建材,加上開放式設計,引進自然光源與流動的空氣,打造具有療癒感,舒適又健康的居住空間。設計師更依屋主需求設計了大量的收納空間,方便忙碌的兩人整理家務。
客廳的天花,是設計師最花心思的地方。由於靠近走道的木作裝飾牆上方有道厚重的樑柱,使淨高二米八的天花,限縮為二米二。設計師使用斜屋頂的創意取代常見的層板,以線條和燈溝層次變化天花的高度,化解樑柱造成的紓高底落差問題,在視覺上也不會因為矮天花而感到壓迫。主牆面以鵝黃色為主色調,白天光線充足,室內顯得更明亮,晚上在間接光源照射下,則具有溫馨與療癒的感覺。電視牆也是重點設計,以猶如波浪狀石材紋理的壁紙作妝點變化,讓素雅的空間不致流於太過平面。

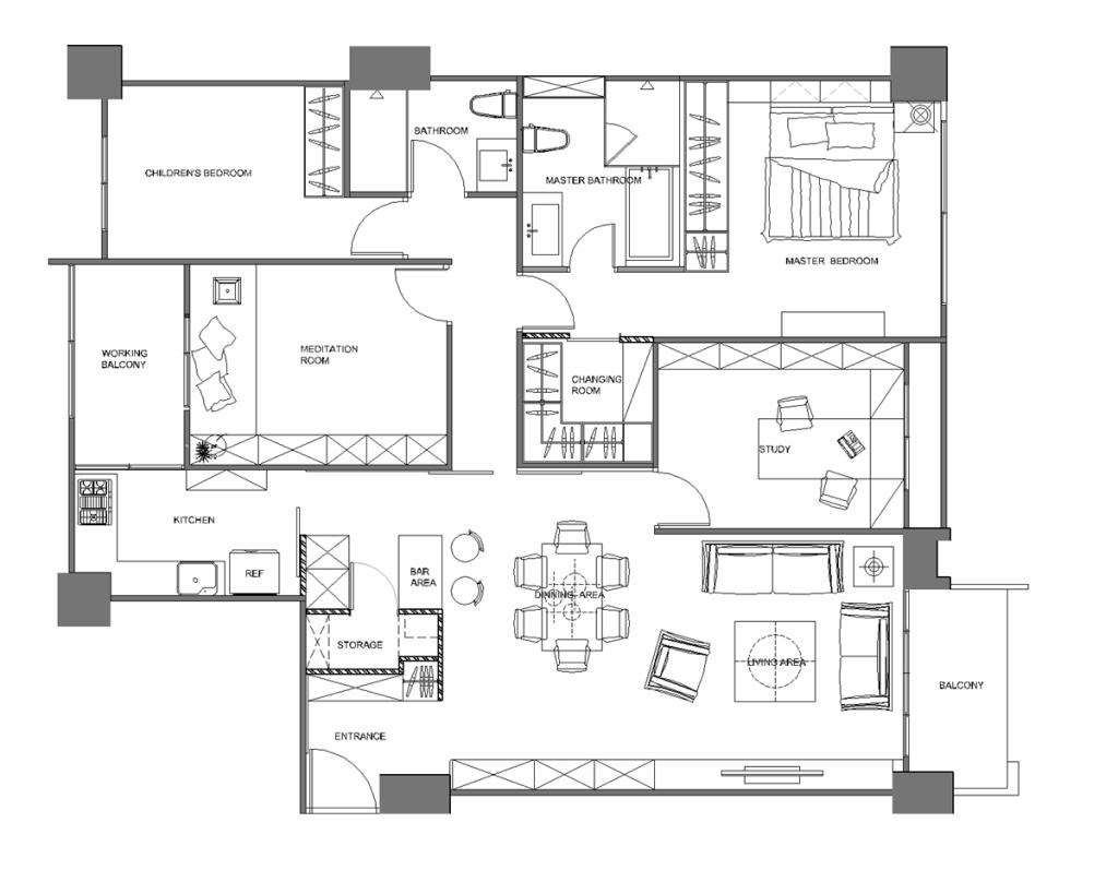
木作櫃體的大儲藏室,成了玄關與廚房的間隔。面對玄關的一面,結合鞋櫃;另一面則是電器櫃,把收納做得十分隱密。女主人喜歡喝咖啡,設計師特別連接櫃體設計了小吧台,除了可以準備飲料,也是料理工作枱,機能十足。在整個開放式客餐廳中,也有區隔的作用。
屋主特別要求的冥想室,保留了大容量的收納空間。夫妻倆可以在這裡冥想打坐、做瑜伽,好好放鬆身心。大量的櫃體其實都是品質好又環保的系統櫃,美觀實用,可以收納換季衣物棉被。透過幾個留空的展示櫃,增添牆面變化,也能放置冥想時需要芳療及音樂的薰香燈和音響。
王設計師有個最貼心的地方,在每一個經手的個案裡,都會在家中選擇一個較隱密的空間或櫃體的死角為屋主設計一個類似保險櫃的裝置,讓他們能安心放置護照證件等重要物品的祕密角落。
設計師解讀屋主需求
1.工作忙碌且須專注謹慎,需要一個能完全放鬆的住家。
2.需要大量的收納,但又不能妨礙空間動線。
3.獨立靜謐的冥想空間。
S o l u t i o n 5
01格局 門片有虛有實,保留私密感
裝飾著嵌合式不鏽鋼門把的大面積木作裝飾牆,提升了溫馨的氛圍,同時區隔出公私領域,特別的是,門片其實是一真一假,讓客人也弄不清虛實。

02風格 可移動書櫃門片,成了活動背景
書房的書櫃,門片可以自由橫移,以半開放半閉鎖的設計,減少小空間的壓迫感,牆面可以隨意變化,也方便屋主分出展示區和雜物區。

03設計 大樑落差,靠線條天花修飾
斜屋頂的天花設計以線條和燈溝交錯,解決樑柱下壓困擾,又能營造視覺延伸與引導效果,小空間變得更開闊。

04收納 穿過的衣服有個臨時的家
穿過一次,還沒有髒到需要送洗的衣服,是大多數人很難處理的困擾。不適合放回衣櫃,但不收拾散放椅子或床上,又顯混亂。設計師在主臥入門處,衣櫃的另一側,保留了一個開放式層板架的衣櫃,就是給這些衣物一個暫時的家,因為靠近走道,通風良好,也不會把衣服沾染的味道帶進臥室。

05創意 ㄇ字型的桌板,可隨意拼接
靠牆抽屜櫃上方ㄇ字型的桌板附有滾輪,平時當坐椅,需要時可以挪出來拼接成長形或方形桌,和三五好友一起泡茶聊天。


設計理念
聯寬設計將自己視為一個平台,所謂的設計,就是將業主的需求和要求,及設計師對美感的見解和施工的細節作專業統合,讓空間與人緊密連結,提供最符合業主使用且美觀的環境。
資料來源:漂亮家居雜誌第 161 期