提醒你
本網站隱私權政策已於2018年7月20日更新,請至閱覽並同意新版隱私權政策,若您未勾選同意而繼續使用本網站,則視為您已同意新版隱私權政策。
小坪數空間必須所有機能都到位,將每一處空間的效率發揮到極致,方能提供完整而全面的居住條件。堂藝設計謝俊安設計師整合收納與格局規劃,替屋主打造出溫暖而個性化的都會小豪宅。

屋主夫妻一同經營網路事業,由於平日在家的時間相當多,買下這個新房之後,期望家不僅僅是一個休憩的場所,同時也能提供長時間在家所需要的功能。屋案本身雖有挑高 4 米 5 的優勢,但也因為樑柱多且巨大,勢必得解決空間零碎不平整的問題。如何化解建築上的缺點並整合屋主所需的機能,成了本案在設計上最大的考驗。
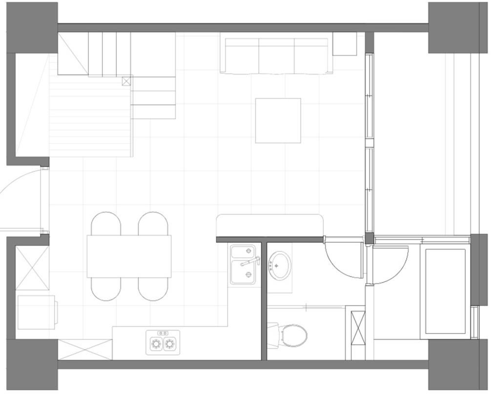
在空間格局的設定上,由於屋主希望私人與公共區域能有清楚區分,謝俊安設計師利用夾層空間規劃出上下兩層空間,讓二樓成為純粹的休憩場所。一樓則以客廳、餐廳為主。設計師表示,屋主夫妻有品酒的習慣,偶爾也會招待朋友來家裡,因此特別選擇可延展的餐桌,餐廚空間也刻意放大,擴充公共空間的彈性。而在客廳與樓梯之間,選擇以玻璃展示櫃區隔,在區分空間之外更能擺放屋主收藏的公仔,帶出居住者個性化的一面。
在機能規劃方面,一樓和室空間的地板內空間沒有浪費,架高地板下方規劃為收納櫃;二樓樓梯口的牆面以木作量身訂製具有展示與收納機能的 CD 、 DVD 收納櫃,讓屋主的影音收藏有合宜的擺放位置。
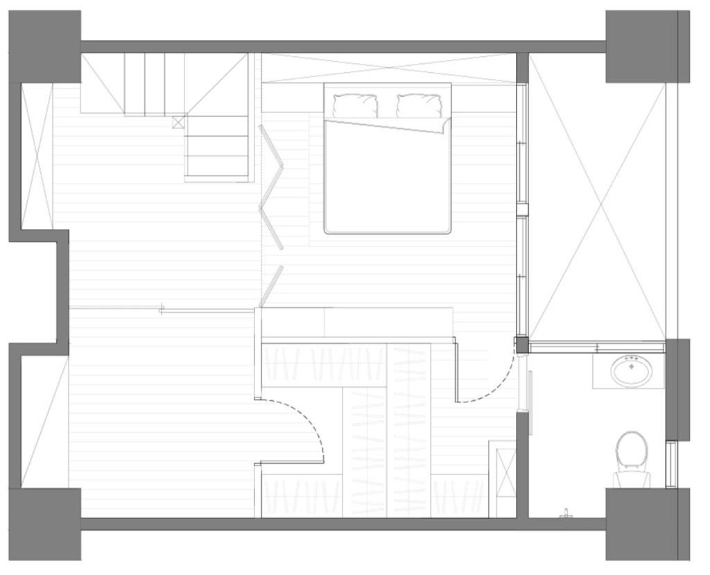
而在二樓的空間規劃上,設計師在臥房和休憩區特地設計了推拉門,讓空間可視需求區隔,在親友來訪時可有留宿空間,也讓空間可以更加獨立。本案在風格上不刻意造作矯飾,以清新而溫暖的質感為主,設計師使用木質建材融合些許鄉村元素,替屋主打造出具有個性化而機能完滿的家。


設計師解讀屋主需求
1. 能夠將公共區域和私人區域有清楚劃分
2. 男女主人需要獨立的衣物收納區域
3. 有大量 CD 、 DVD 和展示物品,要有充足的擺放空間
S o l u t i o n 4
01 機能 可多變化的和室空間
一樓空間以和室的概念規劃一個開放的休憩+工作區域,設計師利用架高的地板替屋主創造一個可工作也可休息的場所,而地板下方不僅內藏收納空間,可移動的層板也創造出可閱讀工作的機能,靈活的設計讓空間效率發揮到極致。

02 收納 兼具展示機能的收納櫃
屋主夫妻擁有許多 CD 和 DVD,設計師利用二樓樓梯口的牆面規劃收納櫃,除了可清楚地依照不同類型收納,兼具展示功能的設計也讓屋主在聆聽唱片或觀看 DVD 時,可展示現正播放的作品。

03 機能 拉門區隔讓空間區隔更加分明
二樓雖然規劃為私人空間,但考量到偶爾會有長輩或親友留宿,因此設計師利用拉門做為區隔空間的手法,居住者可視需求使用,讓空間的分野更清楚。


04 收納+材質 南方松搭建陽台和隱藏式設計的洗槽
陽台空間的設計使用了南方松為主要建材,帶出自然而粗獷的休閒風情,洗槽則隱藏在其中,兼顧了視覺美感與機能性需求。


