提醒你
本網站隱私權政策已於2018年7月20日更新,請至閱覽並同意新版隱私權政策,若您未勾選同意而繼續使用本網站,則視為您已同意新版隱私權政策。
每次出國旅行,就會愛上國際飯店的時尚設計感,總希望能將飯店的舒適空間帶回家中!為了滿足屋主喜歡的飯店設計感,世家新室內設計特別在客廳、餐廚空間運用了現代感的拋光石英磚、文化石等材質,臥室則以胡桃木、烤漆白色系為主軸,利用深淺色的對比,搭配隱藏機能的設計,營造出舒適的飯店休憩空間。

飯店的設計風格舒適迷人,讓人有度假的感覺,本案坐落於台中市,家庭成員為一對夫妻、一雙兒女,由於屋主經常在國外旅行、洽公,住過許多飯店,因此,為了滿足屋主喜歡的國際化飯店設計感,並且適合居住機能的前提下,世家新室內設計以胡桃木、烤漆白色系為主軸,運用深淺分明的對比色系,打造出舒適、沉穩的休憩空間,午后陽光灑入家中,讓人感覺特別地有安心感!
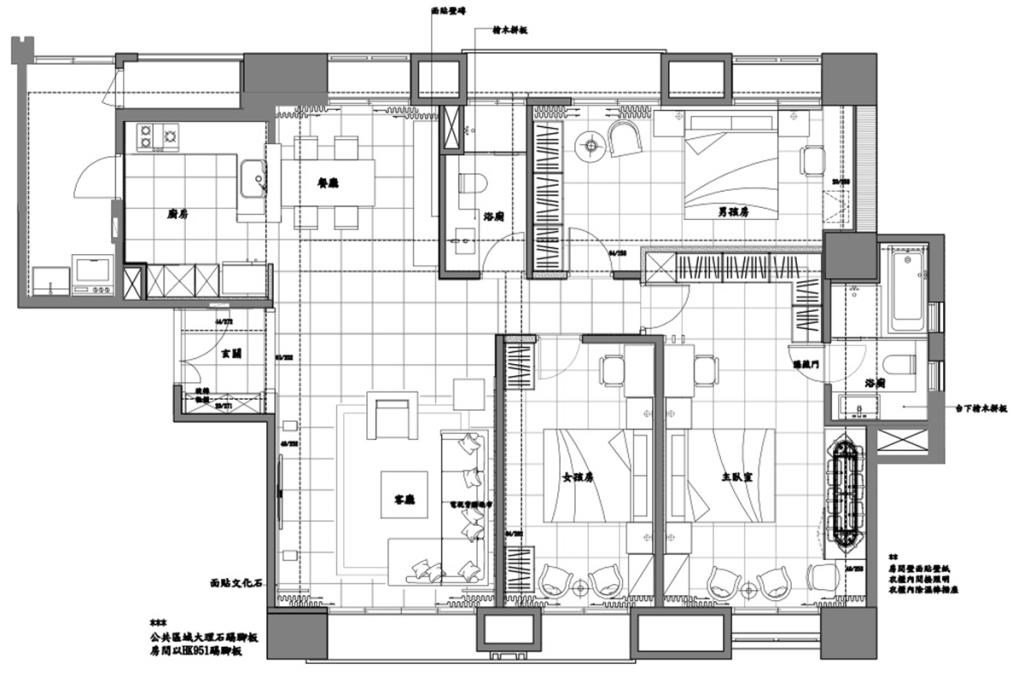
設計師接手完工的新成屋,室內坪數約 46 坪,原本格局配置為 4 房,因屋主經常不在家,一雙兒女也在國外工作,屋主決定 4 房減為 3 房,重新調整格局,將多出來的空間釋放予主臥室、餐廚空間。在客廳中,屋主希望能擁有質感的視聽娛樂環境,設計師在客廳主牆上,鋪置飯店中常見的文化石磚牆,表面紋路自然生動,而在另一邊的沙發背牆,則使用金色的新古典線板設計,搭配黑色沙發、拋光石英磚、實木茶几,讓客廳舒適有質感,屋主享受喜歡的音樂時,也能同時擁有低調奢華感的視覺享受,輕鬆打造滿足機能要求的飯店式風格住家。

單純色系空間 引陽光空氣入室
屋主嚮往大自然的木質元素,在每個空間都有胡桃木的設計,將緊鄰客廳的空間規劃為餐廚空間,連成一線的開放式設計,運用前、後的大片落地窗,引進大量光線入室,空氣自然流通,並加以大理石中設計,搭配原木餐桌,不僅假日可以享受與家人用餐時刻,偶爾也能邀約親友來聚會,營造溫馨質感生活。屋主喜歡單純原色的主臥房,設計師在臥床主牆以不同的材質變化同一水平面的立體層次,床頭為巧克力色的修飾牆,兩旁牆面輔以浮雕裝飾板設計,在床尾處則為整面烤漆白衣櫃,在天花壁燈投射下,營造飯店式質感休息空間,讓人回到家就像在度假,紓緩疲憊身心!
在男孩房中,同樣維持著以胡桃木、烤漆白色系為主色調,深淺咖啡色拼接出裝飾牆,書架上擺著兒子收藏的書籍,特別的是,在床頭兩旁隱藏著機能的設計,設計師運用白色文化石的隱藏門片設計,讓使用者在開放之間,得以享受陽光穿透性和私密空間的雙重機能,跳脫一般平板化設計,這也是注重現代感生活的設計重點,更符合屋主的飯店式品味。
設計師解讀屋主需求
1. 屋主長年在國外,住過各種飯店,希望住家能結合飯店的舒適感。
2. 喜歡輕裝修主義,崇尚現代、時尚的設計,帶入住家空間。
3. 客廳注重視聽娛樂環境。
4. 屋主喜歡木質元素,空間必須結合原木設計。
S o l u t i o n 5
01 設計 引光入室的用餐環境
屋主嚮往大自然的木質元素,在每個空間都有胡桃木的設計,將緊鄰客廳的空間規劃為餐廚空間,連成一線的開放式設計,運用前、後的大片落地窗,引進大量光線入室,空氣自然流通,並加以大理石中島設計,搭配大理石餐桌,不僅假日可以享受與家人用餐時刻,偶爾也能邀約親友來聚會。

02 格局 優質視聽空間
設計師重整格局,將 4 房減為 3 房,多餘的空間釋放予主臥室、客廳空間。在客廳中,屋主希望能擁有質感的視聽娛樂環境,設計師在客廳主牆上,鋪置飯店中常見的文化石磚牆,而在另一邊的沙發背牆,則使用金色的新古典線板設計,搭配黑色沙發、拋光石英磚、實木茶几,讓客廳舒適有質感,不僅滿足低調奢華感的視覺享受,也能輕鬆打造飯店式風格住家。

03 機能 開放自如的設計
在男孩房中,同樣維持著以胡桃木、烤漆白色系為主色調,深淺咖啡色拼接出裝飾牆,書架上擺著兒子收藏的書籍,特別的是,在床鋪兩旁隱藏著機能的設計,設計師運用白色文化石的隱藏門片設計,讓使用者在開放之間,得以享受陽光穿透性和私密空間的雙重機能,更符合屋主的飯店式品味。

04 材質 營造飯店度假舒適氛圍
屋主喜歡單純原色的主臥房,設計師在在臥床主牆以不同的材質變化同一水平面的立體層次,床頭為巧克力色的修飾牆,兩旁牆面輔以雕紋板裝飾設計,在天花壁燈投射下,營造飯店式的白色質感休息空間,讓人回到家就像在度假,紓緩疲憊身心!

05 收納 善用每一處空間
在床尾處則為整面的烤漆白衣櫃,以白色系營造舒適感,不僅可收納大量衣物,亦可作為電視牆,讓空間變得更寬闊。



資料來源:漂亮家居雜誌第 162 期