提醒你
本網站隱私權政策已於2018年7月20日更新,請至閱覽並同意新版隱私權政策,若您未勾選同意而繼續使用本網站,則視為您已同意新版隱私權政策。
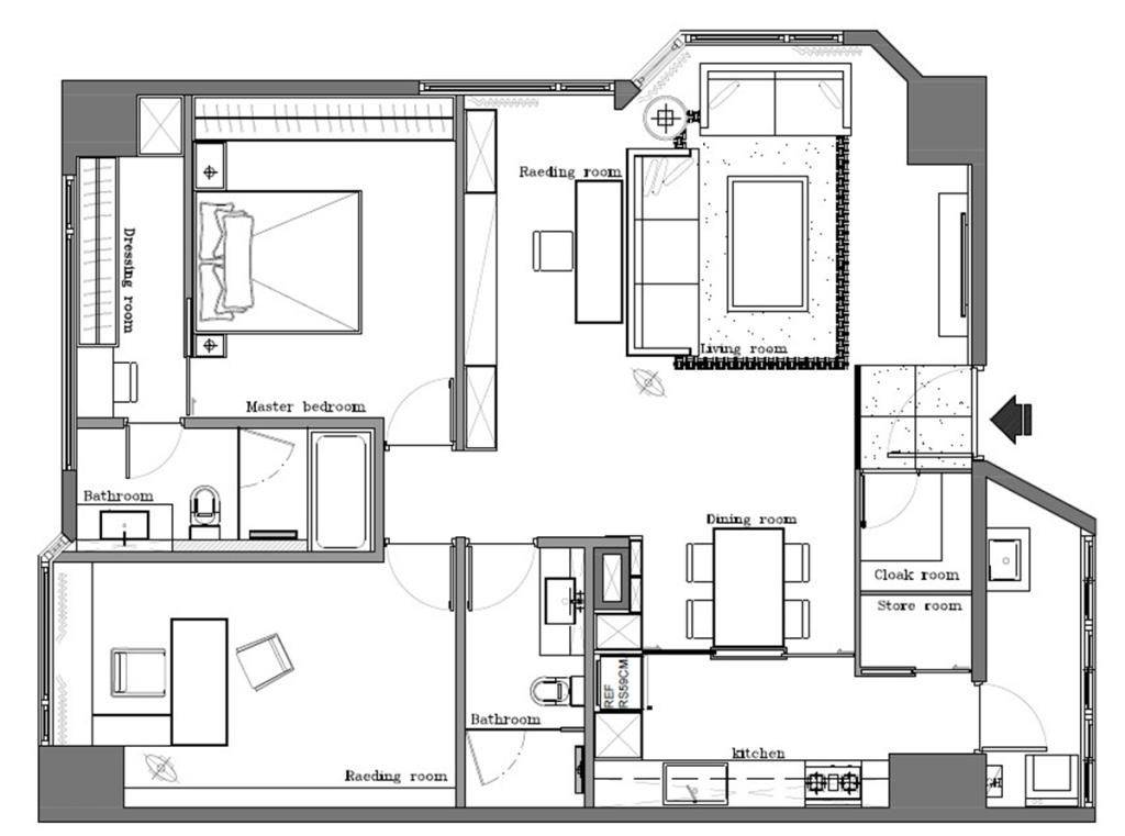
「動線」可以說是空間的靈魂!同樣的房子,動線規畫的優劣直接影響生活便利與否及居家美感。以色彩作為空間漸層思考,以線條呈現格局立體刻劃的境觀空間設計,境觀空間設計的設計總監蘇泂和表示,每接到一個案子,動線往往是他們最先考量的點,動線、格局對了,再來談風格。


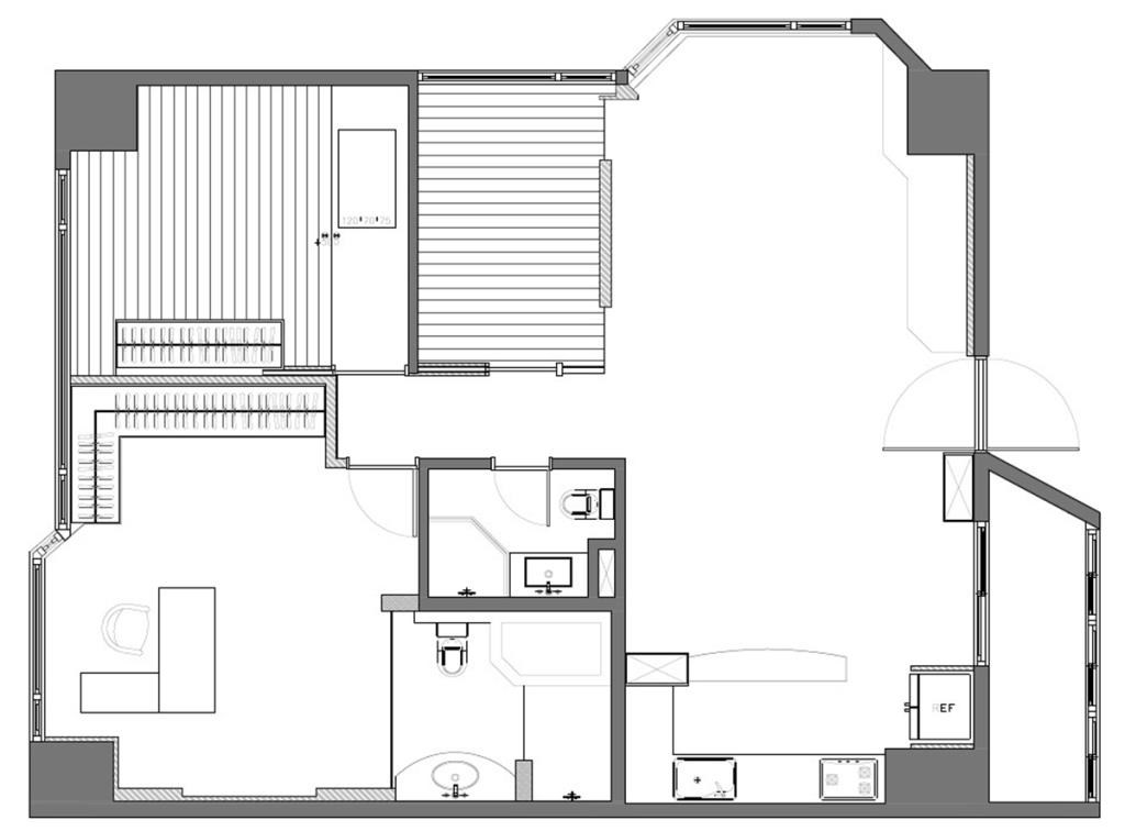
本案坪數在台北市來說已經算寬敞,但因為當初的室內設計師並沒有替屋主做好規畫,室內空間配置不當,收納空間幾乎是零!所以一進門只見滿屋子的東西堆得到處都是,簡直像座倉庫,完全沒有生活品質可言。境觀空間設計團隊祭出改造 3 部曲:更改舊有格局→重新規畫動線→設計足夠收納空間,闇黑倉庫變身大器明亮小豪宅,舒適度滿點。
改造 01 災難性餐廚,兩扇拉門解決
開放性的餐廚設計如果沒有收納,就會變成家裡的災難!改造過的客廳與餐廳連成一個開放性空間,餐桌靠著的牆兩側拉門裡,隱身的是較易雜亂的廚房,這麼俐落的公共空間,很難想像之間雜物滿桌的凌亂。


改造 02 收納櫃虛化,客廳大器清爽
有沒有足夠的收納空間絕對比任何裝潢來得重要!利用大理石的特殊橫向紋路做出具剛強美的電視牆,包柱的白色收納櫃讓空間乾淨清爽,善用整排落地窗迎進自然光,顯得相當大器;對照之前的電視牆設計,不僅電視周圍雜亂不堪,沉重的木櫃顏色、錯誤的光源設計,也讓客廳空間更顯壓迫。


改造 03 穿透性屏風,玄關入門驚豔
就算不是為了風水問題,玄關的設置仍是不可或缺。況且屋主有風水上的考量,需有屏風遮擋,以免一入門就看光光。設計團隊巧妙利用鐵件、烤漆、玻璃及木作等媒材組合,做出擁有特殊線條的半穿透性屏風,令人驚豔,既保全了風水考量,也避免視覺被阻擋。


小編看設計
看到改造前後的空間,簡直判若兩「屋」!家是讓人安心的住所,入住後可能就長達 8 年、10 年,不應該委曲求全。境觀空間設計團隊跳脫既定格局,以生活機能為主軸重新規畫,為使用者帶來便利,並利用各式媒材與線條,為屋主勾勒出生活的幸福力量。
