提醒你
本網站隱私權政策已於2018年7月20日更新,請至閱覽並同意新版隱私權政策,若您未勾選同意而繼續使用本網站,則視為您已同意新版隱私權政策。

老屋比起新成屋,總帶著一股獨特魅力…星葉設計總監林峰安以「溫故知新」的設計核心,「溫習,留住既有的生活情感;創造,挹注新意的延續品味」。
老宅新做,星葉設計總監林峰安重視屋主們的生活記憶,將其幸福及喜悅的片段作為翻新老屋的靈感,讓改造後的空間裡依然能感受到熟悉的畫面,溫故而知新的設計初心,讓每一間老屋蛻變後仍保有最珍貴的情感,就像與熟悉的生活情感,再次相遇。
45坪 / 北歐風 / 15老屋以上 / 3房2廳2衛 / 新婚夫妻
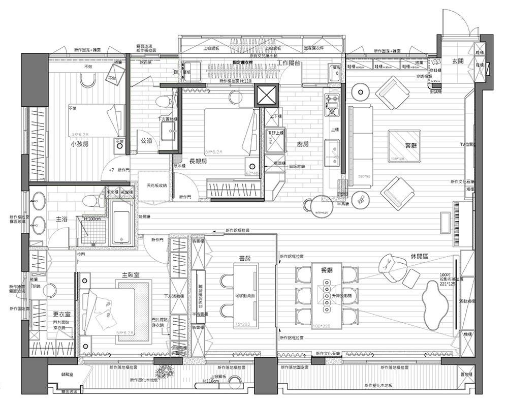
閒置多年的老屋是女屋主與媽媽共同生活的基地,對於即將出嫁的女兒,母親特地委託星葉設計總監林峰安,將原生家庭在老家生活的記憶保留下來,並植入女屋主留學芬蘭的生活光影,將 15 年以上老屋改造成能溫故而知新的新婚住宅。

KeyPoint 01
格局規劃上以「優化室內採光」為首要改造重點,將原本窗戶台度調低放大採光面,並將木質元素從室內延伸到戶外,在進門 45 度角的區域種植南方松,創造帶綠意與光線的自然端景。面對橫越的老屋梁柱,設計師運用木皮與文化石將天花與牆面結合創造連貫性,虛化大梁弱化屋高問題。因應屋主需要在家辦公的需求,書房以鋁框作輕隔間打造能 90 度閉合的靈活設計;將廚房牆面轉向後與餐桌平行,創造開放式設計優化動線,而光線依然能恣意穿透。




原始玄關不僅空間狹隘,更因遠離採光窗和結構柱的存在顯得更為昏暗,在無法拆除結構的狀況下,設計師用白色格柵打造穿鞋椅背牆,讓客廳光線能改善落塵區採光。另外,玄關櫃不落地設計間接照明燈,滿足收納機能卻不壓迫玄關;結構柱吊掛一盞北歐風車站鐘,將留學芬蘭的北歐風情自然帶入生活裡。星葉設計總監林峰安詮釋「溫習,留住既有的生活情感;創造,挹注新意的延續品味」,溫故知新的核心設計價值。



KeyPoint 02
機能配置上整合屋主夫妻喜愛的生活型態和原生家庭的珍貴回憶,像是玻璃書房後方的一張世界地圖是女主人過去遊歷各國的紀錄,透過鐵件木作書櫃作為相框,讓回憶伴隨女屋主並攜手與另一半探索更多地方。餐廳上方橫梁僅用木皮修飾延續風格,其中還隱藏冷氣主機和升降投影機,在原有的沙發區外創造一個更寬敞靈活的視聽空間。


由文化石構成的電視牆拼接原木材質,讓小時候陪伴女屋主成長的鋼琴作為新婚禮置於家的中央,象徵著原生家庭譜寫出的幸福樂章。開放式廚房特別將入口做斜角設計,除了拓寬入口優化動線外,更將料理檯面的外牆加高、並規劃旋轉木製吧台,讓求學時期開去就常前往咖啡廳唸書的女婿,在家就能享受咖啡廳愜意悠哉的氛圍,讓改造後的老屋帶著兩人原生的熟悉感,攜手邁向新生活。


41坪 / 現代風 / 15老屋以上 / 3房2廳2衛 / 愛旅遊與收藏瓷器的夫妻檔
星葉設計總監林峰安以「溫故知新」的設計核心,「溫習,留住既有的生活情感;創造,挹注新意的延續品味。」
同樣愛好旅遊的屋主夫妻,對於每一趟旅程的記憶都十分珍惜。星葉設計總監林峰安以旅遊經歷為題,改造 3+1 房的老舊格局開拓 41 坪空間,並以各式櫃體當作一起遊歷各國的展示舞台,陳列著瓷器收藏與旅遊紀念品,將夫妻的日常細膩刻畫在老屋裡。

KeyPoint 01
老屋原先裝潢的房格局壓縮了客餐廳區域、房間也顯得擁擠,果斷地拆除一間房後 41 坪住宅顯露豪宅的氣度大幅改善室內的通風與採光。人工光源配置上以崁燈均勻打亮空間,軌道燈作為重點照明,在灰色調基調與普魯士藍調窗簾中宛如星光熠熠,營造浪漫氛圍點亮珍貴藏品。在不能擴大玄關走道的狀況下,設計師將玄關屏風稍微退縮到廳區,運用石紋和鐵件格柵結形塑帶有穿透感的隔屏,能帶來隱私遮蔽又能優化落塵區的空間感。



修改後的廳區空間感大增,淺灰造型沙發搭配跳色抱枕,營造自在寬敞的休憩環境,同時也讓廚房空間有餘裕規劃中島,檯面內嵌IH爐、下方設計紅酒櫃與餐櫃抽屜放置茶包與酒杯茶具,時尚黑白配色廚具與原木餐桌搭配,創造客廳以外夫妻能一同分享的休閒空間。緊鄰餐廚的房間將門片改為雙向活動拉門化解窄長廊道,裡面除了規劃沙發床,電視也利用活動五金觀影角度能轉向餐廳,能讓多功能房跨場域使用,櫃體溫暖的燈光不僅襯托著瓷器收藏,也創造出女屋主能獨處的靜謐角落。


KeyPoint 02
有別於一般住宅喜歡把收納隱藏起來,這個家中收藏的瓷器與旅遊紀念品反而是生活的主角。秉持溫故進而知新的創作理念,設計師依照屋主藏品,在沙發背牆訂製寬窄不一的收納展示櫃,結合活動式橫拉門扇設計,透過屋主不同的陳列變化以及門扇的位置,讓展示產生豐富變化,如夫妻生活的經歷一般精彩多變。廊道規劃訂製格櫃用來女屋主收藏的馬克杯,右側則是帶磁性的牆壁,用旅遊各地收藏的磁鐵布置空間。


玄關灰色的底牆上,安排了四個圓形瓷器分別刻印了男女屋主的出生年份、結婚紀念日以及購屋日期,形塑家的獨特識別。電視主牆簡化線條分割,以鑿面磁磚鋪陳立面呼應霧面地磚;電視牆外側的結構柱用灰鏡虛化柱體的突兀感,並在靠窗處以對稱設計規劃頂天高身櫃,形塑大器又雅緻的現代品味。主臥床頭收納不落地,維持便利充足的收納機能又不會壓迫空間;客房運用同樣的設計模式,透過顏色的變化讓臥室有主從之分。


