提醒你
本網站隱私權政策已於2018年7月20日更新,請至閱覽並同意新版隱私權政策,若您未勾選同意而繼續使用本網站,則視為您已同意新版隱私權政策。

許多民眾購買新屋時,渴望學區好、交通便利的蛋黃區,但看到驚人房價卻遲遲下不了手,此時,不妨考慮公設比低、價格親民的老屋或中古屋,透過全面翻新,也能打造心目中的理想居家!然而,改造屋齡較高的老宅時,法藝設計的鍾宜君設計師提醒我們需要注意兩大要點:
1. 衛浴和廚房的管線問題
中古屋/老屋翻新勢必會遇上水電管線的難題,因此重整格局時,考量管線長度,廚房和衛浴空間不能與原本的位置相差太遠。
2. 動線、通風和採光條件
許多老屋頗具天然優勢,只是因為格局規劃不良,導致動線、通風和採光不佳,透過重整格局,不但能大幅改善以上面向,更可以提升空間的使用率。
本篇精選法藝設計的四大案例,讓我們一起來看鍾宜君設計師,如何破解老屋難題,讓空間重獲新生吧!
絕招>> 調整主臥衛浴大小、鐵件玻璃拉門、開放式餐廚設計
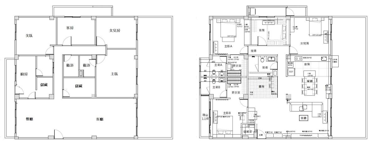
這間 33 坪的中古屋的格局方正,更擁有得天獨厚的三面採光,卻因為整體規劃不佳,導致採光面落在主臥衛浴、中央區域昏暗,書房也沒有任何對外窗,十足浪費空間的天生優勢。鍾宜君設計師首先調整主臥的衛浴大小,將其中一面窗扇留給書房,加上充滿通透感的鐵件玻璃拉門,一次解決上述的三大難題。其次,將封閉式廚房改為開放式設計,利用客廳和餐廚區域的整合,不但讓空間感加倍放大,讓日光延伸入裡,成就溫暖明亮、舒適又具現代感的居家場景。





絕招>> 釋放次臥空間、主臥拉門設計、房屋玻璃外觀
屋主夫妻買下這間超過 30 年的老宅,希望能陪伴兩人度過美好的退休生活,每到週末時,這裡也會化身孫子們的快樂天地,隨時上演著熱鬧非凡的溫馨畫面。原格局的公領域偏小,卻有一個寬敞卻沒有採光的次臥。鍾宜君設計師針對屋主需求,釋放次臥空間改為餐廳,打造加倍放大的公共空間,並將主臥房門改為拉門設計,讓全家從裡到外都成為小朋友的奔跑遊戲區。此外,在有大門屏蔽的狀況下,將房屋前側改為玻璃隔間,讓溫暖日照、清新陽台綠景能走入室內,寫下慵懶愜意的美好日常。





絕招>> 消滅多餘走道空間、鐵件玻璃拉門
這對小夫妻住在 25 坪現代風美宅,全室採光面位於前後兩側,因此中央的餐廚區域會較為陰暗,而公、私領域的交界處,則有一個將近一坪的走道區域,造成空間使用上的浪費。鍾宜君設計師運用兩個方法解決以上難題:第一,將通往書房、廚房的入口改為霧面的玻璃門片,便可在保有隱私的狀況下,讓陽光抵達餐廚區域,改善原本採光不良的狀況。第二,消滅多餘的走道空間,增加主臥、衛浴的大小,並將入口統整在同一平面上,除了有效發揮坪效,也讓公領域的視野也能有所延伸,看起來更為寬闊舒適。





絕招>> 重劃公、私領域範圍、精省走道空間
陪伴全家走過多年的 46 坪老屋,是牽起老、中、小的三代同堂宅。原始格局較為凌亂,導致廚房較小、衛浴位於中央等問題,也必須經由很長的走道才能進入私領域。鍾宜君設計師重新審視格局,將餐廚區域調整至客廳後方,除了促進全家的情感交流,更以大篇幅的落地窗,揭開明亮光線和陽台綠意。整體以「公領域置於中央、私領域落在側邊」的配置,並變更各寢室的開門位置,錯開家庭成員的生活動線,讓彼此作息不會互相干擾,又精省走道空間,為全家打造出舒適自在的理想居家。




