提醒你
本網站隱私權政策已於2018年7月20日更新,請至閱覽並同意新版隱私權政策,若您未勾選同意而繼續使用本網站,則視為您已同意新版隱私權政策。

老屋向來需要面對漏水壁癌、格局不良等棘手問題,然而善於「傾聽」屋主需求的新澄設計,不將其視為難題而是挑戰,依據基地的既有情況,配合居者的生活習慣,總是能打造出符合需求且兼具舒適、實用、設計的生活空間。以下就是透過縝密思考而成的兩個精彩老屋改造實例。
  
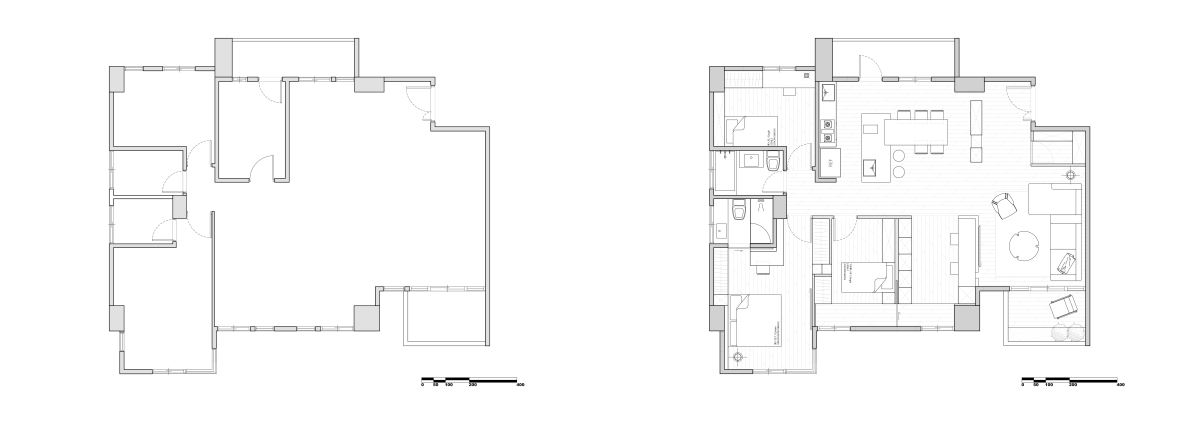
此間屋齡 25 年位於一樓的老屋,外牆景觀覆土連結牆面,長期下來使得土壤水分滲透牆面造成嚴重壁癌,當年輕夫婦購入這間位於中西部的基地,找上新澄設計,這是他們面臨的第一個棘手問題。因為外牆牽扯複雜只能由內部修整,設計師首先使用滲透劑將內牆縫隙堵塞,接著漆上無機塗料防水、防滲透,而牆壁選用防水角材並使用蜂巢式手法令其透氣,外層覆蓋矽酸鈣板解決壁癌問題。
 BEFORE & AFTER

開放式廚房聯繫家人情感、樓梯踏階結合書櫃複合機能
 空間格局上考慮到新生兒即將誕生,需要三房空間,因此將原本封閉式廚房打開增設T字型中島餐桌,並於客廳書房後方增加小孩房,除了方便料理時關照家人動靜、維繫情感也令原本分區界定不明的公共區更好使用。此外,新澄設計考慮到基地擁有三米六的樓高,因此建議屋主打造夾層增添多功能遊戲區讓小孩擁有更多活動空間,同時樓梯結合書櫃打造踏階,複合機能也創造空間有趣端景。
  




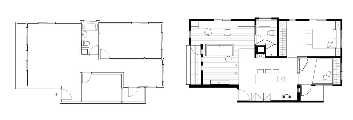
擁有 40 年屋齡的老公寓是新澄設計黃重蔚總監的自宅改造,空間以綠能概念出發,從結構、表層、格局、機能、採光、通風、材質等做出通盤規劃。原始格局公區狹窄,長廊底端為廚房,卻沒有餐桌空間,動線冗長難以使用,因此全屋去除原始隔間牆重新圍塑,開放式公區設計將自然光串連起來,並釋放客廳面積。
  

巧妙轉換思考,設計迎空間而生
 原有開窗位置及大小尺寸因落地窗面朝東方,夏天大面積陽光直設易造成室內溫度上升,因此改為直式的的推射窗(氣窗),透過水泥牆遮擋日光,並利用導板原理讓自然風流入屋內,使室內感受陣陣涼意,大幅降低夏日空調的使用率,且令光影更為柔和創造民宿的悠閒氛圍。而外部陽台原始寬度只有 85 公分加上短牆,不僅遮擋光線也不美觀,透過鋼構外移至 120 公分搭配玻璃帷幕引光線與綠意入室。
 
 牆面水泥粉光一路延伸到天花板,運用密度與強度較佳的水泥纖維板,隔音、防潮防火的特性令老屋結構更加穩固,而原先地坪亦因為接續牆面使用水泥粉光,然而老屋地面厚度不夠,直接灌入水泥砂漿可能導致樓下漏水問題,設計師改鋪設仿水泥進口磁磚同樣保持水泥原味。
  




