
「預售屋客變」最大的好處,就是在不影響安全結構下,依照客戶需求打造格局配置,避免建商所附的標配不符合期待。這間現代風小宅,擁有偌大的公園綠景,以及充沛的日照採光,瀰漫著療癒的大自然氣息。新婚的屋主夫妻於預售屋時期,便邀請六木設計團隊進行客變。究竟他們是使用哪些設計心法,創造一覽無遺的寬敞視覺,融合屋主嚮往的中島設計、更衣間,並體現五星級飯店般的高級質感呢?
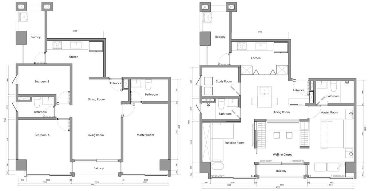
全室在格局配置上,考量僅有夫妻倆使用,於是揮別傳統的三房兩廳型態,以使用者需求量身訂製。設計團隊延著最佳採光面,依序配置多功能廳、複合書房機能的更衣室、主臥房,彼此間相互串連,與中央的餐廳場域,恰好形成靈活自如的回字型動線,讓平日進出更為彈性順暢。同時,更衣室外觀選用大面積的玻璃材質,利用與生俱來的穿透性,將溫暖日光、療癒綠景引入室內,讓人不管置身何處,都可以感受戶外的慵懶氣息。



即使是小宅,依然能擁有高質感的生活享受!此案以鐵件玻璃拉門,順勢界定輕食料理區、快炒烹飪區,避免油煙逸出的不適,又維持光影、視線的流通;而中島吧台以沈穩石材為基底,複合俐落的不銹鋼檯面,再加入流理台功能,以便滿足簡易的料理需求。更讓人坐在高腳吧台椅上,伴隨陽光的輕輕照拂,享受一場放鬆的下午茶時光。

更衣室結合書房機能,以精簡的一字形桌面延伸工作環境,創造居家辦公的絕佳場域。通透的玻璃輕隔間建立獨立界線,卻維持與外界的互動,拉近與另一半之間的距離。當需要更衣裝扮時,也能適時放下捲簾滿足個人隱私。透過高彈性的設計手法,讓場域產生雙重的機能性,每一分坪效都能有效發揮!

整體風格傾向簡約現代感,並帶有北歐的休閒步調。於是在渾然天成的光影、綠意交織下,以溫潤的淺木質調、沈穩暖灰為基底,搭配簡練的幾何線條,創造毫無負擔的舒壓空間。而主臥、沙發背牆加入燈帶設計,透過光線的漸層遞進,烘托精緻時尚的氣息,更間接體現主臥立面的質感,詮釋日式壁紙的典雅美學。即使是簡約風格也不流於呆板,巧妙點亮空間神采。


要如何維持既有的收納量,卻又能擁有簡潔俐落的美感呢?此案翻轉制式作法,巧妙在連結場域的隔間,融入展示收納空間。多功能廳與更衣室間,複合電視牆及衣櫃設計,並連貫底部的抽屜機能;而更衣室與主臥間,考量到走道空間狹小,為避免產生量體的壓迫感,於是以開放層架巧搭玻璃材質,形塑通透順暢的延伸視線。透過聰明巧思整合畸零空間,將收納化於無形,去除櫃體的笨重與壅擠感,建立起視覺美感與實用性的平衡。



