
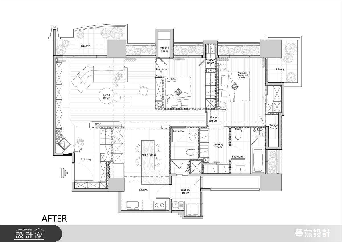
新成屋雖可以看到新屋落成的模樣,但已經固定的空間規劃有時還是會與理想有些出入,這時不妨與設計師攜手合作,透過更動格局拉近新家與理想的距離。這個位於台中的28坪空間原公區較小,設計師拆除與客廳緊鄰的臥房,並將釋放的空間納入客廳,藉此創造出窗明几淨的現代風空間。
入室玄關選用潔白色彩為主色,再佐以優美的石紋點綴層次,為這個28坪的空間奠定現代優雅的基調,玄關置物平台與穿鞋椅整合於櫃體立面之中,維持平整視覺同時擴大實用機能,玄關盡頭牆面透過弧形語彙與客廳櫃體相接,透過斜切設計引導動線。考量客廳為共享天倫的場所,選用木質地坪與弧形天花勾勒明確分野,最後再點綴弧形皮革沙發,藉由溫潤質感弭大量淺色的冷調。沙發邊牆面透過隱藏門設計調和次臥入口,而與牆面相接的書桌,選用相似的石紋檯面,豐富機能同時,建構極致的一體性。
主臥室選用暖調色彩與特殊漆勾勒豐富視覺與舒緩氣氛,獨立更衣間入口以弧形勾勒,而床頭牆立面沿著天花弧形向側邊延伸,形塑如屏風般的視覺效果,讓更衣間狀況不被一眼窺探。更衣間內選用玻璃與鏡面為櫃體門片,透過通透與反射的視覺效果消弭狹長空間帶來的壓迫感,舒適度更加分。
小編的最愛
開放式餐廚設於玄關櫃後方,兼具隱私與互動性,而潔白的櫃體呼應地坪優雅石紋,現代語彙濃厚。









