提醒你
本網站隱私權政策已於2018年7月20日更新,請至閱覽並同意新版隱私權政策,若您未勾選同意而繼續使用本網站,則視為您已同意新版隱私權政策。

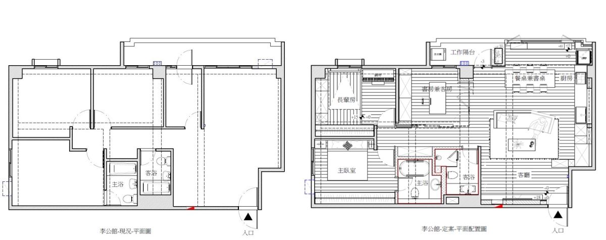
屋主夫妻為了給孩子更寬裕的生活空間、便於就近照顧父母,因此買下 35 坪老屋,希望能有三房兩廳,包含書房和小孩學習之處。
在採光陰暗、屋高低矮的狀況下,透過明代室內設計的了解與溝通,整合居住者的想法與需求後,希望能以自然宅的設計理念,保有空間的使用彈性、實現居住者的期待的同時,擁有親密的親子關係,讓家人享受到明亮舒適的環境,也能夠與大自然和諧共處。
老屋的原始格局過多的隔間也會阻礙採光進入,更有坪效運用不佳的問題,為滿足居住者的需求,設計師將廚房開放、以一字型的方式安排至公領域,在解放空間的同時,讓動線更為順暢舒適,達到串聯採光的目的。


而廚房鄰近餐桌,以便讓孩子們可以玩耍、學習,同時也能夠和家人互動,公領域成為家人最長久待及互動之處。

原始建築樓高僅 263 公分、大樑低矮的問題,通過電視牆的轉向後,達到客餐廳串聯的效果,以空間開闊加深的方式,化解樓高低矮的感受。

釋放一房作為書房和客房使用,採用可彈性開闔的萬向拉門讓居住者隨需求使用,也化解原有狹長走到的問題;並利用深色木質為櫃體門片,當門片敞開時深色的木質做為景深,有放大空間的效果。

本案以日光溫度命名,設計師以自然宅為設計主軸,強調空間與自然間的聯繫,除了通過開放隔間的方式,使窗扇串聯、順利引入採光,更在陽台與餐廳的轉角處,善用玻璃等穿透式的質材,實現放大迎光面的效果之外,同時將點綴陽台氛圍的綠色植栽與居住空間共享,完成明亮、舒適、與自然環境相協調的場域。

除了積極將陽光和綠意引入室內,在建材的使用上多使用質樸的木質與石材等素材,藉由發揮材質本真的方式,將自然帶來的放鬆和愉悅感受注入室內空間。
在本案中以淺色的木地板鋪敘全室,電視牆為大理石亂紋拼貼、餐廳立面以木質貼附,開放式廚房的吊櫃選用木質紋理的櫃體門片,不僅考量到美學和實用性,同時也呼應自然宅的主題。

除此之外,將室內的門扇均換為木質材質,不僅創造內外呼應的面貌,讓室內風格更為統一,實現時髦的休閒風,自然宅的設計則更加打動人心。

【桃園分公司】桃園市中壢區元化路275號10F