提醒你
本網站隱私權政策已於2018年7月20日更新,請至閱覽並同意新版隱私權政策,若您未勾選同意而繼續使用本網站,則視為您已同意新版隱私權政策。

「不論是新成屋還是老屋,不是花了大筆費用裝潢設計,就能孕育出家的歸屬感。」直觀的居家風格與色彩,僅是用來概括篩選屋主喜好,就如同認識一個人與真正了解是全然不同的課題。及境空間設計以多元角度思考空間、色彩、材質、軟裝與居住者,重新審視「客製化」的定義,致力於創造人、空間與軟裝的三贏關係,跨越屋況與格局的限制,替兩位都會新女性建構最舒適的生活方式。

「風格只是我們認識室內設計的概括選項,深入了解居住者性格、空間格局與材質色彩,才能構築另人有共鳴的家。」
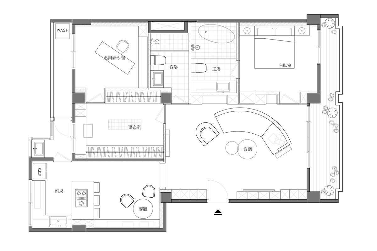
首次與屋主一同踏入這間位於台北市的 40 年老華廈時,屋主眼中讓人卻步的陳舊屋況,在許維庭總監細膩的改造計畫中,以黑白對比色凸顯屋主個性,精心挑選與訂製的家具展現屋主個人品味,最後添佐美式線板與圓弧語彙詮釋出女性柔美知性的面相。
「和雀斑小姐 mizfreckle 聊了幾次後,第一次出的格局配置圖就讓她擁有『這就是我家』的共鳴。」
老屋改造計畫解決年邁老屋的基礎建設問題,格局上首重空間的開闊與公司領域之進退,透過拉齊天地壁軸線,搭配線板層次修飾屋高;私領域出入口選擇隱藏門設計,避免隔間打擾設計的連續性與和諧感。客廳到餐廳透過黑色帝雉石門廊暗示場域轉換,黑色進口磚的延續性仍保持舒適開放的空間感。



「形塑出開放式空間各區的獨特性,創造她能自在發揮的拍攝場景,是室內設計最讓人著迷的地方。」
許維庭總監就像是空間的彩妝師一般,特調的白色塗料與進口磚的黑呈現出的對比,完美詮釋屋主鮮明時尚的個性。以美式風經典的壁爐作為風格亮點,電視牆鑲嵌的電子壁爐,以及餐廚區外牆的傳統壁爐雕塑,以及一系列進口家飾、地毯與燈具的搭配堆疊出風格的立體感。餐廚空間在機能之上更重視廚具在材質與色彩上的相互呼應,餐廳圓桌呼應客廳燈飾與天花板設計語彙,訂製的風格餐椅與預留的展示空間,在既定印象的美式設計外,呈現時尚網紅獨特的藝術識別。



「她給了我一張黃昏沙灘的照片,我立刻就讀懂了她想要的空間氛圍。」
在思索與找尋設計靈感時,素材並非只局限在室內空間與建築,生活中的每一個體驗都是許維庭總監的設計養分。客廳長型陽台延伸到主臥空間,擁有優越的採光與室外空間感,在睡眠空間裡色調調整成溫潤的大地色,床頭進口圖騰壁紙與半圓形繃布床頭,在不同日照下呈現出不同色澤,宛如四季變化。

主臥更衣間則以開放式吊掛與包櫃展示,打造專屬於雀斑小姐的精品櫥窗;衛浴灰白基調詮釋現代藝廊的極簡風格,晶皮革表面處理後冰冷的石材透過觸覺傳遞溫度,找到視覺衝擊與舒適體感的完美平衡。



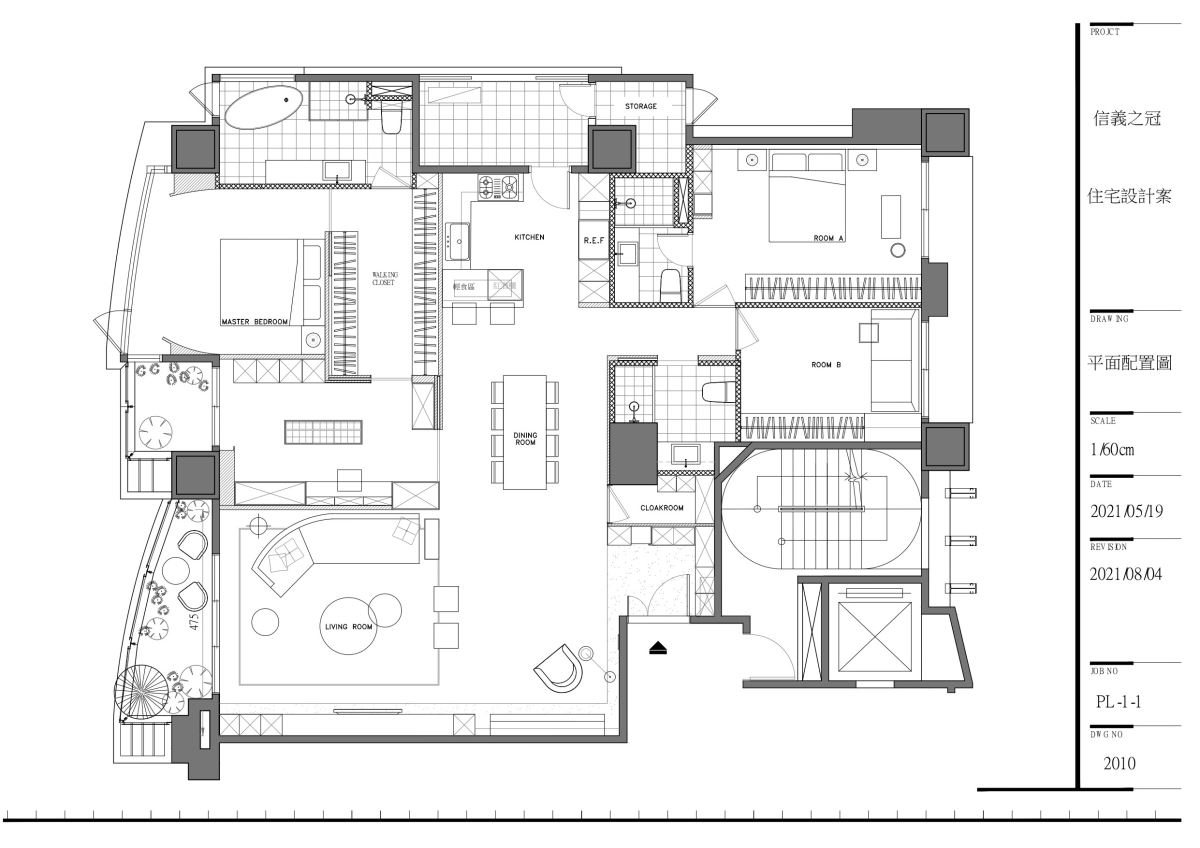
「將舞台上的鎂光燈帶入私宅,藝人曾莞婷的新家獲得法國 PARIS DESIGN AWARDS 2023 的肯定。」
一個具有包容力的空間,能讓演藝工作變成生活的一環,但保有卸下妝容後獨處放鬆的自在感,是許維庭總監替藝人曾莞婷精心規劃的新家,別具舞台魅力與私生活的親和力。
「我需要一個能滿足我螢光幕前的工作需求,下戲後亦能好好放鬆的生活場域。」
面對身為演藝人員的屋主,居家空間必須體現個人美學與生活品味,但同時又能賦予居住者自在與安定感。對於及境空間設計有著 100% 信任,從毛胚屋格局規劃、建材與軟裝挑選等全權交由許維庭總監決定。開放式客廳以公私領域整合的概念,從玄關、電視牆到更衣間皆植入展示性設計;全室配置全熱交換機與除濕設備、配置電子衣櫥;無接縫地坪既美觀又容易清潔維護,讓屋主以最輕鬆自在的方式生活。



「空間調性統一、精緻材質鋪敘、機能與美觀兼具的設計,最能讓屋主感受到設計師的細膩與用心之處。」
廳區裡的獨立更衣間不僅需要展示屋主收藏與個人品味,還需要能容納造型團隊,創造於公於私雙贏的獨特空間。及境空間設計移植精品櫥窗設計,訂製中島、玻璃包櫃與吊掛等各種兼具展示性的收納型態,除此之外,化妝台用環形線燈取代燈泡,訂製特別色溫以圍塑出絕佳的空間氛圍,滿足功能性與美觀性。雖然鮮少下廚,但依然規劃完整ㄇ字型廚房與中島吧台,提供日常小酌或招待賓客的體面空間,以踏實的生活機能賦予屋主家的歸屬感。



「機能、空間感與軟裝陳設全面講究的私人空間,能包容職業的多變性,以及提供生活必備的安定感。」
主臥空間刻意規劃剛好的坪數營造包覆性與安全感,延續公領域淡雅色彩,讓大面窗景成為設計的一環,輔以金屬飾條刻畫出精緻但親切感十足的睡眠環境。主衛浴設定則是更私密的放鬆空間,色彩輕柔的大尺寸磁磚像是舞台布幕,讓進口馬賽克磚牆成為鎂光燈焦點。特別在採光最佳的位置規劃蛋型浴缸,洗臉盆與鏡面的圓弧語彙相互呼應;洗手台使用熱修復材質,在同色調以異材質表現設計的變化性,而流動的弧線隱藏在生活各空間,在這個家的日常,感受到舒適的沈浸式五感體驗。


