提醒你
本網站隱私權政策已於2018年7月20日更新,請至閱覽並同意新版隱私權政策,若您未勾選同意而繼續使用本網站,則視為您已同意新版隱私權政策。

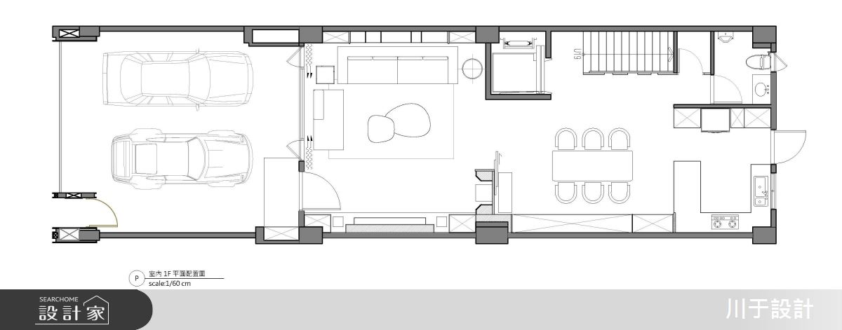
85坪的透天別墅入住屋主一家四口,透過日式低奢做為空間設計核心,創造簡約美學與機能兼備的居所;設計師瞭解家族成員對空間的喜好並予以整合,像是客廳以男屋主喜愛的風格進行規劃,主臥則採用女屋主鍾情的設計手法,小孩房則滿足兩個小孩喜歡的風格來規劃。
一樓公共空間,設計師運用樑下深度打造電視牆,石材拚接立面風貌,搭配對稱深色壁面創造視覺景深,且再延展兩側收納櫃體,簡潔乾淨的立面則彰顯非凡氣度;電視牆內側規劃一處端景牆,成為入室後的第一道美學畫面。沙發背牆為了與電視牆造型呼應,中央以深色鏡面框出深度,利用層板及照明設計,勾勒視覺層次,兩側同樣延伸出收納櫃體,強化收納機能。延伸入口端景、沙發側邊安排深色石材,形塑內斂、沉穩的空間氛圍。
拉開沙發側邊的拉門、走進餐廚領域,利用中島吧檯巧妙界定餐廳與廚房空間。餐桌及備餐櫃基底選用素雅質感的石材紋理,展現高雅大方質韻,再搭配淺色木質吊櫃體門片,及奶茶色調餐椅,形成溫潤氛圍的享食環境;兼具展示與收納的備餐櫃,滿足杯盤餐瓷的美學陳列,及電器、小物件收放的視覺美化功能。
小編的最愛
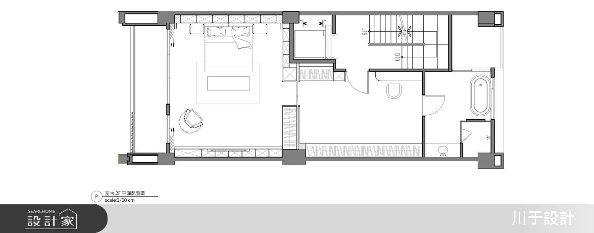
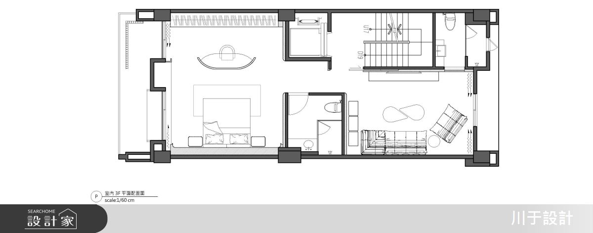
主臥延續男女主人喜好的日式低奢感,床頭結合櫃體,床尾規劃電視牆、側邊延伸更衣空間,簡約與大量的櫃體設計,滿足屋主日常的收納需求。男孩房透過黃、橘色調點綴空間,營造出前衛藝術的空間層次,符合男孩旅美的奔放氣息。女孩房則表現素雅精巧,床頭以格柵營造細膩舒適,梳妝台則串聯臥榻機能,發揮空間坪效。













